Homepage > Blank Welder Performance Qualification Record Template
Article Structure

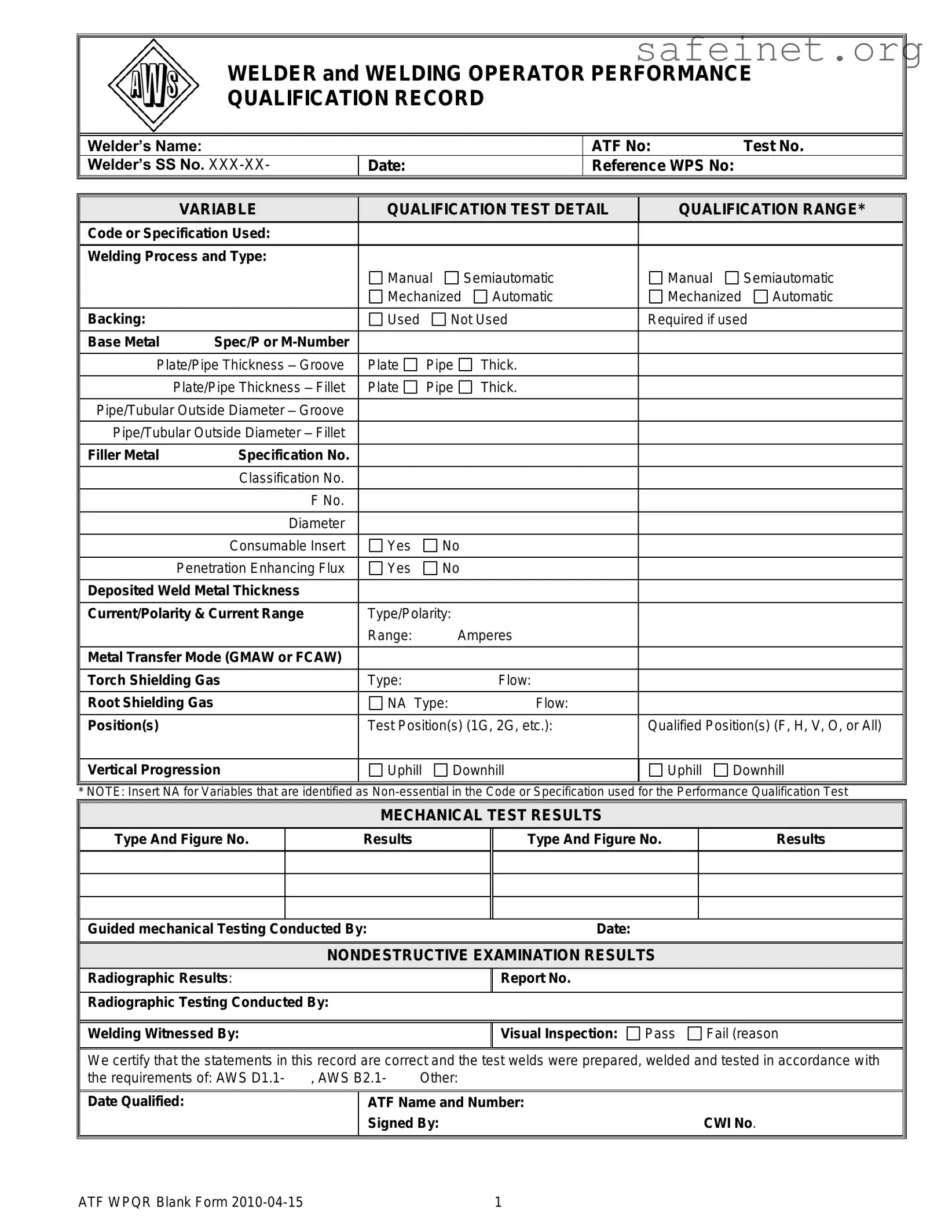
The Welder Performance Qualification Record (WPQR) form plays a crucial role in the welding industry, serving as a comprehensive document that validates a welder's skills and capabilities. This form captures essential information about the welder, including their name, identification numbers, and the specific test details that were conducted. It outlines the welding processes used, such as manual, semiautomatic, or automatic methods, and specifies the types of materials involved, including base metal specifications and thicknesses. Additionally, the WPQR includes critical variables like the filler metal specifications and the positions in which the welder is qualified to work. It also documents the results of mechanical tests and non-destructive examinations, ensuring that the welder meets industry standards and safety regulations. By summarizing these key aspects, the WPQR not only provides a record of qualifications but also helps employers ensure that their welders are capable of producing high-quality work.

Form Sample

WELDER and WELDING OPERATOR PERFORMANCE

QUALIFICATION RECORD

 

Welder’s Name:

 

 

 

 

ATF No:

 

Test No.

 

Welder’s SS No. XXX-XX-

 

Date:

 

 

Reference WPS No:

 

 

 

 

 

 

 

 

 

 

 

 

 

 

VARIABLE

 

 

QUALIFICATION TEST DETAIL

 

 

QUALIFICATION RANGE*

 

 

Code or Specification Used:

 

 

 

 

 

 

 

 

 

 

 

 

 

 

 

 

 

 

 

 

 

 

 

 

 

Welding Process and Type:

 

 

 

 

 

 

 

 

 

 

 

 

 

 

 

 

Manual

Semiautomatic

 

 

Manual

 

Semiautomatic

 

 

 

 

 

Mechanized

Automatic

 

 

Mechanized

Automatic

 

 

 

 

 

 

 

 

 

 

 

Backing:

 

 

 

Used

Not Used

 

 

Required if used

 

 

 

 

 

 

 

 

 

 

 

 

 

 

 

Base Metal

Spec/P or M-Number

 

 

 

 

 

 

 

 

 

 

 

 

 

 

 

 

 

 

 

 

 

 

 

 

Plate/Pipe Thickness – Groove

 

Plate

Pipe

Thick.

 

 

 

 

 

 

 

 

 

 

 

 

 

 

 

 

 

 

 

 

 

Plate/Pipe Thickness – Fillet

 

Plate

Pipe

Thick.

 

 

 

 

 

 

 

 

 

 

 

 

 

 

 

 

 

 

 

 

Pipe/Tubular Outside Diameter – Groove

 

 

 

 

 

 

 

 

 

 

 

 

 

 

 

 

 

 

 

 

 

 

 

 

 

Pipe/Tubular Outside Diameter – Fillet

 

 

 

 

 

 

 

 

 

 

 

 

 

 

 

 

 

 

 

 

 

 

 

 

 

 

Filler Metal

Specification No.

 

 

 

 

 

 

 

 

 

 

 

 

 

 

 

 

 

 

 

 

 

 

 

 

 

 

 

Classification No.

 

 

 

 

 

 

 

 

 

 

 

 

 

 

 

 

 

 

 

 

 

 

 

 

 

 

 

F No.

 

 

 

 

 

 

 

 

 

 

 

 

 

 

 

 

 

 

 

 

 

 

 

 

 

 

 

Diameter

 

 

 

 

 

 

 

 

 

 

 

 

 

 

 

 

 

 

 

 

 

 

 

 

 

 

 

Consumable Insert

 

Yes

No

 

 

 

 

 

 

 

 

 

 

 

 

 

 

 

 

 

 

 

 

 

 

 

 

Penetration Enhancing Flux

 

Yes

No

 

 

 

 

 

 

 

 

 

 

 

 

 

 

 

 

 

 

 

 

 

 

Deposited Weld Metal Thickness

 

 

 

 

 

 

 

 

 

 

 

 

 

 

 

 

 

 

 

 

 

 

 

 

Current/Polarity & Current Range

 

Type/Polarity:

 

 

 

 

 

 

 

 

 

 

 

 

 

Range:

Amperes

 

 

 

 

 

 

 

 

 

 

 

 

 

 

 

 

 

 

 

 

Metal Transfer Mode (GMAW or FCAW)

 

 

 

 

 

 

 

 

 

 

 

 

 

 

 

 

 

 

 

 

 

 

 

 

Torch Shielding Gas

 

Type:

 

Flow:

 

 

 

 

 

 

 

 

 

 

 

 

 

 

 

 

 

 

Root Shielding Gas

 

NA Type:

Flow:

 

 

 

 

 

 

 

 

 

 

 

 

 

 

 

 

Position(s)

 

 

 

Test Position(s) (1G, 2G, etc.):

 

 

Qualified Position(s) (F, H, V, O, or All)

 

 

 

 

 

 

 

 

 

 

Vertical Progression

 

Uphill

Downhill

 

 

Uphill

Downhill

 

 

 

 

 

 

 

 

 

 

 

 

 

 

 

* NOTE: Insert NA for Variables that are identified as Non-essential in the Code or Specification used for the Performance Qualification Test

 

 

 

 

MECHANICAL TEST RESULTS

 

 

 

Type And Figure No.

 

 

Results

 

Type And Figure No.

Results

 

 

 

 

 

 

 

 

 

 

 

 

 

 

 

 

 

 

 

 

 

 

 

 

 

 

 

 

 

 

 

 

 

 

Guided mechanical Testing Conducted By:

 

Date:

 

 

 

 

 

 

 

 

 

 

 

 

 

NONDESTRUCTIVE EXAMINATION RESULTS

 

 

 

Radiographic Results:

 

 

 

Report No.

 

 

 

 

 

 

 

 

 

 

Radiographic Testing Conducted By:

 

 

 

 

 

 

 

 

 

 

 

 

 

 

 

 

 

 

 

 

 

Welding Witnessed By:

 

 

 

Visual Inspection: Pass

Fail (reason

)

 

 

 

 

 

We certify that the statements in this record are correct and the test welds were prepared, welded and tested in accordance with

 

the requirements of: AWS D1.1-

, AWS B2.1-

Other:

 

 

 

 

 

 

 

 

 

Date Qualified:

 

ATF Name and Number:

 

 

 

 

 

 

Signed By:

CWI No.

 

 

 

 

 

 

 

 

ATF WPQR Blank Form 2010-04-15

 

 

1

 

 

Document Specifications

Fact Name Details
Purpose The Welder Performance Qualification Record form documents a welder's qualifications and abilities, ensuring compliance with industry standards for various welding processes.
Governing Standards This form adheres to standards set forth by the American Welding Society (AWS), particularly AWS D1.1 and AWS B2.1, which outline the requirements for welding performance qualifications.
Test Details It includes specific information about the welding process, base metal specifications, and mechanical test results, allowing for a comprehensive assessment of the welder's skills.
State-Specific Regulations Some states may have additional regulations governing the use of this form, which must be adhered to alongside the national standards, ensuring local compliance.

Steps to Filling Out Welder Performance Qualification Record

Completing the Welder Performance Qualification Record form is a straightforward process. This form documents a welder's qualifications and test results. Following the steps carefully will ensure that all necessary information is accurately recorded.

  1. Begin by entering the Welder’s Name in the designated space.
  2. Fill in the ATF No and Test No in the appropriate fields.
  3. Provide the Welder’s SS No (Social Security Number) where indicated.
  4. Record the Date of the qualification test.
  5. Enter the Reference WPS No (Welding Procedure Specification Number).
  6. Specify the Code or Specification Used for the qualification.
  7. Indicate the Welding Process and Type by selecting from the options provided (e.g., Manual, Semiautomatic, Mechanized, Automatic).
  8. Note whether Backing was used or not.
  9. Fill in the Base Metal Spec/P or M-Number.
  10. Provide the Plate/Pipe Thickness for both Groove and Fillet welds.
  11. Specify the Pipe/Tubular Outside Diameter for both Groove and Fillet welds.
  12. Enter the Filler Metal Specification No and Classification No.
  13. Indicate the F No and Diameter of the filler metal.
  14. Specify whether a Consumable Insert was used.
  15. Indicate if Pentration Enhancing Flux was used.
  16. Record the Deposited Weld Metal Thickness.
  17. Fill in the Current/Polarity & Current Range, including the type and range in amperes.
  18. Specify the Metal Transfer Mode (e.g., GMAW or FCAW).
  19. Indicate the Torch Shielding Gas Type and Flow rate.
  20. Provide the Root Shielding Gas Type and Flow rate, if applicable.
  21. List the Test Position(s) and Qualified Position(s) (F, H, V, O, or All).
  22. Indicate the Vertical Progression (Uphill or Downhill).
  23. Document the Type And Figure No for mechanical test results and their corresponding Results.
  24. Provide the name of the Guided Mechanical Testing Conducted By and the Date.
  25. Record the Radiographic Results and Report No.
  26. Indicate who conducted the Radiographic Testing.
  27. Document the name of the individual who witnessed the welding.
  28. Complete the Visual Inspection section, noting if it passed or failed, along with the reason for failure if applicable.
  29. Certify the statements in the record by entering the Date Qualified, ATF Name and Number, and the signature of the responsible individual.
  30. Finally, enter the CWI No (Certified Welding Inspector Number).

More About Welder Performance Qualification Record

What is the purpose of the Welder Performance Qualification Record form?

The Welder Performance Qualification Record form serves to document a welder's qualifications and capabilities. It provides a detailed account of the tests a welder has completed, the processes they are qualified to perform, and the standards they meet. This record is crucial for employers and regulatory bodies to ensure that welders possess the necessary skills for specific welding tasks.

Who needs to complete this form?

This form must be completed by welders and welding operators who are seeking to demonstrate their qualifications. It is typically required for individuals working in industries where welding is a critical component, such as construction, manufacturing, and shipbuilding. Employers may also require this documentation to comply with safety and quality standards.

What information is included in the Welder Performance Qualification Record?

The form includes essential details such as the welder's name, identification numbers, test results, and the specifications used during the qualification process. It also outlines the welding processes the welder is qualified for, the types of materials they can work with, and the positions in which they can perform welding. Additionally, it documents results from mechanical tests and non-destructive examinations.

What are the key components of the qualification range?

The qualification range includes several variables, such as the type of welding process, base metal specifications, thickness of materials, and filler metal classifications. Each of these components helps to define the scope of work the welder is certified to perform. It is essential to ensure that all variables are accurately recorded, as they determine the welder's capabilities.

What types of tests are included in the qualification process?

The qualification process typically includes guided mechanical testing and non-destructive examinations. Mechanical tests assess the strength and integrity of the welds, while non-destructive examinations, such as radiographic testing and visual inspections, ensure that the welds meet quality standards without damaging the material. These tests are crucial for confirming a welder's skills and ensuring safety in welding operations.

How long is the qualification valid?

The validity of a welder's qualification can vary based on industry standards and employer requirements. Generally, qualifications must be renewed periodically, especially if the welder has not engaged in welding activities for an extended period. It is essential for welders to stay informed about the renewal process and any changes to qualifications that may occur over time.

What is the role of the Certified Welding Inspector (CWI) in this process?

A Certified Welding Inspector plays a vital role in the qualification process. They oversee the testing, ensure compliance with relevant standards, and verify that the welder's performance meets the necessary criteria. The CWI's signature on the form confirms that the tests were conducted properly and that the results are valid. Their expertise adds credibility to the qualification record.

How can I obtain a copy of the Welder Performance Qualification Record form?

You can typically obtain a copy of the Welder Performance Qualification Record form from your employer, a welding certification organization, or relevant industry associations. Many organizations also provide downloadable versions of the form on their websites. Ensure that you are using the most current version to meet the latest standards and requirements.

Common mistakes

  1. Incomplete Information: Many individuals fail to fill out all required fields. Missing information, such as the welder's name or test number, can lead to delays in processing the record.

  2. Incorrect Specification Numbers: Using the wrong code or specification can invalidate the qualification. Always double-check that the correct AWS standards are referenced.

  3. Improper Selection of Welding Process: Selecting the wrong welding process type can affect qualification results. Make sure to accurately indicate whether the process is manual, semiautomatic, or automatic.

  4. Neglecting to Document Test Results: Failing to include mechanical test results or non-destructive examination outcomes can create gaps in the record. Ensure all test results are clearly documented.

  5. Signature and Certification Issues: Not having the required signatures or certifications can render the record incomplete. Ensure that all necessary parties sign and date the form appropriately.

Documents used along the form

The Welder Performance Qualification Record (WPQR) is a crucial document used to assess a welder's skills and capabilities. Alongside this form, several other documents are commonly utilized to ensure a comprehensive evaluation of a welder's qualifications. Below is a list of these documents, each serving a specific purpose in the qualification process.

  • Welding Procedure Specification (WPS): This document outlines the specific welding processes and parameters that must be followed during welding. It serves as a guideline for welders to ensure consistency and quality in their work.
  • Test Coupon: A test coupon is a sample piece of material that is welded to evaluate a welder's performance. The results from the test coupon help determine if the welder meets the necessary qualifications.
  • Mechanical Test Reports: These reports provide the results of mechanical tests performed on the welded joints. They evaluate properties such as tensile strength and impact resistance, which are essential for determining the integrity of the weld.
  • Non-Destructive Testing (NDT) Reports: NDT reports document the results of inspections performed on the welds without causing damage. Common methods include radiographic testing and ultrasonic testing, which help identify defects that may not be visible to the naked eye.
  • Visual Inspection Reports: These reports summarize the findings of visual inspections conducted on the welds. They assess the overall appearance and quality of the welds, noting any visible defects or issues.
  • Certification Records: Certification records confirm that the welder has completed the necessary training and has been certified by a recognized authority. These records are vital for verifying the qualifications of the welder.

Each of these documents plays an integral role in the qualification process, ensuring that welders meet industry standards and maintain high-quality workmanship. Together, they provide a comprehensive overview of a welder's capabilities and adherence to safety and quality protocols.

Similar forms

The Welder Performance Qualification Record (WPQR) form is closely related to the Welding Procedure Specification (WPS). The WPS outlines the specific procedures and parameters that must be followed during welding. It includes details such as the type of welding process, base materials, and filler metals. While the WPQR certifies the welder’s ability to execute these procedures, the WPS serves as a guideline for how those procedures should be performed. Both documents are essential in ensuring that welding meets industry standards and safety requirements.

Another document similar to the WPQR is the Procedure Qualification Record (PQR). The PQR serves to validate the welding procedure itself, confirming that it can produce welds that meet specified mechanical properties. While the WPQR focuses on the qualifications of the individual welder, the PQR centers on the welding process and its effectiveness. Together, they provide a comprehensive view of both the procedure and the welder's capabilities, ensuring that all aspects of the welding process are thoroughly vetted.

The Welder Certification Card is another related document. This card serves as proof that a welder has successfully completed the necessary qualifications to perform specific types of welding. It typically includes information such as the welder’s name, the types of welding they are certified for, and the expiration date of the certification. While the WPQR documents the qualifications achieved during testing, the certification card provides a portable form of verification that can be presented to employers or regulatory bodies.

The Non-Destructive Testing (NDT) Report also shares similarities with the WPQR. This report details the results of tests conducted to assess the integrity of welds without causing damage. NDT methods, such as radiographic testing or ultrasonic testing, are often referenced in the WPQR to confirm that welds meet quality standards. Both documents aim to ensure that the welding work is not only performed correctly but also meets safety and quality benchmarks through rigorous testing.

Lastly, the Quality Control Plan (QCP) is another document that aligns with the WPQR. The QCP outlines the processes and procedures that a company will follow to ensure quality in welding operations. It includes aspects such as inspection criteria, testing methods, and responsibilities. While the WPQR focuses on the individual welder's qualifications, the QCP provides a broader framework for maintaining quality across all welding activities within an organization, ensuring consistency and compliance with industry standards.

Dos and Don'ts

When filling out the Welder Performance Qualification Record form, it is important to adhere to specific guidelines to ensure accuracy and compliance. Below are five recommendations on what to do and what to avoid.

  • Do ensure all personal information is accurate, including the welder’s name and Social Security number.
  • Do use the correct reference WPS number to avoid any discrepancies during the qualification process.
  • Do clearly indicate the welding process and type being used, as this information is crucial for qualification.
  • Do verify that all test results, including mechanical and non-destructive examination results, are documented accurately.
  • Do have the form signed by the appropriate personnel to validate the qualification.
  • Don't leave any fields blank; incomplete information can lead to delays or rejections.
  • Don't use abbreviations that are not commonly understood, as this may cause confusion.
  • Don't overlook the importance of checking the date; it should reflect the day the qualification was completed.
  • Don't forget to include all necessary supporting documentation when submitting the form.
  • Don't sign the form without reviewing all entries for accuracy first.

Misconceptions

Understanding the Welder Performance Qualification Record (WPQR) form is crucial for ensuring compliance and quality in welding practices. However, several misconceptions surround this important document. Here are six common misunderstandings:

  • Misconception 1: The WPQR is only for new welders.
  • This is not true. The WPQR is necessary for both new and experienced welders. It documents the qualifications of all welders, regardless of their experience level.

  • Misconception 2: Completing the WPQR guarantees a welder's performance.
  • While the WPQR is a record of qualification, it does not guarantee future performance. Continuous training and practice are essential for maintaining skills.

  • Misconception 3: The WPQR is the same as a welding certification.
  • The WPQR is a record of the welder's qualifications, while certification is a formal recognition that a welder meets specific standards. They are related but not the same.

  • Misconception 4: All variables on the WPQR are essential.
  • Not all variables listed on the WPQR are essential. Some may be marked as non-essential, and these can be noted as NA (not applicable) on the form.

  • Misconception 5: The WPQR does not require regular updates.
  • This is incorrect. The WPQR should be updated whenever a welder's qualifications change or when new processes or materials are introduced.

  • Misconception 6: The WPQR is only needed for structural welding.
  • The WPQR is applicable across various welding applications, not just structural. It is essential for any welding work that requires documentation of qualifications.

Clearing up these misconceptions helps ensure that all parties involved understand the importance of the WPQR and its role in maintaining high standards in welding practices.

Key takeaways

Filling out the Welder Performance Qualification Record form is a crucial step in documenting a welder's skills and qualifications. Here are some key takeaways to keep in mind:

  • Accurate Information: Ensure that all fields are filled out accurately, including the welder's name, Social Security number, and the test number.
  • Reference WPS No: Always include the Welding Procedure Specification (WPS) number to provide context for the welding process used.
  • Variable Qualification: Pay attention to the qualification range, noting whether variables like backing and filler metal were used or required.
  • Mechanical Test Results: Document the results of any mechanical tests conducted, as these are essential for verifying the quality of the weld.
  • Non-Destructive Examination: Include results from any non-destructive examinations, such as radiographic tests, to ensure thorough evaluation.
  • Certification: Remember that certification statements must be signed by a qualified individual, verifying that all tests were conducted according to the necessary standards.
  • Test Position: Clearly indicate the test position and qualified positions, as this information is vital for understanding the welder's capabilities.
  • Documentation Retention: Keep a copy of the completed form for your records, as it may be needed for future reference or audits.

By following these guidelines, you can ensure that the Welder Performance Qualification Record form is filled out correctly and effectively supports the welder's qualifications.