Homepage > Blank Va 10 0103 Template
Article Structure

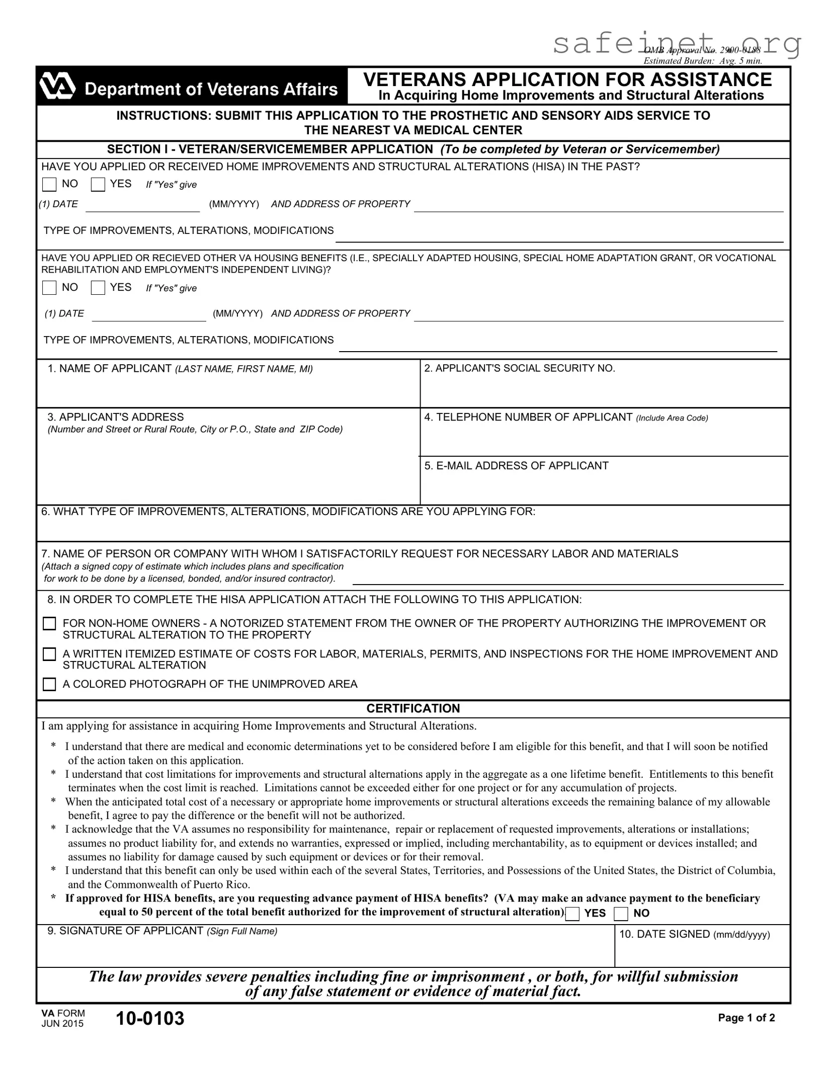
The VA Form 10-0103, known as the Veterans Application for Assistance in Acquiring Home Improvements and Structural Alterations, serves as a vital resource for veterans and servicemembers seeking to enhance their living environments. This form is specifically designed to facilitate requests for home improvements that are necessary for medical or accessibility reasons. Applicants must provide personal information, including their name, social security number, and contact details, while also disclosing any previous applications for similar benefits. This includes past assistance for home improvements or other VA housing benefits. The form requires detailed descriptions of the proposed alterations, along with estimates from licensed contractors, ensuring that the requested changes meet both safety and regulatory standards. Importantly, it also outlines the financial parameters of the assistance, emphasizing that there are lifetime limits on the benefits provided. Applicants are reminded of their responsibilities, including the understanding that they may need to cover any costs exceeding the approved amount. The completion of this form is a crucial step in accessing necessary modifications that can significantly improve the quality of life for veterans facing challenges related to their disabilities.

Form Sample

OMB Approval No. 2900-0188

Estimated Burden: Avg. 5 min.

VETERANS APPLICATION FOR ASSISTANCE

In Acquiring Home Improvements and Structural Alterations

INSTRUCTIONS: SUBMIT THIS APPLICATION TO THE PROSTHETIC AND SENSORY AIDS SERVICE TO

THE NEAREST VA MEDICAL CENTER

SECTION I - VETERAN/SERVICEMEMBER APPLICATION (To be completed by Veteran or Servicemember)

HAVE YOU APPLIED OR RECEIVED HOME IMPROVEMENTS AND STRUCTURAL ALTERATIONS (HISA) IN THE PAST?

NO

YES If "Yes" give

(1) DATE

 

(MM/YYYY) AND ADDRESS OF PROPERTY

TYPE OF IMPROVEMENTS, ALTERATIONS, MODIFICATIONS

HAVE YOU APPLIED OR RECIEVED OTHER VA HOUSING BENEFITS (I.E., SPECIALLY ADAPTED HOUSING, SPECIAL HOME ADAPTATION GRANT, OR VOCATIONAL REHABILITATION AND EMPLOYMENT'S INDEPENDENT LIVING)?

NO

YES If "Yes" give

 

 

 

 

(1) DATE

 

(MM/YYYY) AND ADDRESS OF PROPERTY

 

 

 

 

 

TYPE OF IMPROVEMENTS, ALTERATIONS, MODIFICATIONS

 

 

 

 

 

 

 

 

 

 

 

 

 

 

 

 

 

 

 

 

 

1. NAME OF APPLICANT (LAST NAME, FIRST NAME, MI)

2. APPLICANT'S SOCIAL SECURITY NO.

 

 

 

 

 

 

 

 

 

3. APPLICANT'S ADDRESS

4. TELEPHONE NUMBER OF APPLICANT (Include Area Code)

 

(Number and Street or Rural Route, City or P.O., State and ZIP Code)

 

 

 

 

 

 

 

 

 

 

 

 

 

 

 

 

 

 

5. E-MAIL ADDRESS OF APPLICANT

 

6.WHAT TYPE OF IMPROVEMENTS, ALTERATIONS, MODIFICATIONS ARE YOU APPLYING FOR:

7.NAME OF PERSON OR COMPANY WITH WHOM I SATISFACTORILY REQUEST FOR NECESSARY LABOR AND MATERIALS

(Attach a signed copy of estimate which includes plans and specification for work to be done by a licensed, bonded, and/or insured contractor).

8.IN ORDER TO COMPLETE THE HISA APPLICATION ATTACH THE FOLLOWING TO THIS APPLICATION:

FOR NON-HOME OWNERS - A NOTORIZED STATEMENT FROM THE OWNER OF THE PROPERTY AUTHORIZING THE IMPROVEMENT OR STRUCTURAL ALTERATION TO THE PROPERTY

A WRITTEN ITEMIZED ESTIMATE OF COSTS FOR LABOR, MATERIALS, PERMITS, AND INSPECTIONS FOR THE HOME IMPROVEMENT AND STRUCTURAL ALTERATION

A COLORED PHOTOGRAPH OF THE UNIMPROVED AREA

CERTIFICATION

I am applying for assistance in acquiring Home Improvements and Structural Alterations.

*I understand that there are medical and economic determinations yet to be considered before I am eligible for this benefit, and that I will soon be notified of the action taken on this application.

*I understand that cost limitations for improvements and structural alternations apply in the aggregate as a one lifetime benefit. Entitlements to this benefit terminates when the cost limit is reached. Limitations cannot be exceeded either for one project or for any accumulation of projects.

*When the anticipated total cost of a necessary or appropriate home improvements or structural alterations exceeds the remaining balance of my allowable benefit, I agree to pay the difference or the benefit will not be authorized.

*I acknowledge that the VA assumes no responsibility for maintenance, repair or replacement of requested improvements, alterations or installations; assumes no product liability for, and extends no warranties, expressed or implied, including merchantability, as to equipment or devices installed; and assumes no liability for damage caused by such equipment or devices or for their removal.

*I understand that this benefit can only be used within each of the several States, Territories, and Possessions of the United States, the District of Columbia, and the Commonwealth of Puerto Rico.

*If approved for HISA benefits, are you requesting advance payment of HISA benefits? (VA may make an advance payment to the beneficiary

equal to 50 percent of the total benefit authorized for the improvement of structural alteration). YES NO

9. SIGNATURE OF APPLICANT (Sign Full Name)

10. DATE SIGNED (mm/dd/yyyy)

The law provides severe penalties including fine or imprisonment , or both, for willful submission

of any false statement or evidence of material fact.

JUN 2015

10-0103

Page 1 of 2

VA FORM

 

 

VETERANS APPLICATION FOR ASSISTANCE IN ACQUIRING HOME IMPROVEMENTS AND STRUCTURAL ALTERATIONS, CONTINUED

SECTION II - (FOR VA USE ONLY) HISA COMMITTEE ACTION

HOME IMPROVEMENTS AND STRUCTURAL ALTERATIONS IS NECESSARY:

TO ASSURE THE CONTINUATION OF TREATMENT OF APPLICANT'S DISABILITY (Specify the disability for which the home improvement or structural alteration is necessary or appropriate)

TO PROVIDE ACCESS TO THE HOME OR TO ESSENTIAL LAVATORY AND SANITARY FACILITIES FOR TREATMENT OF: A SERVICE-CONNECTED DISABILITY

A NONSERVICE-CONNECTED DISABILITY OF A VETERAN WITH SERVICE CONNECTED DISABILITIES RATED 50%OR MORE

COST LIMITATION

TOTAL LIFETIME BENEFIT: $

AMOUNT APPROVED $

TOTAL PAID TO DATE $

TOTAL REMAINING $

ASSISTANCE IN THE AMOUNT OF $

 

 

APPROVED. (Letter of approval will state this amount, subject to

amendment for inclusion of acceptable costs omitted in this application or found to be unnecessary.)

 

ADVANCE PAYMENT IN THE AMOUNT OF $

 

 

PAID ON

(MM/DD/YYYY)

 

 

 

 

 

 

 

 

 

 

 

 

 

 

FINAL PAYMENT IN THE AMOUNT OF $

 

PAID ON

(MM/DD/YYYY)

 

 

 

 

 

 

 

APPLICATION DISAPPROVED

 

 

 

 

 

REMARKS:

SIGNATURE OF APPROVING OFFICIAL (HISA COMMITTEE CHAIRMAN, PROSTHETIC REPRESENTATIVE, CHIEF of PROSTHETICS)

DATE (mm/dd/yyyy)

PRIVACY ACT INFORMATION: The information requested on this form is solicited under authority of Title 38, U.S.C., "Veterans Benefits, and will be used to determine your eligibility/entitlement and reimbursement of individual claims for home improvement and structural alterations, and identify your medical records. Additional information may be solicited during the course of processing your application. The information you supply may also be disclosed outside the VA as permitted by law or as stated in the "Notices of Systems of VA Records' 24VA136, published in the Federal Register. Disclosure is voluntary, however, failure to furnish the information will result in our inability to process your request promptly and serve your medical needs. Failure to furnish the information will have no adverse effect on any other benefits to which you may be entitled.

The Paperwork Reduction Act of 1995 requires us to notify you that this information collection is in accordance with the clearance requirements of section 3507 of the Paperwork Reduction Act of 1995. We may not conduct or sponsor, and you are not required to respond to, a collection of information unless it displays a valid OMB number. We anticipate that the time expended by all individuals who must complete this form will average 5 minutes. This includes the time it will take to read instructions, gather the necessary facts and fill out the form.

JUN 2015

10-0103

Page 2 of 2

VA FORM

 

 

Document Specifications

Fact Name Fact Description
Form Purpose This form is used by veterans to apply for assistance with home improvements and structural alterations.
Submission Location Applicants must submit this form to the Prosthetic and Sensory Aids Service at their nearest VA medical center.
OMB Approval The form has OMB Approval No. 2900-0188.
Estimated Completion Time It is estimated that completing this form will take an average of 5 minutes.
Eligibility Criteria Applicants must disclose any prior applications for home improvements or other VA housing benefits.
Required Attachments Non-homeowners must provide a notarized statement from the property owner, along with estimates and photographs.
Lifetime Benefit Limit There are cost limitations that apply as a one-time lifetime benefit for home improvements and alterations.
Advance Payment Option Applicants may request an advance payment of up to 50% of the total authorized benefit for improvements.
Legal Notice There are severe penalties for submitting false statements or evidence related to this application.

Steps to Filling Out Va 10 0103

After completing the VA Form 10-0103, submit it to the Prosthetic and Sensory Aids Service at the nearest VA Medical Center. Ensure all required documents are attached to facilitate the processing of your application.

  1. Start by indicating whether you have previously applied for or received Home Improvements and Structural Alterations (HISA) by checking either "Yes" or "No."
  2. If you answered "Yes," provide the date (MM/YYYY) and address of the property where improvements were made, along with the type of improvements.
  3. Indicate if you have applied for or received other VA housing benefits by checking "Yes" or "No." If "Yes," include the date (MM/YYYY) and address of the property, as well as the type of benefits received.
  4. Fill in your name, including last name, first name, and middle initial.
  5. Enter your Social Security number.
  6. Provide your complete address, including number and street or rural route, city or P.O., state, and ZIP code.
  7. Include your telephone number, ensuring to include the area code.
  8. List your email address.
  9. Specify the type of improvements, alterations, or modifications you are applying for.
  10. Provide the name of the person or company you have contracted for the necessary labor and materials. Attach a signed estimate that includes plans and specifications from a licensed, bonded, and/or insured contractor.
  11. If you are a non-homeowner, attach a notarized statement from the property owner authorizing the improvement or structural alteration.
  12. Attach a written itemized estimate of costs for labor, materials, permits, and inspections related to the home improvement and structural alteration.
  13. Include a colored photograph of the unimproved area.
  14. Sign the application with your full name.
  15. Enter the date you signed the application (mm/dd/yyyy).

More About Va 10 0103

What is the VA 10-0103 form used for?

The VA 10-0103 form is an application for veterans seeking assistance with home improvements and structural alterations. This form helps veterans apply for benefits that can make their homes more accessible and suitable for their needs, particularly if they have service-connected disabilities.

Who should complete the VA 10-0103 form?

The form should be completed by the veteran or servicemember who is applying for assistance. It's important that the applicant provides accurate information regarding their past applications for home improvements or other VA housing benefits.

What information do I need to provide on the form?

You will need to provide personal details such as your name, social security number, address, and contact information. Additionally, you should describe the type of improvements or alterations you are seeking. If applicable, include details about any previous assistance received and the contractor you plan to use for the work.

What attachments are required with the VA 10-0103 form?

When submitting the form, you must attach a notarized statement from the property owner (if you are not the owner), an itemized estimate of costs for labor and materials, and a colored photograph of the area that requires improvement. These documents help support your application.

How long does it take to process the VA 10-0103 form?

The processing time can vary. However, the average time to complete the form is estimated to be around 5 minutes. Once submitted, the review of your application will depend on the VA's workload and the complexity of your request.

What happens after I submit the VA 10-0103 form?

After submission, the VA will review your application and determine your eligibility for assistance. You will be notified of the decision and any actions taken regarding your application. If approved, you may receive a letter detailing the amount of assistance you are eligible for.

Can I receive an advance payment for the improvements?

Yes, if your application is approved, you can request an advance payment. This advance can be up to 50 percent of the total benefit authorized for your home improvements or structural alterations. Be sure to indicate your request for an advance on the form.

Common mistakes

  1. Not reading the instructions carefully: Many applicants overlook the importance of thoroughly reviewing the instructions. This can lead to incomplete submissions.

  2. Failing to provide accurate personal information: Errors in names, social security numbers, or addresses can delay the processing of your application.

  3. Missing required attachments: Applicants sometimes forget to include necessary documents, such as estimates or notarized statements, which are crucial for the application.

  4. Not specifying the type of improvements: Clearly stating the nature of the requested home improvements is essential. Vague descriptions can lead to confusion and possible disapproval.

  5. Incorrectly marking previous benefits: Misunderstanding whether you have received past home improvements or VA housing benefits can result in incorrect answers.

  6. Neglecting to sign and date the form: It’s a simple step, yet many forget to sign their application or provide the date, which can render it invalid.

  7. Ignoring deadlines: Applicants may miss submission deadlines, which can affect their eligibility for assistance.

  8. Not keeping copies of submitted documents: Failing to retain copies of the application and supporting documents can create issues if follow-up is needed.

Documents used along the form

The VA Form 10-0103 is essential for veterans seeking assistance with home improvements and structural alterations. Along with this form, several other documents may be required to support the application process. Below is a list of commonly used forms and documents that can accompany the VA Form 10-0103.

  • VA Form 21-526EZ: This is the Application for Disability Compensation and Related Compensation Benefits. Veterans may need to submit this form to establish eligibility for various benefits, including those related to home improvements.
  • VA Form 10-0132: This form is used to request an increase in the amount of home improvement assistance. It is crucial for veterans who have previously received benefits and need additional support for further modifications.
  • VA Form 21-4138: Known as the Statement in Support of Claim, this form allows veterans to provide additional information or evidence that may strengthen their application for home improvement assistance.
  • Property Owner Authorization: If the applicant is not the property owner, a notarized statement from the property owner is required. This document authorizes the requested improvements or alterations to the property.
  • Itemized Cost Estimate: An itemized estimate detailing the costs for labor, materials, permits, and inspections is essential. This estimate helps the VA assess the financial aspects of the requested improvements.
  • Photographs of the Property: Colored photographs of the area requiring improvements are often needed. These images provide visual evidence of the current conditions and the necessity for alterations.

Gathering the necessary documents can streamline the application process for home improvement assistance. Ensure that all forms are completed accurately and submitted promptly to avoid delays in receiving benefits.

Similar forms

The VA Form 10-0103 is comparable to the VA Form 26-1880, which is used to apply for a Certificate of Eligibility for a VA home loan. Both forms serve veterans in their quest for home-related assistance. While the 10-0103 focuses on home improvements and structural alterations, the 26-1880 is centered around securing financing for home purchases. Both forms require detailed personal information and a declaration of any previous benefits received, ensuring that the VA can assess the applicant's eligibility effectively.

Another document similar to the VA Form 10-0103 is the VA Form 21-526EZ, the application for disability compensation and related compensation benefits. This form is essential for veterans seeking financial support due to service-connected disabilities. Like the 10-0103, it requires personal details and a history of benefits received. Both forms aim to improve the quality of life for veterans, either through home modifications or financial compensation, highlighting the VA's commitment to supporting veterans’ needs.

The VA Form 21-4138, known as the Statement in Support of Claim, also shares similarities with the 10-0103. This form allows veterans to provide additional information to support their claims for various benefits. Both documents require a narrative that outlines the veteran's situation, whether it be for home improvements or other claims. They both emphasize the importance of providing clear and comprehensive information to facilitate the decision-making process by the VA.

Next, the VA Form 21-8940, which is the application for increased compensation based on unemployability, aligns with the 10-0103 in its goal of enhancing the veteran's living conditions. While the 21-8940 focuses on employment-related issues, it also requires detailed personal information and a history of previous benefits. Both forms are designed to ensure that veterans receive the necessary support to maintain their well-being and independence.

The VA Form 26-4555, which is the application for a Specially Adapted Housing Grant, is another document similar to the VA Form 10-0103. This form is specifically tailored for veterans who need housing adaptations due to service-related disabilities. Both forms require a thorough explanation of the veteran's needs and the type of assistance being sought. They share the common goal of providing veterans with the necessary resources to adapt their living spaces for better accessibility and comfort.

Additionally, the VA Form 10-10068, which is the application for the VA’s Home Improvements and Structural Alterations (HISA) program, is directly related to the 10-0103. Both forms are used to apply for home improvement assistance, but the 10-10068 focuses specifically on the HISA program's guidelines. They both require similar documentation, including estimates and photographs, to support the request for modifications, ensuring that veterans can receive timely assistance for their home needs.

The VA Form 10-0139, the application for VA health care, is also relevant when considering the VA Form 10-0103. While the 10-0139 is primarily for healthcare access, it often intersects with housing needs, particularly for veterans with disabilities. Both forms require personal information and a history of benefits, underscoring the interconnectedness of healthcare and housing support for veterans.

Finally, the VA Form 21-0781, which is a statement in support of a claim for PTSD, shares a commonality with the VA Form 10-0103 in that both address the needs of veterans coping with the effects of service. While the 21-0781 focuses on mental health, it also requires comprehensive documentation and personal statements. Both forms aim to ensure that veterans receive the necessary benefits to improve their overall quality of life, whether through mental health support or home modifications.

Dos and Don'ts

When filling out the VA Form 10-0103, it’s important to be thorough and accurate. Here’s a list of things you should and shouldn’t do to ensure your application is processed smoothly.

  • Do read the instructions carefully before starting the form.
  • Do provide complete and accurate information about your past applications for home improvements.
  • Do attach all required documents, such as estimates and photographs, to support your application.
  • Do sign and date the application to confirm your understanding of the terms and conditions.
  • Don’t leave any sections blank unless instructed to do so.
  • Don’t submit false information, as this can lead to severe penalties.

Misconceptions

Understanding the VA 10-0103 form is crucial for veterans seeking assistance with home improvements and structural alterations. However, several misconceptions often cloud the application process. Here are seven common misunderstandings:

  1. Only homeowners can apply for benefits. Many believe that only those who own their homes can utilize the VA 10-0103 form. In reality, non-homeowners can also apply, provided they include a notarized statement from the property owner authorizing the requested improvements.
  2. Previous applications disqualify future requests. Some veterans think that if they have applied for HISA benefits before, they cannot do so again. However, past applications do not automatically disqualify individuals from receiving assistance for new improvements or alterations.
  3. The application process is overly complicated. While the form requires specific information, many find it straightforward. The estimated time to complete the application is around five minutes, making it accessible for most veterans.
  4. All types of improvements are covered. There is a misconception that any home improvement project can be funded through this benefit. In truth, the improvements must be necessary for medical or accessibility reasons, as determined by the VA.
  5. There are no cost limitations. Some veterans believe they can receive unlimited funding for improvements. However, the VA sets a total lifetime benefit limit, which means costs cannot exceed this amount for any projects combined.
  6. The VA is responsible for maintenance after approval. Many assume that once improvements are made, the VA will handle ongoing maintenance or repairs. In fact, the VA disclaims any responsibility for future maintenance or product liability.
  7. Advance payments are not an option. Some veterans are unaware that they can request advance payments for their approved benefits. The VA may provide an advance payment equal to 50 percent of the total authorized benefit for the improvement.

By addressing these misconceptions, veterans can better navigate the application process and understand their rights and responsibilities when applying for home improvement assistance through the VA.

Key takeaways

Filling out the VA 10-0103 form can be a straightforward process if you know what to keep in mind. Here are some key takeaways to help you navigate this application for assistance in acquiring home improvements and structural alterations.

  • Understand the Purpose: The VA 10-0103 form is designed for veterans and servicemembers seeking assistance with home improvements related to medical needs.
  • Eligibility Check: Before applying, confirm whether you have previously received Home Improvements and Structural Alterations (HISA) benefits.
  • Gather Necessary Information: Be prepared to provide personal details, including your name, social security number, address, and contact information.
  • Specify Improvements: Clearly outline the type of improvements or modifications you are requesting. This clarity can expedite the review process.
  • Documentation is Key: Attach all required documents, such as a notarized statement from the property owner if you are not the homeowner, and an itemized estimate of costs.
  • Photographic Evidence: Include a colored photograph of the area that requires improvement. This visual aid can support your application.
  • Understand Financial Limits: Be aware that there are lifetime cost limits for HISA benefits. Exceeding these limits will require you to cover the additional costs.
  • Advance Payment Option: If you wish to request an advance payment, indicate this on the form. VA may provide up to 50% of the total benefit authorized.
  • Signature Matters: Don’t forget to sign and date your application. A missing signature can delay the processing of your request.

By keeping these points in mind, you can ensure that your application process is as smooth and efficient as possible. Take your time to fill out the form accurately and provide all necessary documentation to avoid any delays in receiving the assistance you need.