Homepage > Blank South Carolina Real Estate Contract 310 Template
Article Structure

The South Carolina Real Estate Contract 310 form serves as a crucial document in the residential real estate transaction process, outlining the obligations and rights of both buyers and sellers. This legally binding agreement details essential elements such as the identification of parties involved, the specific property being sold, and the purchase price. It also stipulates the method of payment, including any financing arrangements, and addresses the earnest money deposit required to secure the offer. The form emphasizes the importance of a marketable title, ensuring that the seller conveys the property free of encumbrances, while also detailing the closing process and associated costs. Buyers and sellers are made aware of their responsibilities regarding property maintenance and inspections, as well as any necessary disclosures, such as the Seller’s Property Condition Disclosure Statement. Furthermore, the contract includes provisions for risk management, default scenarios, and the handling of any disputes through mediation, underscoring the urgency of adhering to timelines and conditions laid out within the document. Understanding these aspects is vital for all parties involved to navigate the complexities of real estate transactions in South Carolina effectively.

Form Sample

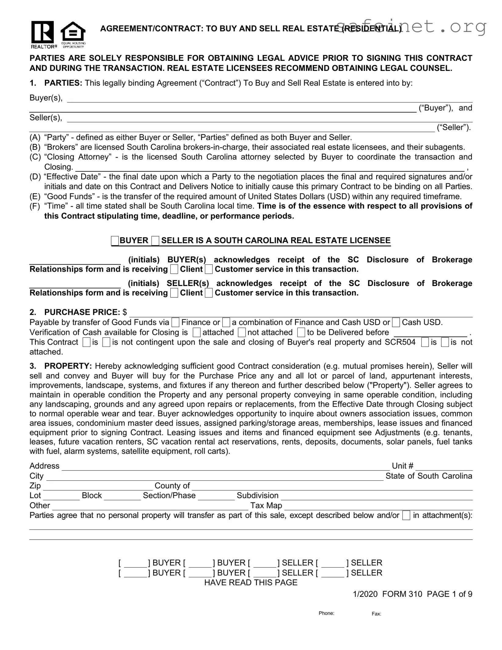
AGREEMENT/CONTRACT: TO BUY AND SELL REAL ESTATE (RESIDENTIAL)

PARTIES ARE SOLELY RESPONSIBLE FOR OBTAINING LEGAL ADVICE PRIOR TO SIGNING THIS CONTRACT AND DURING THE TRANSACTION. REAL ESTATE LICENSEES RECOMMEND OBTAINING LEGAL COUNSEL.

1.PARTIES: This legally binding Agreement (“Contract”) To Buy and Sell Real Estate is entered into by: Buyer(s),

(“Buyer”), and

Seller(s),

(“Seller”).

(A)“Party” - defined as either Buyer or Seller, “Parties” defined as both Buyer and Seller.

(B)“Brokers” are licensed South Carolina brokers-in-charge, their associated real estate licensees, and their subagents.

(C)“Closing Attorney” - is the licensed South Carolina attorney selected by Buyer to coordinate the transaction and

Closing.

,

(D)“Effective Date” - the final date upon which a Party to the negotiation places the final and required signatures and/or initials and date on this Contract and Delivers Notice to initially cause this primary Contract to be binding on all Parties.

(E)“Good Funds” - is the transfer of the required amount of United States Dollars (USD) within any required timeframe.

(F)“Time” - all time stated shall be South Carolina local time. Time is of the essence with respect to all provisions of this Contract stipulating time, deadline, or performance periods.

BUYER SELLER IS A SOUTH CAROLINA REAL ESTATE LICENSEE

(initials) BUYER(s) acknowledges receipt of the SC Disclosure of Brokerage Relationships form and is receiving Client Customer service in this transaction.

(initials) SELLER(s) acknowledges receipt of the SC Disclosure of Brokerage Relationships form and is receiving Client Customer service in this transaction.

2. PURCHASE PRICE: $

 

 

 

 

 

 

 

Payable by transfer of Good Funds via Finance or a combination of Finance and Cash USD or Cash USD.

 

 

Verification of Cash available for Closing is

attached not attached to be Delivered before

 

 

 

.

This Contract is is not contingent upon the sale and closing of Buyer's real property and SCR504

is

is not

attached.

 

 

 

 

 

3.PROPERTY: Hereby acknowledging sufficient good Contract consideration (e.g. mutual promises herein), Seller will sell and convey and Buyer will buy for the Purchase Price any and all lot or parcel of land, appurtenant interests, improvements, landscape, systems, and fixtures if any thereon and further described below ("Property"). Seller agrees to maintain in operable condition the Property and any personal property conveying in same operable condition, including any landscaping, grounds and any agreed upon repairs or replacements, from the Effective Date through Closing subject to normal operable wear and tear. Buyer acknowledges opportunity to inquire about owners association issues, common area issues, condominium master deed issues, assigned parking/storage areas, memberships, lease issues and financed equipment prior to signing Contract. Leasing issues and items and financed equipment see Adjustments (e.g. tenants, leases, future vacation renters, SC vacation rental act reservations, rents, deposits, documents, solar panels, fuel tanks with fuel, alarm systems, satellite equipment, roll carts).

Address

 

 

 

 

 

 

 

 

 

 

 

 

Unit #

City

 

 

 

 

 

 

 

 

 

 

 

 

State of

South Carolina

 

Zip

 

 

 

 

 

 

County of

 

 

 

 

 

 

 

 

 

 

Lot

 

 

 

 

Block

 

 

Section/Phase

 

 

Subdivision

 

 

 

 

Other

 

 

 

 

 

 

 

 

 

Tax Map

 

 

 

 

 

Parties

agree that no personal property will transfer as part of this sale, except described below and/or

in attachment(s):

 

 

 

 

 

 

 

 

 

 

 

 

 

 

 

 

 

 

 

 

 

 

 

 

 

 

 

 

 

 

 

 

 

 

 

 

 

 

 

 

 

 

 

[

 

] BUYER [

 

] BUYER [

 

] SELLER [

 

] SELLER

[

 

] BUYER [

 

] BUYER [

 

] SELLER [

 

] SELLER

 

 

 

HAVE READ THIS PAGE

 

 

1/2020 FORM 310 PAGE 1 of 9

Phone:Fax:

4.CONVEYANCE/CLOSING/POSSESSION: “Closing” occurs when Seller conveys Property to Buyer and occurs no

later than 5 PM on or before,(“Closing Date”). Conveyance shall be fee

simple made subject to all easements, reservations, rights of way, restrictive covenants of record (provided they do not make the title unmarketable or adversely affect the use/value of the Property in a material way) and to all government statutes, ordinances, rules, permits, and regulations. Seller agrees to convey marketable title with a properly recorded general warranty deed free of encumbrances and liens except as herein stated; and in name(s):

and ownership type determined by Buyer. The deed shall be delivered to the Closing Attorney's designated place on or before the Closing Date no later than 10 AM. Seller agrees to pay all statutory deed recording fees. Parties agree the Brokers shall have access to the closing and relevant documents; and the Brokers shall be given copies of the settlement statement prior to Closing for review. Parties agree to hire/use licensed Attorney(s). Seller shall convey possession of a vacant and reasonably clean Property, free of debris, along with all keys, codes, any remote controls, available documents (e.g. manuals, equipment warranties, service information) and similar ownership items to Buyer at Closing.

5. EARNEST MONEY: Total $

 

 

(USD) Earnest Money is paid as follows:

$

 

 

 

 

accompanies this offer and $

 

 

 

 

 

will be paid by 6 P.M. on

 

 

 

 

 

 

(date) and Earnest Money is in the form of

 

check

 

cash

other (e.g. wire)

 

 

 

to be a Credit to Buyer at Closing or disbursed only as

 

Parties agree in writing or by court

order or

by Contract or

as required for Closing

by Closing Attorney.

Buyer

and

seller authorize

 

 

 

 

 

 

 

as Escrow Agent to deposit and hold and disburse earnest

money according to the terms of any separate escrow agreement, the law, and any regulations. Broker does not guarantee payment of a check or checks accepted as earnest money. Parties direct escrow agent to communicate reasonable information confirming receipt and status of earnest money upon a Broker request. If Earnest Money is not delivered by the agreed upon date above Seller may terminate the contract by delivering Notice of Termination to the Buyer.

THE PARTIES UNDERSTAND AND AGREE THAT UNDER ALL CIRCUMSTANCES INCLUDING DEFAULT, ESCROW AGENT WILL NOT DISBURSE EARNEST MONEY DEPOSIT TO EITHER PARTY UNTIL BOTH PARTIES HAVE EXECUTED AN AGREEMENT AUTHORIZING THE DISBURSEMENT (e.g. SCR518, SCR517, MEDIATION AGREEMENT) OR UNTIL A COURT OF COMPETENT JURISDICTION HAS DIRECTED A DISBURSEMENT. EARNEST MONEY WILL NOT BE DISBURSED UNTIL DETERMINED TO BE GOOD FUNDS. IF LEGAL ACTIONS OCCUR RELATED TO EARNEST MONEY, PARTY RECEIVING THE LEAST AMOUNT OF EARNEST MONEY IN THE COURT'S DISBURSEMENT ORDER AGREES TO INDEMNIFY ESCROW AGENT'S FEES, COURT COSTS AND ATTORNEY

FEES. IF INTERPLEADER IS TO BE UTILIZED, PARTIES AGREE THAT $SHALL BE PAID TO THE ESCROW AGENT BY THE PARTIES AS COMPENSATION BEFORE ESCROW AGENT INITIATES COURT OF COMPETENT JURISDICTION PROCEEDINGS ON EARNEST MONEY.

6.TRANSACTION COSTS: Buyer's transaction costs include all costs and closing costs resulting from selected financing, pre-paid recurring items, insurance (including but not limited to mortgage insurance, title insurance lender/owner, flood, insurance, and hazard insurance) discount points, interest, non-recurring closing costs, title exam, FHA/VA allowable costs, fees and expenses of Buyer's attorney, contractually required real estate broker compensation, and the cost of any inspector, appraiser, or surveyor. Seller's transaction costs include deed preparation, deed recording costs, deed stamps/tax/recording costs calculated based on the value of the Property, all costs necessary to deliver marketable title and payoffs, satisfactions of mortgages/liens and recording, property taxes prorated at Closing, contractually required real estate broker compensation, and fees and expenses of Seller's attorney.

All costs to obtain information from or pertaining to owners' association, private/public transfer fees, and any costs similar to transfer fees (e.g. certificate of assessment, capital contributions, working capital, estoppel fees or otherwise named but similar fees) are the Seller's or Buyer's transaction costs. If no box is checked these costs will be added to Seller's transaction costs.

At Closing, Seller will pay Buyer's transaction costs not to exceed $, which includes non-

allowable costs first and then allowable costs (FHA/VA). Buyer is responsible for any Buyer's transaction costs exceeding this amount. If the amount exceeds the actual amount of those costs or amount allowed by Lender, then any excess funds will revert to Seller. Seller will also provide or pay for all of Seller's transaction costs. If no Closing, Buyer is responsible for Buyer's transaction costs and Seller responsible for Seller's transaction costs.

Unless otherwise agreed upon in writing, Buyer will pay Buyer's transaction costs and Seller pay Seller's transaction costs.

[

 

] BUYER [

 

] BUYER [

 

] SELLER [

 

] SELLER

[

 

] BUYER [

 

] BUYER [

 

] SELLER [

 

] SELLER

 

 

 

HAVE READ THIS PAGE

 

 

1/2020 FORM 310 PAGE 2 of 9

7. FINANCE: Buyer's obligation under this Contract

is is not contingent upon obtaining financing of a

30 year or

15 year or

other

 

purchase money loan at reasonable prevailing market terms with loan(s) equal

in amounts to a maximum

% of the Purchase Price or Appraised Value whichever is lower. ("Financing

Contingency"). Financing Contingency expires at Closing ("Financing Period"). Buyer must make timely good faith efforts to apply for and obtain financing while refraining from contrary actions ("Financing Effort"). In a timely manner, Buyer shall inform Seller and Brokers of pertinent financing issues and authorize Buyer's Lender to disclose pertinent loan information

to Seller and Brokers ("Financing Disclosure"). Buyer shall apply for financing by(date) and

shall Deliver Notice to Seller of reasonable pre-final loan approval (e.g. pre-approval letter, initial approval letter) that

contains no unreasonable credit, income, or asset conditions by(date) (no repairs required

prior to this Notice). Final loan approval occurs when Lender funds loan(s). If the Buyer changes their Lender during the

Financing Period they must notify the seller in writing within calendar days. Absent written approval by the Seller,

Buyer cannot change lender if the closing date agreed upon in Paragraph 4 will change as a direct result. If a Lender subsequently declines or fails to approve financing, the Buyer shall notify the Seller and Brokers as soon as possible. If the Seller and Brokers are notified of inability to obtain financing during the Financing Period, either Party may terminate

this Contract by Notice.

 

 

 

 

 

 

Lender (may change):

 

 

 

 

 

FHA VA Conventional Seller

Other

 

. An FHA VA Financing Addendum

 

is

 

 

is not attached. Additional financing terms

are

are not attached.

 

 

 

 

 

 

8. REPAIRS:

CHECK ONLY ONE OF THE FOLLOWING OPTIONS. IF NO BOXES ARE CHECKED THIS CONTRACT WILL BE AN AS-IS CONTRACT IN REGARDS TO REPAIRS. IF MULTIPLE BOXES ARE CHECKED THEN THE FIRST PARAGRAPH WITH A CHECKED BOX WILL DETERMINE REPAIRS.

REPAIR PROCEDURE:

All Repair Procedure Inspections and Requests shall be completed and delivered to the Seller by 6 P.M. on (date). Any and all requests necessary to place the heating systems, air conditioning systems, electrical systems, plumbing systems, water supply systems, water waste systems to be conveyed in operative

condition, to make the roof free of leaks, to address environmental concerns and to make the improvements structurally sound (Repair Requests) should be delivered by the deadline above. If the Buyer fails to notify the Seller within this timeframe, Buyer shall have waived any and all rights under terms of this section. If Lender's commitment requires any additional inspections or certifications, these are to be provided by the Buyer. Buyer at Buyer's expense shall have the privilege and responsibility of inspecting the structure, square footage, environmental concerns including but not limited to mold, radon gas, lead based hazards including lead based paints, wetlands study, appurtenant buildings, heating systems, air conditioning systems, electrical systems, plumbing systems, water supply systems, water waste systems, as well as, appurtenant equipment or appliances. Upon Seller's request the Buyer will provide with a copy of the Inspection Report.

No later than 6 P.M. on(date), Seller shall Deliver Notice agreeing or

not agreeing to make repairs in the Buyer's Repair Requests. The costs of all repairs to heating systems, air conditioning systems, electrical systems, plumbing systems, water supply systems, water waste systems making these systems operable, make roof free of leaks, address environmental concerns, and to make the improvements structurally sound to be paid by Seller ("Seller Paid Repairs"). Seller Paid Requests DO NOT include the following items: home maintenance, flooring, fogged windows, grandfathered code issues, landscaping, preventive maintenance, cosmetic changes, home improvement, and energy efficiency. If the Seller contractually agrees to make all the requested Seller Paid Repairs, the Parties agree to proceed under the amended Contract. The repairs to any other items are the sole responsibility of the Buyer.

If the Seller does not timely respond per above or does not agree to make all the Seller Paid Repairs, the Buyer shall within 2 Calendar Days choose any one of the following options (1) accept the Property in its present condition, (2) negotiate a new/amended Contract with the Seller for the payment of these repairs/price or (3) terminate this Contract by Delivered Notice. IF BUYER FAILS TO ACCEPT, RENEGOTIATE A NEW/AMENDED CONTRACT WITH SELLER, OR TERMINATE CONTRACT BY DELIVERED NOTICE WITHIN 2 CALENDAR DAYS: The Buyer agrees to buy and Seller agrees to sell the Property AS IS. Parties agree "As Is" means Buyer buys the Property for the Purchase Price while Seller maintains the Property from the Effective Date through Closing subject to normal wear otherwise without repair or replacement and sells the Property for the Purchase Price unless otherwise agreed upon in writing by the Parties in this Contract. The obligations of the Seller for repairs terminate upon Closing.

DUE DILIGENCE:

The DUE DILIGENCE PERIOD begins upon the Effective Date and shall expire at 6 P.M. on (date). Any extension to this date must be made in writing and agreed to by both Parties.

[

 

] BUYER [

 

] BUYER [

 

] SELLER [

 

] SELLER

[

 

] BUYER [

 

] BUYER [

 

] SELLER [

 

] SELLER

 

 

 

HAVE READ THIS PAGE

 

 

1/2020 FORM 310 PAGE 3 of 9

During the Due Diligence Period, Buyer may take timely/prudent steps to help Buyer/Inspectors, Seller/Estimators, and REALTORS® all have adequate time for: Buyer to coordinate Inspections and Repair Requests, Seller to obtain Repair estimates, Buyer and Seller to negotiate Repairs, and Buyer to potentially timely/properly Due Diligence terminate or buy.

During the Due Diligence Period, Seller agrees Buyer may rely on the following list of five items in accordance with Contract and laws. Buyer is solely responsible for Inspections. Buyer is not required to Inspect. Until Buyer timely/properly terminates the Contract or the Parties agree on an amended Contract, the Buyer can rely on #1, #2, #3, #4, and #5. TIME IS OF THE ESSENCE. Delivering a Repair Request does not extend the Due Diligence Period.

(1)Conduct/obtain Inspections [e.g. on site conditions, off site conditions]

(2)Deliver Repairs Requests Notice to Seller [e.g. SCR525 with all repair requests, all/portions of reports]

(3)Proceed under amended Contract [e.g. SCR310 and SCR525, SCR390, SCR391]

(4)Proceed under As Is Contract [e.g. Buyer desires to buy anyway, Buyer wants Property without Repair]

(5)Terminate Contract by timely/properly Delivering "Notice of Termination" and "Termination Fee" to Seller within the Due Diligence Period.

TERMINATION: During the Due Diligence Period, Buyer may unilaterally terminate this Contract only by

Delivering to the Seller both Notice of Termination and a Termination Fee of $USD Good Funds.

DURING THE DUE DILIGENCE PERIOD, SHOULD BUYER FAIL TO OBTAIN A NEW/AMENDED CONTRACT WITH THE SELLER OR BUYER FAIL TO TIMELY/PROPERLY DUE DILIGENCE TERMINATE THE CONTRACT DURING THE DUE DILIGENCE PERIOD: The Buyer agrees to buy and Seller agree to sell the Property AS IS. Parties agree "As Is" means Buyer buys the Property for the Purchase Price while Seller maintains the Property from the Effective Date through Closing subject to normal wear otherwise without repair or replacement and sells the Property for the Purchase Price unless otherwise agreed in writing by the Parties in this Contract

AS-IS

All Parties agree that Property is being sold “As-Is”. "As Is" means Buyer buys the Property for the Purchase Price while Seller maintains the Property from the Effective Date through Closing subject to normal wear without repair or replacement and sells the Property for the Purchase Price unless otherwise agreed upon in writing by the Parties in this

Contract. Buyer retains the right to inspect the Property by 6 P.M. on(date) for informational purposes only. The Seller is under no obligation to remedy any issues the Buyer discovers during their inspections, and the Buyer may not terminate the contract based on the results of any inspections conducted.

9.INSPECTION/REINSPECTION RIGHTS: Buyer and SC licensed and insured inspectors (“Inspectors”) reasonably perform any reasonable ultimately non-destructive examination and make reasonable record of the Property with reasonable Notice to Seller through Closing including investigations of off-site conditions and any issues related to the Property at Buyer Expense (“Inspections”). Buyer and persons they choose may make reasonable visual observations of Property.

Sellers will make the Property accessible for Inspection and not unreasonably withhold access, unless otherwise agreed in writing by the Parties. Seller will grant the Buyer the right to perform a final walkthrough inspection of the property within 48 hours prior to the closing date. Seller will keep all utilities operational through Closing unless otherwise agreed:

Seller grants Buyer permission to connect utilities, pay for utilities, and hire professionals (e.g. electricians, plumbers) to safely connect and operate the utilities during the Inspections

Other

see attached.

Buyer will hold harmless, indemnify, pay damages and attorneys fees to Seller and Brokers for all claims, injuries, and damages arising out of the exercise of these inspection rights. Seller will hold harmless, indemnify, pay damages and attorneys fees to Brokers for all claims, injuries, and damages arising out of the exercise of these inspection rights. Brokers recommend that Parties obtain all inspections as soon as possible. Brokers recommend that Parties and Inspectors use insurance to manage risk.

[

 

] BUYER [

 

] BUYER [

 

] SELLER [

 

] SELLER

[

 

] BUYER [

 

] BUYER [

 

] SELLER [

 

] SELLER

 

 

 

HAVE READ THIS PAGE

 

 

1/2020 FORM 310 PAGE 4 of 9

10. APPRAISED VALUE:

This Contract is contingent upon the Property being valued according to the Lender's appraisal or other appraisal as agreed upon by the Parties (“Appraised Value”) for the Purchase Price or higher. If the Parties are made aware that the Appraised Value is less than the Purchase Price and the Seller Delivers Notice to the Buyer within 5 Calendar Days or Closing (whichever earliest) of an amendment to reduce the Purchase Price to the Appraised Value, the Parties agree to proceed to Closing under terms of this Contract with the Purchase Price amended to be the Appraised Value. If Seller is aware and refuses to reduce as stated above, Buyer may proceed to Closing or terminate this Contract by Delivering Notice of Termination to the Seller.

This Contract is not contingent upon the Property being valued at an Appraised Value according to the Lender's appraisal or other appraisal as agreed upon by the Parties for the Purchase Price or more.

11.WOOD INFESTATION REPORT: If the Property to be sold has been previously occupied, this Contract is contingent not contingent upon the Buyer Seller having the Property inspected at their expense by a qualified/licensed/bonded pest control operator selected by the Buyer Seller. Buyer Seller shall deliver timely Notice of and shall deliver to Closing a CL100 Wood Infestation Report dated no earlier than 30 calendar days prior to

Closing and no later than calendar days prior to Closing. If the Buyer is responsible for having the Property

inspected as indicated above, but does not have the Property timely inspected for the report's required Delivery time frame, the Buyer waives any and all rights under the terms of this section. The Seller makes no warranties with regard to matters covered by such infestation report or any other improvement unless specifically stated in this Contract.

If the wood infestation report reveals the presence or indication of or damages by termite infestation or other wood destroying organisms, Seller shall remedy such deficiencies and shall furnish the Buyer with a CL100 wood infestation report by a qualified/licensed/bonded pest control operator (dated no earlier than 30 calendar days prior to Closing) that the Property is free from infestation or any damage herein mentioned; or documentation that the infestation has been treated and damage has been repaired as appropriate in a workmanlike manner on or before closing and reported by an appropriate licensee. State law and regulations control CL100 issues. If the Seller does not make the repairs and treatment, the Buyer shall have the option to

(1)accept the Property in its present condition, (2) negotiate with the Seller for the payment of these repairs and treatment, or

(3)terminate this Contract by Delivering Notice of Termination to the Seller. If the Property to be sold has not been previously occupied, Seller shall certify that the Dwelling has been treated by soil poisoning for the prevention of termites and other wood destroying organisms and shall provide at Closing to the Buyer a written certification from a qualified/licensed/bonded pest control operator. The obligations of the Seller under this Section terminate after the Closing.

12.SURVEY, TITLE EXAMINATION, ELEVATION, INSURANCE: Brokers recommend Buyer have Property surveyed, title examined, elevation/wetlands/beachfront determined, and appropriate insurance (e.g. flood, flood contents, hazard, liability, owner's title) effective at Closing. Unless otherwise agreed upon in writing by Parties, Buyer to obtain new insurance policies by Closing and Seller may cancel existing insurance after Closing. Flood Insurance, if required by Lender or at Buyer's option, shall be assigned to Buyer with permission of carrier and premium prorated to Closing. Buyers are solely responsible to investigate pricing, availability, coverage, and requirements of insurance (e.g. flood, flood contents, hazard, liability) for the property prior to signing Contract.

13.SURVIVAL: If any provision herein contained which by its nature or effect is required to be observed, kept, or performed after Closing, it will survive the Closing and remain binding upon for the parties hereto until fully observed, kept or performed.

14.HOME WARRANTY COMPANY OPTIONAL COVERAGE (“HWC”): Parties agree that a Home Warranty ordered by

 

 

with at least twelve months of coverage after Closing Date

will will not be provided by

Closing and $

 

 

will be paid by

 

to the Home Warranty Company.

Buyer to pay any deficit and surplus reverts to payor. Proposed HWC and type of HWC:

 

.

NOTICE: THIS IS TO GIVE YOU NOTICE THAT BROKERS HAVE/WILL/MAY RECEIVE COMPENSATION FROM HWC/OTHERS FOR REFERRAL/PROCESSING. YOU ARE NOT REQUIRED TO PURCHASE A HWC OR SIMILAR RESIDENTIAL SERVICE CONTRACT AND IF YOU CHOOSE TO PURCHASE SUCH COVERAGE YOU ARE FREE TO PURCHASE IT FROM ANOTHER PROVIDER.

15.FIRE OR CASUALTY OR INJURY: In case the Property is damaged wholly or partially by fire or other casualty prior to Closing, Parties will have the right for 5 Calendar Days after Notice of damage to Deliver Notice of Termination to other Party. If Party does not Deliver Notice of Termination, the Parties proceed according to the Contract and Seller is to be responsible to (1) repair all damage, (2) remit to Buyer an amount sufficient for repairs, or (3) assign to Buyer the right to all proceeds of insurance and remit any deductible amount applicable to such casualty. If Buyer or Inspections caused the damage, Buyer is responsible for indemnifying Seller for damages. Brokers and Parties should ensure that they are protected by appropriate risk management strategies such as insurance.

[

 

] BUYER [

 

] BUYER [

 

] SELLER [

 

] SELLER

[

 

] BUYER [

 

] BUYER [

 

] SELLER [

 

] SELLER

 

 

 

HAVE READ THIS PAGE

 

 

1/2020 FORM 310 PAGE 5 of 9

16. SC RESIDENTIAL PROPERTY CONDITION DISCLOSURE STATEMENT (“CDS”) [check one]:

Buyer and Seller agree that Seller has Delivered prior to this Contract, a CDS to Buyer, as required by SC Code of Laws Section 27-50-10 et seq. If after delivery, Seller discovers a CDS material inaccuracy or the CDS becomes materially inaccurate due to an occurrence or circumstance; the Seller shall promptly correct this inaccuracy (e.g. delivering a corrected CDS to the Buyer/making reasonable repairs prior to Closing). Buyer understands the CDS does not replace Inspections. Buyer understands and agrees the CDS contains only statements made by the Seller. Parties agree the Brokers have met requirements of SC Code 27-50-70 and Brokers are not responsible or liable for any information in the CDS. CDS is not a substitute for the Buyers and Inspectors inspecting the Property (related issues/onsite/offsite) "Property issues" for all needs.

Buyer and Seller agree that Seller will NOT complete nor provide a CDS to Buyer in accordance with SC Code of Law, as amended, Section 27-50-30, Paragraph (13). Buyers have sole responsibility to inspect Property Issues for all their needs.

17.LEAD BASED PAINT/LEAD HAZARDS: If Property was built or contains items created prior to 1978, it may contain lead based hazards and Parties agree to sign "Disclosure of Information of Lead Based Paint and/or Lead Hazards" forms (e.g. SCR315) and give copies to Brokers. Parties acknowledge receiving and understanding the EPA pamphlet "Protect Your Family From Lead in Your Home." For their protection, Buyers should conduct/obtain Inspections of all Property issues per their needs.

18.SEX OFFENDER/CRIMINAL INFORMATION: Parties agree that Brokers are not responsible for obtaining or disclosing information in the SC Sex Offender Registry and no course of action may be brought against any Brokers for failure to obtain or disclose sex offender or criminal information. Buyer and Seller agree that they have sole responsibility to obtain their own sex offender, death, psychological stigma, clandestine laboratory, and crime information from sources (e.g. law enforcement, P.I., web). The Buyer may obtain information about the Sex Offender Registry and persons registered with the Registry by contacting the local county Sheriff or other appropriate law enforcement officials.

19.TRUST ACCOUNT INTEREST/CHARITABLE CONTRIBUTION: According to the South Carolina Real Estate Commission regulations and South Carolina laws, any interest earned from deposit to Closing on Buyer's earnest money deposit belongs to Buyer. It is understood that Broker may may not place deposited earnest monies into an interest bearing trust account. If Buyer's earnest money deposit is deposited into an interest bearing trust account, Parties agree that Broker will retain all interest earned in said account and may contribute some or all to a charitable enterprise.

20.SC INCOME TAX ON NON-RESIDENT GAIN AND COMPLIANCE AND USA FEDERAL INCOME TAX: Seller and Buyer will comply with the provisions of South Carolina laws [e.g. 12-8-580 (as amended)] regarding state income tax withholding requirements if the Seller is not a resident or has not filed South Carolina state income tax returns. Seller and Buyer will comply with United States of America federal income tax laws. Seller and Buyer should discuss tax laws and minimization actions with their qualified tax advisor. Parties will comply with all local, state, federal laws, and any rules.

21.ENTIRE AND BINDING AGREEMENT (MERGER CLAUSE): Parties agree that this Contract expresses the entire agreement between the parties, that there is no other agreement, oral/otherwise, modifying the terms; and this Contract is binding on Parties and principals, heirs, personal representatives, successors, and assigns. Illegal provisions are severable.

22.ADJUSTMENTS: Buyer and Seller agree to settle or prorate, annually or as appropriate; as of Closing Date: (A) utilities and waste fees issued after Closing which include service for time Property was owned/occupied by Seller (B) real estate taxes and owner association fees/assessments for the calendar year of Closing (C) any rents, deposits, fees associated with leasing (D) insurance, EMS service, fuel/consumables, and assessments. Closing Attorney shall make tax proration based on the available tax information deemed reliable by the Closing Attorney. Should the tax or tax estimate or proration later become inaccurate or change, Buyer and Seller shall make any financial adjustments between themselves once accurate tax information is available and Buyer takes timely reasonable steps to minimize taxes. This section survives Closing. Buyer is solely responsible for timely and reasonably minimizing the Buyer's taxes and obtaining tax minimization procedural information including related legal counsel and financial counsel. Special assessments approved prior to Closing shall be the responsibility of the Seller. Special Assessments approved after Closing shall be the responsibility of the Buyer.

23.DEFAULT:

(A)If Seller defaults in the performance of any of the Seller's obligations under this Contract (“Default”), Buyer may:

(i)Deliver Notice of Default to Seller and terminate Contract; and

(ii)Pursue any remedies available to Buyer at law or equity; and

(iii)Recover attorneys' fees and all other direct costs of litigation if Seller found in default/breach of Contract.

(B)If Buyer defaults in the performance of any of the Buyer's obligations under this Contract ("Default"), Seller may:

(i)Deliver Notice of Default to Buyer and terminate Contract; and

(ii)Pursue any remedies available to Seller at law or equity; and

(iii)Recover attorneys' fees and all other direct costs of litigation if Buyer found in default/breach of Contract.

[

 

] BUYER [

 

] BUYER [

 

] SELLER [

 

] SELLER

[

 

] BUYER [

 

] BUYER [

 

] SELLER [

 

] SELLER

 

 

 

HAVE READ THIS PAGE

 

 

1/2020 FORM 310 PAGE 6 of 9

(C)If either/both Parties default, Parties agree to sign an escrow deposit disbursement agreement or release agreement.

(D)Parties may agree in writing to allow a Cure Period for a default. If within the Cure Period, either Party cures the Default and Delivers Notice, Parties shall proceed under the Contract.

24.MEDIATION: To potentially avoid expensive/lengthy/uncertain litigation, Parties may voluntarily/cooperatively decide which mediator to hire, how to pay the mediator, where to meet for mediation talks, and their own settlement agreement. Mediators do not decide settlement outcomes (Parties decide). Mediators merely facilitate the Parties reaching their own settlement and documenting settlement. Parties agree to attempt mediation for any dispute, claim, breach, representations made by any Party. Broker/other (e.g. concealment, misrepresentation, negligence, fraud) or service issues related to this Contract by using the National Association of REALTORS® Mediation Dispute Resolution System 803-772-5206 or www.NAR.REALTOR/policy/mediation or www.screaltors.org/mediation). Parties agree that the duty to attempt mediation survives closing and any signed mediation settlement agreement is binding. Parties agree some matters may proceed without mediation (e.g. foreclosure, action to enforce a mortgage or deed of trust or "rent to own" agreement, unlawful detainer action, file/enforce mechanic's lien, probate issues, interpleader action on earnest money). Parties agree some matters are not a waiver of mediation nor a breach of duty to attempt mediation (e.g. filing judicial action enabling recording notice of pending action, order for attachment/receivership/injunction or other provisional remedies).

25.NON-RELIANCE CLAUSE (NOT A MERGER CLAUSE NOR EXTENSION OF A MERGER CLAUSE): Parties execute this Contract freely and voluntarily without reliance upon any statements, representations, inducements, promises, or agreements by Brokers or Parties except as expressly stipulated or set forth in this Contract. If not contained herein, such statements, representations, inducements, promises, or agreements shall be of no force or effect. Parties acknowledge that Brokers are being retained solely as licensed real estate agents and not as any attorney, tax/financial advisor, appraiser, surveyor, engineer, mold or air quality expert, home inspector, or other professional service provider.

26.BROKER DISCLAIMER: Parties acknowledge that Brokers give no warranties or representations of any kind, expressed or implied as to: (1) condition of the Property, including but not limited to termites, radon, mold, asbestos, moisture, environmental issues, water, waste, air quality, HVAC, utilities, plumbing, electrical or structure, etc. (2) condition of the Property, survey or legal matters, square footage (3) off site conditions (4) schools (5) title including but not limited to easements, encroachments, projections, encumbrances, restrictions, covenants, setbacks, and the like (6) fitness for a particular purpose of the Property or the improvements (7) zoning ordinances and restrictions (8) projected income, value, marketability, taxes, insurance, or other possible benefits to Buyer. Parties consent that their Brokers may communicate with them via any means; and use or disclose information not made confidential by written instruction of Parties.

27.BROKERS COMPENSATION: Parties direct Closing Attorney to use settlement funds to collect and disburse Brokers Compensation to Brokers in accordance with agreements and document compensation on the settlement statement. If a Party disputes Brokers Compensation, that Party agrees to retain a South Carolina law firm to escrow only the disputed amount of Brokerage Compensation until the dispute is resolved by a written agreement signed by that Party and the Affected Broker, arbitration award, or court order. Party requesting the escrow shall pay all costs for escrow. If the dispute is not resolved within

180days of Closing, the escrow shall be disbursed to the Broker. Parties agree that Brokers are third party beneficiaries to this Contract and have standing to seek remedies at law and equity. Parties represent that their only enforceable agency and/or non-agency agreements are with the Brokers disclosed in this Contract. Parties consent to Brokers possibly receiving compensation from the HWC and/or others if compensation is paid in accordance with laws and REALTOR® ethics.

28.ATTACHMENTS, OTHER CONTINGENCIES, TERMS, AND/OR STIPULATIONS: There may be attachments to this Contract. The most recent changes, amendments, attachments, contingencies, stipulations, addendum, additions, exhibits, or writings, agreed to by the Parties; is evidence of the Parties' intent and agreement and shall control any Contract language conflicts. Parties shall initial and date Contract changes. If any documents are attached as addenda, amendments, attachments, or exhibits considered part of this Agreement, such documents can be further identified or described here (e.g. SCR 390, 391, 503, 504, 315, 320, 393, 370, 375, 513, 610):

29.NOTICE AND DELIVERY: Notice is any unilateral communication (e.g. offers, counteroffers, acceptance, termination, unilateral requests for better terms, and associated addenda/amendments) from one Party to the other. Notice to/from a Broker representing a Party is deemed Notice to/from the Party. All Notice, consents, approvals, counterparts, and similar actions required under Contract must be in paper or electronic writing and will only be effective as of delivery to the Notice address/email/fax written below and awareness of receipt by Broker (“Delivered”) unless Parties agree otherwise in writing.

[

 

] BUYER [

 

] BUYER [

 

] SELLER [

 

] SELLER

[

 

] BUYER [

 

] BUYER [

 

] SELLER [

 

] SELLER

 

 

 

HAVE READ THIS PAGE

 

 

1/2020 FORM 310 PAGE 7 of 9

30.Acknowledgements: Due to potential criminal activity, parties are solely responsible to verify all wiring instructions with law firm/bank. Parties are also advised and understand that audio/visual surveillance may occur in the property and parties should plan accordingly and comply with all federal, state, and local laws. Parties acknowledge receiving, reading, reviewing, and understanding: this Contract, the SC Disclosure of Real Estate Brokerage Relationships form, any agency agreements, and copies of these documents. Parties acknowledge having time and opportunity to review all documents and receive legal counsel from their attorneys prior to signing Contract.

31.EXPIRATION OF OFFER: When signed by a Party and intended as an offer or counter offer, this document

represents an offer to the other Party that may be rescinded any time prior to or expires at

 

AM PM

on

,

unless accepted or counter-offered by the other

Party in written form Delivered

prior to such deadline. This offer will expire automatically if no action is taken by either party 30 calendar days after the offer's submittal.

IN WITNESS WHEREOF, this Contract has been duly executed by the Parties as true to the best of their knowledge/belief. If signee is not a Party, appropriate legal documents (e.g. Power of Attorney, Corporate Authorization)

are attached or to be Delivered to the other Party within

 

Calendar Days.

 

 

Parties shall initial and date all changes in this Contract and initial all pages.

 

 

BUYER:

 

 

 

 

Date:

 

Time:

 

BUYER:

 

 

 

 

Date:

 

Time:

 

BUYER:

 

 

 

 

Date:

 

Time:

 

BUYER:

 

 

 

 

Date:

 

Time:

 

NOTICE ADDRESS/EMAIL/FAX:

 

 

 

 

 

 

 

 

 

 

 

 

 

 

 

 

 

 

 

 

 

 

 

 

SELLER:

 

 

 

 

Date:

 

Time:

 

SELLER:

 

 

 

 

Date:

 

Time:

 

SELLER:

 

 

 

 

Date:

 

Time:

 

SELLER:

 

 

 

 

Date:

 

Time:

 

NOTICE ADDRESS/EMAIL/FAX:

[

 

] BUYER [

 

] BUYER [

 

] SELLER [

 

] SELLER

[

 

] BUYER [

 

] BUYER [

 

] SELLER [

 

] SELLER

 

 

 

HAVE READ THIS PAGE

 

 

1/2020 FORM 310 PAGE 8 of 9

Buyer's Agent/Company

Buyer's Agent License #/LLR Office Code

 

 

Buyer's Agent's Email Address

Buyer's Agent Telephone Number

 

 

Seller's Agent/Company

Seller's Agent License #/LLR Office Code

 

 

Seller's Agent's Email Address

Seller's Agent Telephone Number

REALTOR® is the registered collective membership mark which may be used only by those real estate licensees who are members of the NATIONAL ASSOCIATION OF REALTORS® and who subscribe to its strict professional Code of Ethics. The South Carolina Association of REALTORS® (SCR) owns copyright to the content of this form and expressly prohibits the display, distribution, duplication, transmission, alteration, or reproduction of any part of SCR copyright content as well as the use of the name "South Carolina Association of REALTORS®" in connection with any written or electronic format without the prior written consent of SCR. SCR makes no representation as to the legal adequacy of this form or the information added for a specific transaction and recommends that Parties consult a SC attorney prior to signing to ensure the completed form meets your legal need.

[

 

] BUYER [

 

] BUYER [

 

] SELLER [

 

] SELLER

[

 

] BUYER [

 

] BUYER [

 

] SELLER [

 

] SELLER

 

 

 

HAVE READ THIS PAGE

 

 

1/2020 FORM 310 PAGE 9 of 9

Document Specifications

Fact Name Details
Parties Involved The contract is a legally binding agreement between the Buyer(s) and Seller(s) of a residential property in South Carolina.
Property Description The contract requires a detailed description of the property, including its address, tax map number, and any improvements or fixtures included in the sale.
Possession Timing Buyers will receive possession of the property at the time of closing, ensuring a smooth transition.
Earnest Money An earnest money deposit is required, which will be held in escrow and credited to the Buyer at closing.
Closing Costs Closing costs are typically divided between the Buyer and Seller, with specific responsibilities outlined in the contract.
Contingencies The Buyer’s obligation to purchase the property may depend on securing financing and other specified conditions.
Inspection Rights The Buyer has the right to inspect the property before closing, ensuring it meets their expectations and standards.
Governing Laws This contract is governed by the laws of South Carolina, including specific statutes related to real estate transactions.

Steps to Filling Out South Carolina Real Estate Contract 310

Filling out the South Carolina Real Estate Contract 310 form requires careful attention to detail. Each section must be completed accurately to ensure a smooth transaction. Follow these steps to fill out the form correctly.

  1. Enter the date: Fill in the date on which the agreement is being made.
  2. Identify the parties: Complete the names of the Buyer(s) and Seller(s) in the designated areas.
  3. Describe the property: Provide details about the property, including Lot, Block, Section, Subdivision, Address, Tax Map Number, City, Zip, and County.
  4. Specify utilities: Indicate whether the property is connected to public water, sewer, septic tank, well system, or other utilities.
  5. Outline the conveyance: State the terms under which the property will be conveyed, including the delivery of a general warranty deed.
  6. Set the closing date: Specify the closing date and time, ensuring it is before 9:00 p.m.
  7. Detail possession: Indicate when possession of the property will be given to the Buyer.
  8. Enter the purchase price: Fill in the total purchase price in dollars.
  9. Choose the method of payment: Indicate whether the payment will be made in cash or through financing, and specify the type of financing.
  10. Include earnest money: State the amount of the earnest money deposit and how it will be paid.
  11. Loan processing: Specify the loan amount and the timeline for obtaining loan approval.
  12. Clarify closing costs: Indicate who will pay for various closing costs, including preparation of the deed and other necessary expenses.
  13. Home protection plan: State whether a home warranty plan will be issued at closing and who will pay for it.
  14. Expiration of offer: Specify the time by which the offer will expire if not accepted.
  15. Adjustments: Outline how taxes and other assessments will be adjusted at closing.
  16. Risk of loss: State the terms regarding risk of loss or damage to the property before closing.
  17. Signatures: Ensure all parties sign the agreement where indicated.

After completing the form, review it thoroughly for accuracy. Ensure all necessary signatures are obtained. The next steps involve submitting the completed form to the appropriate parties and preparing for the closing process.

More About South Carolina Real Estate Contract 310

What is the South Carolina Real Estate Contract 310 form?

The South Carolina Real Estate Contract 310 form is a legally binding agreement between a buyer and a seller for the purchase and sale of residential real estate in South Carolina. It outlines the terms and conditions of the sale, including details about the property, purchase price, payment methods, and obligations of both parties. This form serves to protect the interests of both the buyer and seller throughout the transaction.

What information is required in the form?

The form requires specific information, including the names of the buyer(s) and seller(s), property details such as address and tax map number, purchase price, method of payment, and earnest money deposit. It also includes clauses related to closing costs, possession, inspections, and contingencies, among others. Each party must provide accurate information to ensure a smooth transaction.

What is earnest money, and how is it handled?

Earnest money is a deposit made by the buyer to demonstrate their serious intent to purchase the property. In the South Carolina Real Estate Contract 310 form, the buyer specifies the amount of earnest money and how it will be paid. The escrow agent holds this money until the transaction closes or until both parties agree on its disbursement. If the sale goes through, the earnest money is credited toward the purchase price. If the sale falls through due to a default, the handling of the earnest money will depend on the agreement between the parties or a court order.

What happens if the buyer fails to secure financing?

If the buyer cannot obtain financing as specified in the contract, the seller has the option to terminate the agreement. The buyer must apply for the loan within a specified period and provide proof of approval. If the buyer fails to do so, the seller can issue a written notice to terminate the contract. This provision emphasizes the importance of timely communication and action by the buyer regarding financing.

How are closing costs handled?

Closing costs are the fees associated with finalizing the real estate transaction. According to the South Carolina Real Estate Contract 310 form, unless otherwise agreed, the seller is responsible for preparing the deed and ensuring a marketable title, while the buyer typically covers costs such as the credit report, property insurance, and loan-related fees. Both parties should review these obligations carefully to avoid misunderstandings at closing.

What contingencies can be included in the contract?

Contingencies are conditions that must be met for the contract to be binding. The South Carolina Real Estate Contract 310 form allows for various contingencies, such as obtaining financing, satisfactory property inspections, and appraisal values meeting or exceeding the purchase price. Buyers and sellers can negotiate additional contingencies to protect their interests. It is crucial for both parties to understand these conditions, as they can significantly impact the transaction.

What should buyers know about property condition disclosures?

Buyers should be aware that the seller is required to provide a Property Condition Disclosure Statement, which outlines the condition of the property. This statement must be delivered before the contract is ratified. If any inaccuracies are discovered after delivery, the seller must correct them. Buyers should not rely solely on this disclosure and are encouraged to conduct their own inspections to ensure they are fully informed about the property's condition.

Common mistakes

  1. Incomplete Information: One common mistake is not filling in all required fields. This includes the parties' names, property details, and purchase price. Missing information can delay the process or even void the contract.

  2. Incorrect Dates: Failing to specify the correct dates for closing or loan approval can lead to confusion. It’s crucial to ensure that all dates are accurate and clearly stated.

  3. Improper Earnest Money Handling: Some people forget to specify the amount and method of the earnest money deposit. This can cause issues later if the parties disagree on the terms of the deposit.

  4. Neglecting Contingencies: Not including necessary contingencies, such as financing or inspection clauses, can leave buyers vulnerable. These protections are essential for ensuring that buyers can back out if certain conditions aren’t met.

  5. Ignoring Legal Requirements: Some individuals overlook the need for disclosures, like the Seller's Property Condition Disclosure. This can lead to legal complications down the line if issues arise with the property.

Documents used along the form

The South Carolina Real Estate Contract 310 form is a crucial document in real estate transactions. However, it is often accompanied by other forms and documents that help clarify terms and protect the interests of both buyers and sellers. Here are five commonly used documents that work alongside the 310 form.

  • Seller's Property Condition Disclosure Statement: This document outlines the condition of the property being sold. It is required by South Carolina law and provides buyers with important information about any known issues or defects in the property. The seller must disclose any material facts that could affect the buyer's decision.
  • Earnest Money Agreement: This agreement details the earnest money deposit made by the buyer to demonstrate their commitment to purchasing the property. It outlines how the funds will be held in escrow and the conditions under which they may be returned to the buyer or forfeited to the seller.
  • Home Inspection Report: Conducted by a qualified inspector, this report assesses the condition of the property. It identifies any necessary repairs or issues that may need to be addressed before the sale is finalized. Buyers often rely on this report to negotiate repairs or price adjustments with the seller.
  • Closing Disclosure: This document provides a detailed breakdown of all costs associated with the transaction, including closing costs, loan fees, and other expenses. It must be provided to the buyer at least three days before closing, allowing them to review and understand the financial aspects of the purchase.
  • Title Insurance Policy: This policy protects the buyer and lender from potential issues related to the title of the property, such as liens or ownership disputes. It ensures that the buyer receives clear title to the property and can help resolve any claims that may arise after the purchase.

Understanding these additional documents is essential for anyone involved in a real estate transaction in South Carolina. They provide valuable information and protection, ensuring that both buyers and sellers can proceed with confidence.

Similar forms

The South Carolina Real Estate Contract 310 form is similar to the Purchase Agreement commonly used in real estate transactions across the United States. Both documents outline the essential terms of a real estate sale, including the parties involved, property details, purchase price, and conditions of sale. Like the South Carolina form, a standard Purchase Agreement typically includes sections on earnest money deposits, financing contingencies, and closing details. Each document serves to protect the interests of both buyers and sellers, ensuring clarity and mutual understanding throughout the transaction process.

Another document comparable to the South Carolina Real Estate Contract 310 is the Residential Lease Agreement. While the 310 form pertains to the sale of property, the Lease Agreement outlines the terms under which a tenant may occupy a property. Both documents specify the parties involved, the property description, and the obligations of each party. They also address issues such as payment terms, maintenance responsibilities, and conditions for termination, providing a structured approach to property transactions and occupancy.

The Listing Agreement is also similar to the South Carolina Real Estate Contract 310. This document establishes the relationship between a seller and a real estate agent, detailing the agent's responsibilities in marketing the property. Like the 310 form, the Listing Agreement includes terms regarding commission, duration of the listing, and disclosures about the property. Both documents aim to facilitate a smooth transaction by clearly defining roles and expectations for all parties involved.

The Option to Purchase Agreement shares similarities with the South Carolina Real Estate Contract 310 as well. This document gives a potential buyer the right to purchase a property within a specified timeframe, typically in exchange for an option fee. Both agreements outline the purchase price and any contingencies, such as financing or inspections. The Option to Purchase Agreement allows for flexibility in the buying process, similar to how the 310 form provides contingencies for buyers to secure financing or conduct inspections.

The Seller's Property Disclosure Statement is another document that complements the South Carolina Real Estate Contract 310. This statement requires sellers to disclose known defects or issues with the property before the sale. Both documents work together to ensure transparency in the transaction. While the 310 form details the terms of the sale, the disclosure statement provides critical information that can affect the buyer's decision, thereby enhancing buyer protection.

The Real Estate Purchase and Sale Agreement is another document similar to the South Carolina Real Estate Contract 310. This agreement serves as a legally binding contract between the buyer and seller, detailing the terms of the sale, including purchase price, contingencies, and closing procedures. Like the 310 form, it emphasizes the importance of clear communication and mutual agreement on the terms of the transaction, ensuring that both parties are on the same page.

The Lease Option Agreement also bears resemblance to the South Carolina Real Estate Contract 310. This document combines elements of leasing and purchasing, allowing a tenant to lease a property with the option to buy it later. Both agreements outline the responsibilities of each party and the terms of the transaction, including purchase price and duration. This type of agreement provides an opportunity for buyers who may need time to secure financing while still allowing them to lock in a purchase price.

Finally, the Real Estate Investment Contract is akin to the South Carolina Real Estate Contract 310, particularly for investors. This document outlines the terms under which an investor purchases a property for investment purposes. Both contracts include essential details such as purchase price, financing terms, and contingencies. They serve to protect the interests of the parties involved, ensuring that all aspects of the transaction are clearly defined and agreed upon.

Dos and Don'ts

When filling out the South Carolina Real Estate Contract 310 form, it’s crucial to follow specific guidelines to ensure accuracy and compliance. Here are eight essential do's and don'ts:

  • Do provide complete and accurate information for all parties involved, including names and contact details.
  • Do specify the property details clearly, including address, tax map number, and any relevant features.
  • Do include the purchase price and payment method, ensuring that all financial terms are clearly outlined.
  • Do understand the terms regarding earnest money and ensure it is handled according to state regulations.
  • Don't leave any sections blank; incomplete forms can lead to misunderstandings and legal issues.
  • Don't overlook the importance of timelines; ensure all deadlines for loan applications and inspections are clearly stated.
  • Don't ignore the need for disclosures; provide all necessary property condition information as required by law.
  • Don't forget to review the entire document before signing; ensure all terms are acceptable and understood.

Misconceptions

Understanding the South Carolina Real Estate Contract 310 form is crucial for both buyers and sellers. However, several misconceptions can lead to confusion. Here are seven common misconceptions about this contract form:

  • The contract is not legally binding. Many believe that the South Carolina Real Estate Contract 310 form is merely a suggestion. In reality, it is a legally binding agreement once signed by both parties, creating enforceable obligations.
  • All repairs are the seller's responsibility. While sellers must address certain repairs, such as those related to heating and plumbing, buyers are generally responsible for other repairs. Understanding this division of responsibility is essential.
  • Earnest money guarantees the sale. Some assume that paying earnest money guarantees the transaction will close. However, if either party defaults, the earnest money may not be returned without mutual agreement or court intervention.
  • The seller must disclose all property issues. It is a common belief that sellers must reveal every possible issue with the property. However, sellers are only required to disclose known material defects, not every minor problem.
  • Closing costs are always split evenly. Many think closing costs are automatically divided between buyers and sellers. In reality, the contract specifies who pays which costs, and this can vary significantly.
  • Buyers can back out for any reason. Some buyers believe they can withdraw from the contract at any time without consequences. However, doing so may result in penalties, including the loss of earnest money.
  • The property is sold "as is" without any recourse. While some assume "as is" means buyers have no rights, this is not entirely true. Buyers may still negotiate repairs or seek recourse if undisclosed issues arise after the sale.

Being aware of these misconceptions can help both buyers and sellers navigate the real estate transaction process more effectively. Understanding the terms and conditions of the South Carolina Real Estate Contract 310 form is vital to making informed decisions.

Key takeaways

  • The South Carolina Real Estate Contract 310 form is a legally binding agreement between the buyer and seller, outlining the terms of the sale.

  • It is essential to accurately complete all sections, including parties involved, property details, and purchase price, to avoid disputes later.

  • Earnest money is required and serves as a deposit to demonstrate the buyer's commitment. The escrow agent will hold this deposit until the transaction closes.

  • Both parties must agree on how closing costs will be allocated, including who pays for the deed preparation and any necessary inspections.

  • The contract includes provisions for contingencies, such as financing and property inspections, which can affect the buyer's obligation to complete the purchase.

  • Time is a critical factor in this agreement, as many deadlines are specified for actions like loan applications and inspections, emphasizing the need for prompt communication.