Homepage > Blank South Carolina Pt 401 Template
Article Structure

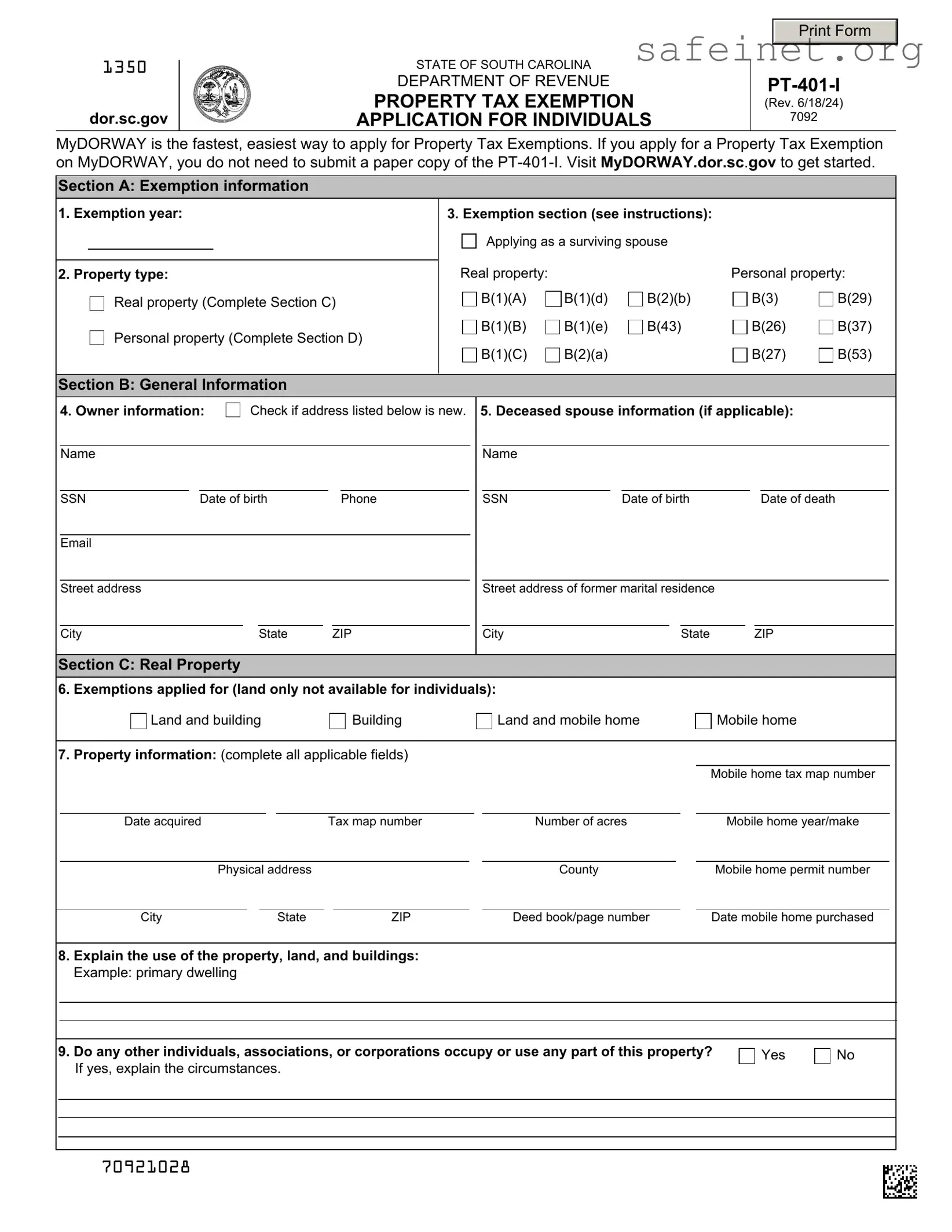
The South Carolina PT 401 form is an essential document for individuals and organizations seeking property tax exemptions within the state. This application must be filled out by either the property owner or an authorized agent, ensuring that all required sections are completed accurately to avoid any delays in processing. It is important to provide detailed information, including the legal owner's name, address, and relevant identification numbers, as well as specifics about the property or vehicle for which the exemption is sought. The form covers various types of exemptions, including those applicable to real property, vehicles, and personal property owned by nonprofit organizations. Additionally, it outlines the necessary documentation that must accompany the application, such as deeds, IRS determination letters, and financial statements. By understanding the key components of the PT 401 form, applicants can navigate the process more smoothly and increase their chances of receiving the desired tax relief.

Form Sample

1350

dor.sc.gov

STATE OF SOUTH CAROLINA

DEPARTMENT OF REVENUE

PROPERTY TAX EXEMPTION

APPLICATION FOR INDIVIDUALS

Print Form

PT-401-I

(Rev. 6/18/24)

7092

MyDORWAY is the fastest, easiest way to apply for Property Tax Exemptions. If you apply for a Property Tax Exemption on MyDORWAY, you do not need to submit a paper copy of the PT-401-I. Visit MyDORWAY.dor.sc.gov to get started.

Section A: Exemption information

1. Exemption year:

 

 

 

 

 

 

 

 

 

 

 

3. Exemption section (see instructions):

 

 

 

 

 

 

 

 

 

 

 

 

 

 

 

 

 

 

 

 

 

 

 

 

 

 

 

 

 

 

 

 

 

 

Applying as a surviving spouse

 

 

 

 

 

 

 

 

 

 

 

 

 

 

 

 

 

 

 

 

 

 

 

 

 

 

 

 

 

 

 

 

 

 

 

 

 

 

 

 

 

 

 

 

 

 

 

 

 

 

 

 

 

 

 

 

 

 

 

Real property:

 

 

 

 

 

 

 

Personal property:

2. Property type:

 

 

 

 

 

 

 

 

 

 

 

 

 

 

 

 

 

 

 

 

 

 

 

Real property (Complete Section C)

 

 

 

B(1)(A)

 

 

 

B(1)(d)

 

 

 

B(2)(b)

 

 

 

 

B(3)

 

 

B(29)

 

 

 

 

 

 

 

 

 

 

 

 

 

 

 

 

 

 

 

 

 

 

 

 

 

 

 

 

 

 

 

 

 

 

 

 

 

 

 

 

 

 

 

 

 

 

 

 

 

 

 

 

 

 

 

Personal property (Complete Section D)

 

 

 

B(1)(B)

 

 

B(1)(e)

 

 

 

B(43)

 

 

 

 

B(26)

 

 

B(37)

 

 

 

 

 

 

 

 

 

 

 

 

 

 

 

 

 

 

 

 

 

 

 

 

 

 

 

 

 

 

 

 

 

 

 

 

 

 

 

 

 

 

 

 

 

B(1)(C)

 

 

B(2)(a)

 

 

 

 

 

 

 

 

 

 

B(27)

 

 

B(53)

 

 

 

 

 

 

 

 

 

 

 

 

 

 

 

 

 

 

 

 

 

 

 

 

 

 

 

 

 

 

 

 

 

 

 

 

 

 

 

 

 

 

 

 

 

 

 

 

 

 

 

 

 

 

 

 

 

 

 

 

 

 

 

 

 

 

 

 

 

 

 

 

 

 

 

 

 

 

 

 

 

 

 

 

 

 

 

 

 

 

 

 

 

 

 

 

 

 

 

 

 

 

 

 

 

 

 

 

 

 

 

 

 

 

 

 

 

 

 

 

 

 

 

 

 

 

 

 

 

 

 

 

 

 

Section B: General Information

 

 

 

 

 

 

 

 

 

 

 

 

 

 

 

 

 

 

 

 

 

 

 

 

 

 

 

 

 

 

 

 

4. Owner information:

 

 

 

Check if address listed below is new. 5. Deceased spouse information (if applicable):

 

 

 

 

 

 

 

 

 

 

 

 

 

 

 

 

 

 

 

 

 

 

 

 

 

 

 

 

 

 

 

 

 

 

 

 

 

 

 

 

 

 

 

 

 

 

 

 

 

 

Name

 

 

 

 

 

 

 

 

 

 

 

 

 

 

 

 

Name

 

 

 

 

 

 

 

 

 

 

 

 

 

 

 

 

 

 

 

 

 

 

 

 

 

 

 

 

 

 

 

 

 

 

 

 

 

 

 

 

 

 

 

 

 

 

 

 

 

 

 

 

SSN

Date of birth

Phone

 

 

 

 

SSN

 

Date of birth

 

 

 

 

Date of death

 

 

 

 

 

 

 

 

 

 

 

 

 

 

 

 

 

 

 

 

 

 

 

 

 

 

 

 

 

 

 

 

 

 

 

 

 

 

 

 

 

 

 

 

Email

 

 

 

 

 

 

 

 

 

 

 

 

 

 

 

 

 

 

 

 

 

 

 

 

 

 

 

 

 

 

 

 

 

 

 

 

 

 

 

 

 

 

 

 

 

 

 

 

 

 

 

 

 

 

 

 

 

 

 

 

 

 

 

 

 

 

 

 

 

 

 

 

 

Street address

 

 

 

 

 

 

 

 

 

 

 

 

 

 

Street address of former marital residence

 

 

 

 

 

 

 

 

 

 

 

 

 

 

 

 

 

 

 

 

 

 

 

 

 

 

 

 

 

 

 

 

 

 

 

 

 

 

 

 

 

 

 

 

 

 

City

 

 

 

 

 

State

ZIP

 

 

 

City

 

 

 

 

 

State

 

 

 

ZIP

 

 

Section C: Real Property

6. Exemptions applied for (land only not available for individuals):

 

 

 

 

Land and building

 

 

 

 

 

Building

 

 

Land and mobile home

 

 

Mobile home

 

 

 

 

 

 

 

 

 

 

 

 

 

 

 

 

 

 

 

 

 

 

 

 

 

 

 

 

 

 

 

 

 

 

 

 

 

 

 

 

 

 

 

 

 

 

 

 

 

 

7.

Property information: (complete all applicable fields)

 

 

 

 

 

 

 

 

 

 

 

 

 

 

 

 

 

 

 

 

 

 

 

 

 

 

 

 

 

 

 

 

 

 

 

 

Mobile home tax map number

 

 

 

 

 

 

 

 

 

 

 

 

 

 

 

 

 

 

 

 

 

 

 

 

 

 

 

 

Date acquired

 

 

Tax map number

 

 

Number of acres

 

 

Mobile home year/make

 

 

 

 

 

 

 

 

 

 

 

 

 

 

 

 

 

 

 

 

 

 

 

 

 

 

 

 

 

Physical address

 

 

 

 

 

 

 

 

County

 

 

Mobile home permit number

 

 

 

 

 

 

 

 

 

 

 

 

 

 

 

 

 

 

 

 

 

 

 

 

 

 

City

 

 

State

 

 

 

ZIP

 

 

Deed book/page number

 

Date mobile home purchased

 

 

 

 

 

 

 

 

 

 

 

 

 

 

 

 

 

 

 

 

 

 

 

 

 

 

 

 

8.

Explain the use of the property, land, and buildings:

 

 

 

 

 

 

 

 

 

 

 

 

 

 

 

 

 

Example: primary dwelling

 

 

 

 

 

 

 

 

 

 

 

 

 

 

 

 

 

 

 

 

 

 

 

 

 

 

 

 

 

 

 

 

 

 

 

 

 

 

 

 

 

 

 

 

 

 

 

 

 

 

 

 

 

 

 

 

 

 

 

 

 

 

 

 

 

 

 

 

 

 

 

 

 

 

 

 

 

 

 

 

 

 

 

 

 

 

 

 

 

 

 

 

 

 

 

 

 

 

 

 

 

 

 

 

 

 

 

 

 

 

9.

Do any other individuals, associations, or corporations occupy or use any part of this property?

 

 

Yes

 

No

 

 

 

 

 

If yes, explain the circumstances.

 

 

 

 

 

 

 

 

 

 

 

 

 

 

 

 

 

 

 

 

 

 

 

 

 

 

 

 

 

 

 

 

 

 

 

 

 

 

 

 

 

 

 

 

70921028

Section C: Real Property (cont'd)

10.

Do you receive any rent for this property?

 

 

 

 

 

 

 

 

Yes

 

No

If yes, from whom?

 

 

 

 

 

 

 

 

 

 

 

 

 

 

 

 

 

 

 

 

 

 

 

 

 

 

 

 

 

 

 

 

 

 

11.

Do you lease or rent this property?

 

 

 

 

 

 

 

 

 

 

Yes

 

 

No

If yes, from whom?

 

 

 

 

 

 

 

 

 

 

 

 

 

 

 

 

 

 

 

 

 

 

 

 

 

 

 

 

 

 

 

 

 

 

 

 

 

 

 

Section D: Personal Property

 

 

 

 

 

 

 

 

12.

Complete the chart below to apply for vehicle exemption:

 

 

 

 

 

Vehicle Identification Number

Type

 

Make

Year

Registered Owner

County of

 

 

 

Registration

 

 

 

 

 

 

 

 

 

 

 

 

 

 

 

 

 

 

 

 

 

 

 

 

 

 

 

 

 

 

 

 

 

 

 

 

 

 

 

13.

List any vehicles to be removed:

 

 

 

 

 

 

 

 

 

 

 

 

 

 

 

 

 

 

 

 

 

 

 

Vehicle Identification Number

Type

 

Make

Year

Registered Owner

County of

 

 

 

Registration

 

 

 

 

 

 

 

 

 

 

 

 

 

 

 

 

 

 

 

 

 

 

 

 

 

 

 

 

 

 

 

 

 

 

 

 

 

 

 

 

 

 

 

 

 

Section E: Declaration of Owner or Owner's Agent

I understand that a misstatement or concealment of fact in an application is sufficient grounds for the denial of this application for exemption. Under penalties of perjury, I declare and affirm that I have read and understood this form, and the information I have provided is true, correct, and complete.

Signature

 

Date

Important Reminders

·If you leave the Exemption year requested blank, it will default to the current year.

·Claims for exemptions must be received within two years from the date taxes were paid.

·If you are requesting refunds for two years, you must include the paid tax receipts.

·You will need to reapply if there is

oa change in status, or

oa change in ownership of previously exempted property

INSTRUCTIONS

MyDORWAY is the fastest, easiest way to apply for Property Tax Exemptions. If you apply for a Property Tax Exemption on MyDORWAY, you do not need to submit a paper copy of the PT-401-I.

Choose from one of the following ways to apply:

·If you don't have a MyDORWAY account, visit MyDORWAY.dor.sc.gov. Under Applications & Searches, click Exempt Property Application. On the next screen, select Request Individual Property Exemption.

·If you are able to create a MyDORWAY account, get started at dor.sc.gov/MyDORWAY-signup. You will need your SSN along with line 1 from your last Individual Income Tax return, your last refund amount, or a Letter ID.

·If you are not using MyDORWAY, mail your application to this address: SCDOR, Government Services Division, PO Box 125, Columbia, SC 29214-0720

·We also accept applications in person at any of our service centers. Visit dor.sc.gov/contact/in-person for location information and hours.

Questions? We're here to help. Email us at [email protected].

70922026

EXEMPTION SECTIONS:

Required documentation is listed for each exemption.

For more information, SC Code Sections are available at dor.sc.gov/policy.

Real Property (Land and Home) Exemptions for Individuals

B(1)(A) - Dwelling home of a veteran who is permanently and totally disabled as a result of a service-connected disability

A veteran who is totally and permanently disabled from a service-connected disability may apply for a Property Tax exemption for a dwelling home they own solely, in fee or for life, or jointly with a spouse. VA Rating decision letters do not meet requirements of law. Provide copies of the following:

·Certificate from VA or Local County Service Officer certifying total and permanent service-connected disability, with the effective date

·Recorded deed

·Documentation that the 4% special assessment ratio for an owner-occupied dwelling from the county assessor's office has been granted, either solely to the applicant or jointly with a spouse

·Your marriage certificate if the home is jointly titled with a spouse

·Title, bond for title, or bill of sale if the property is a mobile home

A surviving spouse may apply for this exemption for the dwelling home they solely own or acquired from the deceased spouse, as long as the spouse remains unmarried, resides in the house, and owns the house in fee or for life.

If you are applying as a surviving spouse, provide copies of the following:

·Documentation from the VA showing that you are the survivor of the veteran

·Form DD 1300, Report of Casualty, if you are applying as the surviving spouse of a soldier killed in action

·Veteran's death certificate

·Recorded deed of distribution, or last will and testament. If the home was solely owned by the surviving spouse prior to the deceased veteran's death, then a copy of the recorded deed is necessary.

·Documentation that the 4% special assessment ratio for an owner-occupied dwelling from the county assessor's office has been granted, solely to the applicant

·Title, bond for title, or bill of sale if the property is a mobile home

B(1)(B) - Dwelling home of a former law enforcement officer, who is permanently and totally disabled as a result of a law enforcement service-connected disability in South Carolina

A former law enforcement officer who is totally and permanently disabled as a result of their law enforcement service- connected disability may apply for a Property Tax exemption for a dwelling home they own solely, in fee or for life, or jointly with a spouse. Provide copies of the following:

·Documentation from commanding officer certifying that the applicant was totally and permanently disabled in the line of duty in South Carolina, with the effective date

·Final order issued by Workers’ Compensation Commission of total and permanent service-connected disability in South Carolina, with the effective date

·Recorded deed

·Documentation that the 4% special assessment ratio for an owner-occupied dwelling from the county assessor's office has been granted, either solely to the applicant or jointly with a spouse

·Your marriage certificate if the home is jointly titled with a spouse

·Title, bond for title, or bill of sale if the property is a mobile home

A surviving spouse may apply for this exemption for the dwelling home they solely own or acquired from the deceased spouse, as long as the spouse remains unmarried, resides in the house, and owns the house in fee or for life.

If you are applying as a surviving spouse, provide copies of the following:

·Documentation from commanding officer certifying that the South Carolina law enforcement officer was killed in the line of duty in South Carolina

·Officer's death certificate

·Recorded deed of distribution, or last will and testament. If the home was solely owned by the surviving spouse prior to the deceased veteran's death, then a copy of the recorded deed is necessary.

·Documentation that the 4% special assessment ratio for an owner-occupied dwelling from the county assessor's office has been granted, solely to the applicant

·Title, bond for title, or bill of sale if the property is a mobile home

B(1)(C) - Dwelling home of a former firefighter, including volunteer firefighter, who is permanently and totally disabled as a result of a firefighting service-connected disability in South Carolina

A former firefighter or volunteer firefighter who is totally and permanently disabled as a result of their firefighting service- connected disability may apply for a Property Tax exemption for a dwelling home they own in fee or for life, or jointly with a spouse. Provide copies of the following:

·Documentation from the fire department chief certifying the applicant was totally and permanently disabled in the line of duty in South Carolina, with the effective date

·Final order issued by Workers’ Compensation Commission of total and permanent service-connected disability in South Carolina, with the effective date

·Recorded deed

·Documentation that the 4% special assessment ratio for an owner-occupied dwelling from the county assessor's office has been granted, either solely to the applicant or jointly with a spouse

·Your marriage certificate if the home is jointly titled with a spouse

·Title, bond for title, or bill of sale if the property is a mobile home

A surviving spouse may apply for this exemption for the dwelling home they solely own or acquired from the deceased spouse, as long as the spouse remains unmarried, resides in the house, and owns the house in fee or for life.

If you are applying as a surviving spouse, provide copies of the following:

·Documentation from the fire department chief certifying that the South Carolina firefighter was killed in the line of duty in South Carolina

·Firefighter's death certificate

·Recorded deed of distribution, or last will and testament. If the home was solely owned by the surviving spouse prior to the deceased veteran's death, then a copy of the recorded deed is necessary.

·Documentation that the 4% special assessment ratio for an owner-occupied dwelling from the county assessor's office has been granted, solely to the applicant

·Title, bond for title, or bill of sale if the property is a mobile home

B(1)(d) - For the above B(1)(A), B(1)(B), and B(1)(C) Property held in trust

When a trustee holds the legal title to a dwelling for a beneficiary and the beneficiary qualifies for the exemption and uses the dwelling as their primary residence, the dwelling is exempt from property taxation. Provide copies of the following:

·The same documentation listed above for B(1)(A), B(1)(B), and B(1)(C)

·A copy of the signed trust agreement verifying the applicant is the income beneficiary

·Documentation that the beneficiary has been granted the 4% special assessment ratio for an owner-occupied dwelling from the county assessor's office

B(1)(e) - For the above B(1)(A), B(1)(B), and B(1)(C) Eligible ownership requirements

A person who owns an interest in a house and meets all other requirements of this item and is otherwise an eligible owner but for the ownership requirement is deemed to be an eligible owner so long as the county assessor certifies to the South Carolina Department of Revenue that the house is located on heirs' property and the person is the owner-occupied resident of the house. For purposes of this item, heirs' property has the same meaning as provided in Section 15-61-320. Provide copies of the following:

·The same documentation listed above for B(1)(A), B(1)(B), and B(1)(C)

·Certification from the county assessor's office that the house is located on heirs' property

·Documentation that the beneficiary has been granted the 4% special assessment ratio for an owner-occupied dwelling from the county assessor's office

B(2)(a) - Dwelling home of a paraplegic or hemiplegic person

A paraplegic or hemiplegic person may apply for a Property Tax exemption for a dwelling home and a lot up to one acre that they own solely or jointly with a spouse. For purposes of this exemption, "paraplegic" or "hemiplegic" includes a person with Parkinson's disease, Multiple Sclerosis, or Amyotrophic Lateral Sclerosis, which has caused the same ambulatory difficulties as a person with paraparesis or hemiparesis. Provide copies of the following:

·Signed physician’s statement on the physician’s letterhead certifying the paraplegic or hemiplegic condition OR certifying that the Parkinson's disease, Multiple Sclerosis, or Amyotrophic Lateral Sclerosis has caused the same ambulatory difficulties as mentioned above, including the effective date of ambulatory difficulties

·Recorded deed

·Documentation that the 4% special assessment ratio for an owner-occupied dwelling from the county assessor's office has been granted, either solely to the applicant or jointly with a spouse

·Your marriage certificate if the home is jointly titled with a spouse

·Title, bond for title, or bill of sale if the property is a mobile home

A surviving spouse may apply for this exemption for the dwelling home they acquired from the deceased spouse, as long as the spouse remains unmarried, resides in the house, and owns the house in fee or for life.

If you are applying as a surviving spouse, provide copies of the following:

·Former applicant's death certificate

·Recorded deed of distribution, or last will and testament

·Documentation that the 4% special assessment ratio for an owner-occupied dwelling from the county assessor's office has been granted, solely to the applicant

·Title, bond for title, or bill of sale if the property is a mobile home

B(2)(b) - For the above B(2)(a) Property held in trust

When a trustee holds the legal title to a dwelling for a beneficiary and the beneficiary qualifies for the exemption and uses the dwelling as their primary residence, the dwelling is exempt from property taxation. Provide copies of the following:

·The same documentation listed above for B(2)(a)

·A copy of the signed trust agreement verifying the applicant is the income beneficiary

·Documentation that the beneficiary has been granted the 4% special assessment ratio for an owner-occupied dwelling from the county assessor's office

B(43) - Dwelling home of a Medal of Honor or Prisoner of War recipient

A Medal of Honor recipient or Prisoner of War in World War I, World War II, the Korean Conflict, or the Vietnam Conflict may apply for a Property Tax exemption for a dwelling home and a lot up to one acre that they own solely or jointly with a spouse. Provide copies of the following:

·Certificate from VA or Local County Service Officer certifying you are a recipient of the Medal of Honor or that you were a Prisoner of War

·Recorded deed

·Documentation that the 4% special assessment ratio for an owner-occupied dwelling from the county assessor's office has been granted, either solely to the applicant or jointly with a spouse

·Your marriage certificate if the home is jointly titled with a spouse

·Title, bond for title, or bill of sale if the property is a mobile home

A surviving spouse may apply for this exemption for the dwelling home they solely own or acquired from the deceased spouse, as long as the spouse remains unmarried, resides in the house, and owns the house in fee or for life.

If you are applying as a surviving spouse, provide copies of the following:

·Documentation from the VA showing that you are the survivor

·Former POW or Medal of Honor recipient's death certificate

·Recorded deed of distribution, or last will and testament. If the home was solely owned by the surviving spouse prior to the deceased spouse's death, then a copy of the recorded deed is necessary.

·Documentation that the 4% special assessment ratio for an owner-occupied dwelling from the county assessor's office has been granted, solely to the applicant

·Title, bond for title, or bill of sale if the property is a mobile home

Personal Property (Vehicle) Exemptions for Individuals

Vehicles must be registered with the South Carolina Department of Motor Vehicles (SCDMV) before you apply for exemptions. If the vehicle is registered or purchased out of state, you must pay vehicle taxes up front. If the exemption is granted, the applicant may seek reimbursement from the county where the taxes were paid.

If you have previously been approved for an exemption and are adding or removing a vehicle, Veterans Administration (VA) documentation is not necessary.

If you are applying for a vehicle exemption, provide copies as defined for your specific exemption.

A marriage certificate must be provided for jointly titled vehicles. Prior to November 2018, this was not a requirement.

B(3) - Vehicle exemption for Disabled Veterans/Spouses

A veteran who is totally and permanently disabled from a service-connected disability may apply for a Property Tax exemption for two private passenger vehicles they own or lease. To qualify for the exemption, the vehicle must be registered solely in the name of the veteran, or jointly with a spouse. Provide copies of the following:

·Certificate from VA or Local County Service Officer certifying total and permanent service-connected disability, with the effective date

·South Carolina vehicle registration card; or South Carolina bill of sale; or South Carolina issued title

·Your marriage certificate if the vehicle is jointly titled with a spouse, or if the vehicle is solely in the spouse's name

·Vehicles titled solely in the spouse's name do not qualify until tax year 2024

B(3) - For the above B(3) Property held in trust

Effective tax year 2024, a trustee that holds the legal title to a vehicle for a beneficiary and the beneficiary qualifies for the exemption and uses this vehicle, the vehicle is exempt from property taxation. Provide copies of the following:

·The same documentation listed above for B(3)

·A copy of the fully executed trust agreement verifying the applicant is the income beneficiary

A surviving spouse may apply for this exemption for one vehicle they own or lease, for their lifetime or until their remarriage. Surviving spouses are allowed an exemption for only one vehicle.

If you are applying as a surviving spouse, provide copies of the following:

·Veteran's death certificate

·Documentation from the VA showing that you are the survivor of the veteran

·South Carolina vehicle registration card; or South Carolina bill of sale; or South Carolina issued title showing that you are the sole owner of the vehicle

B(26) - Vehicle exemption for Medal of Honor recipients

Medal of Honor recipients may apply for a Property Tax exemption for two private passenger vehicles that they own or lease. Provide copies of the following:

·Certificate from VA or Local County Service Officer certifying receipt of Medal of Honor

·South Carolina vehicle registration card; or South Carolina bill of sale; or South Carolina issued title

If you have previously been approved for this exemption and are adding or removing a vehicle, provide a copy of the South Carolina vehicle registration card; or South Carolina bill of sale; or South Carolina issued title.

B(27) - Vehicle exemption for persons required to use wheelchairs

Persons required to use a wheelchair may apply for a Property Tax exemption for two personal motor vehicles that they own or lease, either solely or jointly. Provide copies of the following:

·Signed physician’s statement on the physician’s letterhead certifying the required use of a wheelchair on a permanent basis, with effective date of permanent wheelchair use (must be from a South Carolina licensed physician)

·South Carolina vehicle registration card; or South Carolina bill of sale; or South Carolina issued title

B(29) - Vehicle exemption for Prisoner of War

A Prisoner of War (POW) in World War I, World War II, the Korean Conflict, or the Vietnam Conflict may apply for a Property Tax exemption for two private passenger vehicles (not exceeding three-quarters of a ton) that they own or lease. To qualify for the exemption, the vehicle must be registered solely in the name of the veteran, or jointly with a spouse. Provide copies of the following:

·Certificate from VA or Local County Service Officer certifying you were a Prisoner of War

·South Carolina vehicle registration card; or South Carolina bill of sale; or South Carolina issued title

·Your marriage certificate if the vehicle is jointly titled with a spouse

A surviving spouse may apply for this exemption for one vehicle they own or lease, for their lifetime or until their remarriage. Surviving spouses are allowed an exemption for only one vehicle.

If you are applying as a surviving spouse, provide copies of the following:

·Former POW's death certificate

·Documentation from the VA showing that you are the survivor of the qualified former POW

·South Carolina vehicle registration card; or South Carolina bill of sale; or South Carolina issued title showing that you are the sole owner of the vehicle

If you have previously been approved for this exemption and are adding or removing a vehicle, VA documentation is not necessary.

B(37) - Vehicle exemption for parent or legal guardian of a minor child who is blind or requires the use of a wheelchair

A parent or legal guardian of a minor who is blind or requires the use of a wheelchair may apply for a Property Tax exemption for one personal motor vehicle that they own or lease, provided the vehicle is used to transport the minor. Provide copies of the following:

·Signed physician’s statement on the physician’s letterhead certifying the minor is blind or required to use a wheelchair, with effective date (must be from a South Carolina licensed physician)

·The minor's original birth certificate showing parents' names, or court documentation of legal guardianship

·South Carolina vehicle registration card; or South Carolina bill of sale; or South Carolina issued title

If you have previously been approved for this exemption and are adding or removing a vehicle, documentation of legal guardianship and certification of the minor's disability is not necessary.

B(53) - Renewable energy resource exemption for solar panels

A property tax exemption for solar panels placed on the rooftops of residential homes. In order to qualify for the exemption, the solar panels system must be installed and running and cannot exceed 20 kilowatts.

Provide copies of the following:

·A table for assets owned as of December 31 of the preceding year

·Identify the items you are seeking the exemption for with the dates of acquisition, cost at acquisition, accumulated depreciation, and net values

Document Specifications

Fact Name Details
Form Purpose The PT-401 form is used to apply for property tax exemptions in South Carolina.
Governing Law South Carolina Code Section 12-37-220 outlines the exemptions available through this form.
Application Requirement All sections of the PT-401 must be completed for the application to be accepted.
Submission Address Applications should be mailed to the South Carolina Department of Revenue, Property Division, Columbia, SC 29214-0303.
Owner Information Legal owner’s name, address, and either Social Security or Federal ID number are required.
Real Property Exemption If applying for real property exemption, the acquisition date must be provided.
County Requirement The application must specify the county where the property is located or registered.
Vehicle Identification For vehicles, the Vehicle Identification Number (VIN) must be provided, not the license tag number.
Supporting Documents Documents such as deeds, IRS letters, and financial statements may need to be attached.
Deadline Awareness Incomplete applications will be returned, causing delays in processing, so timely submission is crucial.

Steps to Filling Out South Carolina Pt 401

Completing the South Carolina PT-401 form requires careful attention to detail. Each section must be filled out accurately to ensure timely processing. Incomplete forms will be returned, which can delay the exemption consideration. Follow these steps to fill out the form correctly.

  1. Provide Legal Owner Information: Enter the legal owner's name, address, and either the Social Security number or Federal Identification number.
  2. Indicate Tax Year: Specify the year or years for which you are applying for the exemption.
  3. Acquisition Date: If applying for real property exemption, state the date the property was acquired.
  4. County Information: List the county where the property is located or registered.
  5. Property Location: Provide the physical location of the property, if it differs from the mailing address.
  6. Tax Map Number: Enter the tax map number, which can be obtained from the county assessor's office.
  7. Exemption Checkboxes: If applying for real estate exemption, check all applicable boxes on the form.
  8. Deed Book and Page Number: List the deed book and page number, also available from the county assessor.
  9. Vehicle Information: For vehicle exemptions, provide all required details, including the Vehicle Identification Number (VIN), make, and year of the vehicle.
  10. Attach Additional Information: If applying for furniture and fixtures exemption, include a separate sheet detailing items, acquisition date, cost, accumulated depreciation, and net value.

Once the form is completed, review it for accuracy. Ensure all required documentation is attached before mailing it to the South Carolina Department of Revenue, Property Division, at the specified address. This thoroughness will help prevent delays in processing your application.

More About South Carolina Pt 401

What is the South Carolina PT 401 form used for?

The South Carolina PT 401 form is an application for tax exemption. It is used by property owners or their agents to request exemptions for various types of properties, including real estate, vehicles, and personal property. The form must be completed accurately and submitted to the South Carolina Department of Revenue to be considered for tax relief.

Who is eligible to apply for the PT 401 tax exemption?

Eligibility for the PT 401 tax exemption varies based on the type of property. For instance, veterans with a service-connected disability, surviving spouses of eligible service members, and certain nonprofit organizations may qualify. Additionally, properties owned by educational institutions, churches, and charitable organizations often qualify for exemptions. It is essential to review the specific criteria outlined in the application instructions to determine eligibility.

What information is required to complete the PT 401 form?

To complete the PT 401 form, applicants must provide detailed information, including the legal owner's name, address, Social Security number or Federal Identification number, and the year(s) for which the exemption is being requested. Additionally, the form requires details about the property, such as its location, tax map number, and any relevant deed book and page numbers. If applying for vehicle exemptions, the Vehicle Identification Number (VIN) and vehicle type must also be included.

How should the completed PT 401 form be submitted?

Once the PT 401 form is completed, it should be mailed to the South Carolina Department of Revenue, Property Division, at the specified address in Columbia, South Carolina. It is crucial to ensure that all sections of the form are filled out completely to avoid delays. Incomplete applications will be returned, which may prolong the exemption process.

What happens after submitting the PT 401 form?

After submission, the South Carolina Department of Revenue will review the application. If additional information is needed, the department may contact the applicant. Once the review is complete, the department will notify the applicant of the approval or denial of the exemption request. If approved, the exemption will apply to the specified tax year.

Can I appeal if my PT 401 exemption application is denied?

Yes, if your application for the PT 401 exemption is denied, you have the right to appeal the decision. The appeal process typically involves submitting a written request for reconsideration to the South Carolina Department of Revenue. It is advisable to include any additional documentation or evidence that supports your eligibility for the exemption. Be mindful of any deadlines associated with the appeal process to ensure your request is considered.

Common mistakes

  1. Incomplete Information: Failing to fill out all required sections of the PT-401 form can lead to delays. Each section must be completed thoroughly to avoid rejection.

  2. Incorrect Owner Details: Providing inaccurate legal owner information, such as the name, address, or identification numbers, can result in complications. Ensure that all details match official documents.

  3. Missing Acquisition Date: When applying for an exemption for real property, neglecting to specify the date of acquisition can be problematic. This information is crucial for processing your application.

  4. Failure to Identify the Property: Not listing the correct county or tax map number can lead to confusion. This information helps the Department of Revenue locate your property accurately.

  5. Omitting Vehicle Information: If applying for vehicle exemptions, forgetting to provide the Vehicle Identification Number (VIN) or details about the vehicle type can result in denial. The VIN is different from the license tag number.

  6. Inadequate Documentation: Failing to attach required documents, such as IRS Determination Letters or financial statements, can lead to rejection. Ensure all necessary paperwork is included with your application.

  7. Incorrect Classification: Misclassifying the type of exemption you are applying for can cause delays. Carefully review the classifications to ensure you select the correct one for your situation.

  8. Missing Signatures: Not signing the application or failing to have it signed by an authorized agent can lead to automatic rejection. Signatures are essential for validating your application.

  9. Late Submission: Submitting the application after the deadline can disqualify you from receiving the exemption. Be mindful of the application timeline to ensure timely submission.

Documents used along the form

When applying for property tax exemptions in South Carolina, the PT-401 form is just one part of the process. Several other documents and forms are often required to support your application. Below is a list of commonly used forms and documents that accompany the PT-401 form, each serving a specific purpose.

  • Deed or Title to Real Property: This document proves ownership of the property for which the exemption is being sought. It should detail the legal description of the property.
  • Vehicle Registration Card: For vehicle exemptions, this card verifies the ownership and registration details of the vehicle(s) being claimed.
  • Bill of Sale: This document serves as proof of purchase for any vehicles or property being claimed for exemption, providing details such as the purchase date and price.
  • IRS Determination Letter: Nonprofit organizations must provide this letter to confirm their tax-exempt status under federal law.
  • Articles of Incorporation: This document outlines the formation and purpose of a nonprofit organization, detailing its structure and governance.
  • Bylaws: Bylaws define how an organization operates, including rules for meetings and decision-making processes.
  • Audited Financial Statements: These statements provide a clear picture of the organization’s financial health, typically covering the last three years.
  • Trust Agreement: If a trust holds the title to the property, this document outlines the terms of the trust and the beneficiaries involved.
  • Lease Agreement: For properties leased to government entities, this document specifies the terms of the lease, including duration and use.
  • Physician's Statement: Required for certain disability exemptions, this statement certifies the applicant’s medical condition, confirming eligibility for the exemption.

Gathering these documents is essential for a smooth application process. Ensuring that all required forms are complete and accurate will help avoid delays in obtaining the property tax exemption. Each document plays a crucial role in demonstrating eligibility and compliance with state requirements.

Similar forms

The South Carolina PT-401 form is similar to the IRS Form 1023, which is used to apply for tax-exempt status for nonprofit organizations. Both forms require detailed information about the organization, including its purpose, structure, and financials. Just as the PT-401 mandates the submission of supporting documents like bylaws and financial statements, the IRS Form 1023 also necessitates various documents to demonstrate eligibility for tax exemption. Each form aims to ensure that the applicant meets specific criteria for tax benefits, promoting transparency and accountability in nonprofit operations.

Another document akin to the PT-401 is the IRS Form 990, which tax-exempt organizations must file annually. This form provides the IRS and the public with a comprehensive overview of an organization’s financial activities, governance, and compliance with tax laws. Like the PT-401, Form 990 emphasizes the importance of financial disclosure, requiring organizations to report income, expenses, and programmatic activities. Both documents help maintain the integrity of tax-exempt status by ensuring that organizations operate in accordance with their stated missions.

The South Carolina PT-401 is also comparable to the Application for Property Tax Exemption form used in various states, which allows property owners to claim exemptions based on specific criteria. Similar to the PT-401, these applications often require proof of eligibility, such as ownership documents and financial statements. The purpose of both forms is to evaluate whether the property qualifies for tax relief, thus supporting entities that serve the public good.

Additionally, the South Carolina PT-401 has similarities with the State Sales Tax Exemption Application. This form is used by qualifying organizations to apply for exemption from sales tax on purchases. Both applications necessitate detailed organizational information and supporting documentation to verify eligibility. They serve to ensure that only those organizations meeting specific criteria receive financial relief, thereby promoting fairness in tax policy.

Another related document is the Nonprofit Organization Registration form, which is often required for nonprofits to operate legally within a state. This form, like the PT-401, demands comprehensive information about the organization, including its mission, structure, and financial standing. The goal of both documents is to establish transparency and accountability, ensuring that organizations are compliant with state regulations.

The PT-401 is also similar to the Application for Charitable Organization Registration, which nonprofits must complete to solicit donations. Both forms require organizations to provide detailed information about their operations, governance, and financial practices. This similarity underscores the commitment to transparency and ethical fundraising practices within the nonprofit sector.

In addition, the PT-401 resembles the Form 990-EZ, a shorter version of the Form 990 for smaller nonprofits. Both forms aim to provide a snapshot of an organization’s financial health and operational effectiveness. They require similar types of financial disclosures, ensuring that organizations remain accountable to the public and regulatory bodies.

The PT-401 is also akin to the Application for Tax-Exempt Status for Local Government Entities, which allows local governments to apply for exemptions similar to those available to nonprofits. Both applications require detailed information about the entity's purpose and operations. The intention is to ensure that only eligible entities receive tax exemptions, thereby promoting responsible use of public resources.

Lastly, the PT-401 shares characteristics with the Nonprofit Fundraising Registration form. This form is used by nonprofits to register their fundraising activities with the state. Both documents require comprehensive details about the organization’s mission and financial practices, ensuring that fundraising efforts are conducted ethically and transparently.

Dos and Don'ts

When filling out the South Carolina PT 401 form, there are important guidelines to follow. Here are four key things to do and avoid:

  • Do provide all required information accurately. This includes your legal name, address, and identification numbers.
  • Do indicate the specific year(s) for which you are applying for the exemption.
  • Don't leave any sections blank. Incomplete applications will be returned, delaying your request.
  • Don't forget to attach necessary documents, such as property deeds or vehicle registrations, as specified in the instructions.

Misconceptions

  • Misconception 1: The PT-401 form can be submitted without all required information.
  • This is false. Incomplete applications will be returned, delaying the process. Ensure all sections are filled out completely.

  • Misconception 2: Only the property owner can submit the application.
  • An agent can submit the application on behalf of the owner. However, the agent must have proper authorization to act.

  • Misconception 3: Submitting the PT-401 form guarantees tax exemption.
  • Submitting the form does not guarantee exemption. The application must meet specific criteria and be approved by the South Carolina Department of Revenue.

  • Misconception 4: Any property can qualify for exemption under the PT-401 form.
  • Not all properties qualify. Only certain types, such as those owned by schools, charities, or veterans, are eligible.

  • Misconception 5: The application can be submitted at any time during the year.
  • There are specific deadlines for submitting the PT-401 form, typically related to the tax year for which the exemption is being sought.

  • Misconception 6: The PT-401 form is the only document needed for tax exemption.
  • Additional documentation is often required, such as deeds, financial statements, or IRS letters, depending on the type of exemption requested.

  • Misconception 7: A verbal request for exemption is sufficient.
  • A formal written application, using the PT-401 form, is necessary to initiate the exemption process. Verbal requests will not be considered.

  • Misconception 8: Once approved, the exemption remains indefinitely.
  • Exemptions can be revoked if the property is no longer eligible or if the owner fails to comply with regulations. Regular reviews are conducted.

  • Misconception 9: The application process is quick and easy.
  • The process can be lengthy, especially if additional information is requested. Applicants should be prepared for possible delays.

Key takeaways

Key Takeaways for Filling Out the South Carolina PT-401 Form

  • The PT-401 form must be completed by the property owner or an authorized agent.
  • All sections of the form must be filled out completely; incomplete applications will be returned.
  • Print all requested information clearly to avoid processing delays.
  • Provide the legal owner's name, address, and either Social Security or Federal Identification Number.
  • Indicate the specific year(s) for which you are applying for an exemption.
  • Identify the date the real estate was acquired if applying for real property exemption.
  • Include the county where the property is located and the tax map number, which can be obtained from your county assessor.
  • Check all applicable boxes for real estate exemptions and provide relevant deed book and page numbers.
  • For vehicle exemptions, list the Vehicle Identification Number (VIN), not the license tag number, along with the make and year of the vehicle.
  • Attach required documentation, such as IRS Determination Letters, financial statements, and property deeds, as specified in the instructions.

Complete the form accurately and submit it to the South Carolina Department of Revenue to ensure timely processing.