Homepage > Blank Npma33 Template
Article Structure

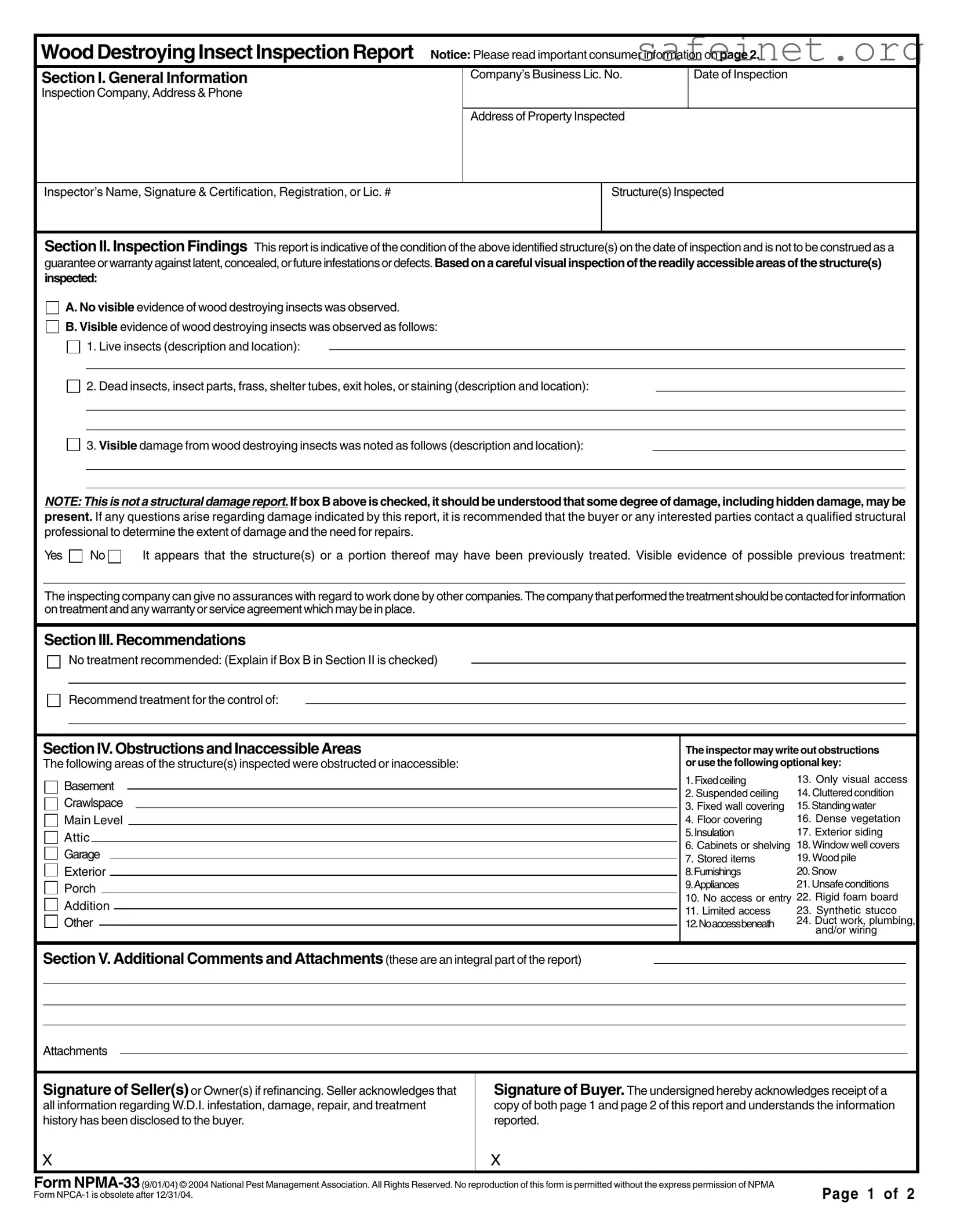
The NPMA-33 form serves as a crucial tool in the real estate and pest management industries, particularly for homeowners and prospective buyers concerned about wood-destroying insects. This inspection report outlines the findings from a visual inspection of a property, detailing the presence or absence of wood-destroying insects such as termites and carpenter ants. The form includes sections that capture general information about the inspection company, the property, and the inspector, along with their credentials. Importantly, it provides a summary of the inspection findings, which may indicate visible evidence of infestations or damage. However, it also clarifies that the report does not serve as a guarantee against future infestations or hidden damage. Recommendations for treatment, if necessary, are also included, guiding homeowners on how to address any issues discovered during the inspection. Additionally, the form highlights areas that were inaccessible during the inspection, ensuring transparency about the limitations of the assessment. Overall, the NPMA-33 form is designed to inform and protect consumers, providing them with essential information regarding potential pest issues in their properties.

Form Sample

Wood Destroying Insect Inspection Report

Notice: Please read important consumer information on page 2.

Section I. General Information

 

Company’s Business Lic. No.

Date of Inspection

Inspection Company, Address & Phone

 

 

 

 

 

 

 

 

 

 

 

Address of Property Inspected

 

 

 

 

 

 

Inspector’s Name, Signature & Certification, Registration, or Lic. #

 

 

Structure(s) Inspected

 

 

 

 

 

Section II. Inspection Findings This report is indicative of the condition of the above identified structure(s) on the date of inspection and is not to be construed as a guarantee or warranty against latent, concealed, or future infestations or defects. Based on a careful visual inspection of the readily accessible areas of the structure(s) inspected:

A. No visible evidence of wood destroying insects was observed.

B. Visible evidence of wood destroying insects was observed as follows:

1. Live insects (description and location):

2. Dead insects, insect parts, frass, shelter tubes, exit holes, or staining (description and location):

3. Visible damage from wood destroying insects was noted as follows (description and location):

NOTE: This is not a structural damage report. If box B above is checked, it should be understood that some degree of damage, including hidden damage, may be present. If any questions arise regarding damage indicated by this report, it is recommended that the buyer or any interested parties contact a qualified structural professional to determine the extent of damage and the need for repairs.

Yes

 

No

 

It appears that the structure(s) or a portion thereof may have been previously treated. Visible evidence of possible previous treatment:

The inspecting company can give no assurances with regard to work done by other companies. The company that performed the treatment should be contacted for information on treatment and any warranty or service agreement which may be in place.

Section III. Recommendations

No treatment recommended: (Explain if Box B in Section II is checked)

Recommend treatment for the control of:

 

Section IV. Obstructions and Inaccessible Areas

 

 

 

The inspector may write out obstructions

 

The following areas of the structure(s) inspected were obstructed or inaccessible:

 

 

 

or use the following optional key:

 

 

 

Basement

 

 

 

 

 

1.Fixedceiling

13. Only visual access

 

 

 

 

 

 

 

 

 

 

 

 

 

2. Suspended ceiling

14. Cluttered condition

 

 

 

 

 

 

 

 

 

 

 

Crawlspace

 

 

 

 

 

 

 

 

 

 

 

 

 

 

 

3. Fixed wall covering

15. Standing water

 

 

 

 

 

 

 

 

 

 

 

 

 

 

 

 

 

 

 

 

 

Main Level

 

 

 

 

4. Floor covering

16. Dense vegetation

 

 

 

 

 

 

Attic

 

 

 

 

 

 

 

 

 

 

 

5.Insulation

17. Exterior siding

 

 

 

 

 

 

 

 

 

 

 

 

 

 

 

 

 

 

 

 

 

 

 

 

 

 

 

 

 

 

 

 

 

6. Cabinets or shelving

18. Window well covers

 

 

 

Garage

 

 

 

 

 

 

 

 

 

 

 

 

 

 

 

 

 

 

 

 

 

 

 

 

 

 

 

 

 

 

 

 

7. Stored items

19. Wood pile

 

 

 

 

 

 

 

 

 

 

 

 

 

Exterior

 

 

 

 

 

8.Furnishings

20.Snow

 

 

 

Porch

 

 

 

 

 

 

 

 

 

9.Appliances

21. Unsafe conditions

 

 

 

 

 

 

 

 

 

 

 

 

Addition

 

 

 

 

 

 

 

10. No access or entry 22. Rigid foam board

 

 

 

 

 

 

 

 

 

 

 

 

 

 

 

 

 

 

 

 

 

11. Limited access

23. Synthetic stucco

 

 

 

 

 

 

 

 

 

 

 

 

 

 

 

 

 

 

 

 

 

 

 

 

 

 

 

 

 

 

 

 

 

 

 

 

 

Other

 

 

 

 

12.Noaccessbeneath

24. Duct work, plumbing,

 

 

 

 

 

 

 

 

 

and/or wiring

 

 

 

 

 

 

 

 

 

 

 

 

 

 

 

 

 

Section V. Additional Comments and Attachments (these are an integral part of the report)

 

 

 

 

 

 

 

 

 

 

 

 

 

 

 

 

 

 

 

 

 

 

 

 

 

 

 

 

 

 

 

 

 

 

 

 

 

 

 

 

 

 

 

 

 

 

 

 

 

 

 

 

 

 

 

 

 

Attachments

 

 

 

 

 

 

 

 

 

 

 

 

 

 

 

 

 

 

 

 

 

 

 

 

Signature of Seller(s) or Owner(s) if refinancing. Seller acknowledges that

Signature of Buyer. The undersigned hereby acknowledges receipt of a

 

all information regarding W.D.I. infestation, damage, repair, and treatment

copy of both page 1 and page 2 of this report and understands the information

 

history has been disclosed to the buyer.

reported.

 

 

 

X

X

 

 

 

Form NPMA-33(9/01/04) © 2004 National Pest Management Association. All Rights Reserved. No reproduction of this form is permitted without the express permission of NPMA

Page 1 of 2

Form NPCA-1 is obsolete after 12/31/04.

Important Consumer Information Regarding

the Scope and Limitations of the Inspection

Please read this entire page as it is part of this report. This report is not a guarantee or warranty as to the absence of wood destroying insects nor is it a structural integrity report. The inspector’s training and experience do not qualify the inspector in damage evaluation or any other building construction technology and/or repair.

1.About the Inspection: A visual inspection was conducted in the readily accessible areas of the structure(s) indicated (see Page 1) including attics and crawlspaces which permitted entry during the inspection. The inspection included probing and/or sounding of unobstructed and accessible areas to determine the presence or absence of visual evidence of wood destroying insects. The WDI inspection firm is not responsible to repair any damage or treat any infestation at the structure(s) inspected, except as may be provided by separate contract. Also, wood destroying insect infestation and/or damage may exist in concealed or inaccessible areas. The inspection firm cannot guarantee that any wood destroying insect infestation and/or damage disclosed by this inspection represents all of the wood destroying insect infestation and/or damage which may exist as of the date of the inspection.Forpurposesofthisinspection,wooddestroyinginsectsinclude:termites,carpenterants,carpenterbees,and reinfestingwoodboringbeetles.Thisinspectiondoesnotincludemold,mildewornoninsectwooddestroyingorganisms. This report shall be considered invalid for purposes of securing a mortgage and/or settlement of property transfer if not used within ninety (90) days from the date of inspection. This shall not be construed as a 90-day warranty. There is no warranty, express or implied, related to this report unless disclosed as required by state regulations or a written warranty or service agreement is attached.

2.Treatment Recommendation Guidelines Regarding Subterranean Termites: FHA and VA require treatment when any active infestation of subterranean termites is found. If signs of subterranean termites — but no activity — are found in a structure that shows no evidence of having been treated for subterranean termites in the past, then a treatment should be recommended. A treatment may also be recommended for a previously treated structure showing evidence of subterranean termites — but no activity — if there is no documentation of a liquid treatment by a licensed pest control company within the previous five years unless the structure is presently under warranty or covered by a service agreement with a licensed pest control company.

3.Obstructions and Inaccessible Areas: No inspection was made in areas which required the breaking apart or into, dismantling,

removal of any object, including but not limited to: moldings, floor coverings, wall coverings, siding, fixed ceilings, insulation, furniture, appliances, and/or personal possessions; nor were areas inspected which were obstructed or inaccessible for physical access on the date of inspection. Your inspector may write out inaccessible areas or use the key in Section IV. Crawl spaces, attics, and/or other areas may be deemed inaccessible if the opening to the area is not large enough to provide physical access for the inspector or if a ladder was required for access. Crawl spaces (or portions thereof) may also be deemed inaccessible if there is less than 24 inches of clearance from the bottom of the floor joists to the surface below. If any area which has been reported as inaccessible is made accessible, the inspection company may be contacted for another inspection. An additional fee may apply.

4.Consumer Maintenance Advisory Regarding Integrated Pest Management for Prevention of Wood Destroying Insects. Any structure can be attacked by wood destroying insects. Homeowners should be aware of and try to eliminate conditions which promote insect infestation in and around their structure(s). Factors which may lead to wood destroying insect infestation include: earth to wood contact, foam insulation at foundation in contact with soil, faulty grade, improper drainage, firewood against structure(s), insufficient ventilation, moisture, wood debris in crawlspace, wood mulch or ground cover in contact with the structure, tree branches touching structure(s), landscape timbers and wood decay. Should these or other conditions exist, corrective measures should be taken in order to reduce the chances of infestation of wood destroying insects and the need for treatment.

5.Neither the inspecting company nor the inspector has had, presently has, or contemplates having any interest in the property inspected.

Form NPMA-33(9/01/04) © 2004 National Pest Management Association. All Rights Reserved. No reproduction of this form is permitted without the express permission of NPMA

Page 2 of 2

Form NPCA-1 is obsolete after 12/31/04.

 

Document Specifications

Fact Name Description
Inspection Purpose The NPMA-33 form is used to report findings from a wood destroying insect inspection.
Visual Inspection Inspectors conduct a visual inspection of readily accessible areas, including attics and crawlspaces.
Limitations This report does not guarantee the absence of wood destroying insects or structural integrity.
Obstructions Areas that are obstructed or inaccessible will not be inspected, as noted in Section IV.
Previous Treatments Visible evidence of previous treatments may be noted, but the inspecting company cannot assure the effectiveness of past work.
Recommendations The inspector may recommend treatment if visible evidence of wood destroying insects is found.
Consumer Advisory Homeowners should take preventive measures to reduce the risk of wood destroying insect infestations.
State-Specific Laws Each state may have specific regulations governing the use of the NPMA-33 form.
Signature Requirement Signatures from both sellers and buyers are required to acknowledge receipt of the report.
Validity Period The report is valid for 90 days from the date of inspection for property transactions.

Steps to Filling Out Npma33

Completing the NPMA-33 form requires attention to detail and accuracy. This form is essential for documenting the inspection of wood-destroying insects in a property. Follow these steps to fill it out correctly.

  1. Enter General Information: In Section I, fill in the company’s business license number, the date of inspection, and the inspection company’s name, address, and phone number. Provide the address of the property inspected and the inspector’s name, signature, and certification or license number. Indicate the structure(s) inspected.
  2. Document Inspection Findings: In Section II, note whether there was visible evidence of wood-destroying insects. If there is no evidence, check "A." If evidence is present, check "B" and provide detailed descriptions of live insects, dead insects, insect parts, frass, shelter tubes, exit holes, or staining, along with their locations. Mention any visible damage from wood-destroying insects.
  3. Previous Treatment: Indicate whether the structure may have been previously treated. If so, describe any visible evidence of past treatment.
  4. Recommendations: In Section III, state whether treatment is recommended. If "No treatment recommended" is checked, explain why if Box B in Section II was checked. If treatment is recommended, specify what type of treatment is suggested.
  5. Obstructions and Inaccessible Areas: In Section IV, list any areas that were obstructed or inaccessible during the inspection. You can use the optional key provided in the form to assist with this.
  6. Additional Comments: In Section V, add any additional comments or attach relevant documents. Ensure that the signatures of the seller(s) or owner(s) and the buyer are included, acknowledging receipt of the report.

After completing the form, review it for accuracy and clarity. Ensure that all necessary signatures are obtained. This will help in maintaining transparency and ensuring all parties are informed about the inspection findings.

More About Npma33

What is the NPMA-33 form?

The NPMA-33 form is a Wood Destroying Insect Inspection Report. It is used to document the findings of a visual inspection for wood-destroying insects, such as termites and carpenter ants, in a property. This report is essential for home buyers, sellers, and lenders to understand the condition of a property regarding potential insect infestations.

What does the inspection cover?

The inspection primarily covers readily accessible areas of the property, including attics and crawlspaces. Inspectors look for visible evidence of wood-destroying insects and any damage they may have caused. However, the inspection does not include areas that are obstructed or inaccessible, nor does it guarantee the absence of pests in hidden spaces.

What should I do if the report indicates evidence of wood-destroying insects?

If the report shows visible evidence of wood-destroying insects, it is recommended to contact a qualified pest control professional for further evaluation and potential treatment. The report may also suggest treatment for control, depending on the findings.

Is the NPMA-33 form a warranty?

No, the NPMA-33 form is not a warranty. It does not guarantee that wood-destroying insects are absent or that there are no structural issues. The report reflects the condition of the property at the time of inspection and cannot predict future infestations or damage.

What happens if the inspection finds inaccessible areas?

If certain areas of the property are deemed inaccessible during the inspection, the inspector will note these areas on the report. If these areas become accessible later, you can contact the inspection company for a follow-up inspection, which may incur an additional fee.

How long is the NPMA-33 report valid?

The report is valid for 90 days from the date of inspection. If it is not used within this timeframe, it may be considered invalid for purposes like securing a mortgage or completing a property transfer. This timeframe does not imply a warranty.

What should I know about previous treatments mentioned in the report?

If the report indicates that the property may have been previously treated for wood-destroying insects, it is essential to contact the company that performed the treatment for information on its effectiveness and any warranties that may still be in place. The inspecting company cannot provide details about past treatments done by other companies.

What are some preventive measures against wood-destroying insects?

Homeowners can take several preventive measures to reduce the risk of wood-destroying insect infestations. These include maintaining proper drainage, ensuring adequate ventilation, avoiding wood-to-soil contact, and keeping firewood away from the structure. Regular maintenance and monitoring can help protect your property from potential infestations.

Common mistakes

  1. Incomplete Information: Failing to fill in all required fields, such as the inspector's name or the date of inspection, can render the form invalid.

  2. Incorrect Company Details: Providing the wrong business license number or inspection company information can lead to confusion and liability issues.

  3. Misinterpretation of Findings: Misunderstanding the distinctions between "No visible evidence" and "Visible evidence" can lead to misreporting the condition of the structure.

  4. Omitting Obstructions: Not listing areas that were obstructed or inaccessible can result in an incomplete inspection report.

  5. Failure to Explain Recommendations: If treatment is recommended, failing to provide a clear explanation can confuse the buyer or seller.

  6. Ignoring Additional Comments: Not utilizing the additional comments section to clarify any unique findings can lead to misunderstandings.

  7. Signature Errors: Missing signatures from the seller or buyer can invalidate the report and complicate transactions.

  8. Neglecting Consumer Information: Not reading or acknowledging the important consumer information on page 2 may lead to misinformed decisions.

  9. Not Updating the Form: Using an outdated version of the NPMA-33 form can result in non-compliance with current regulations.

  10. Assuming Warranty Coverage: Assuming the report includes a warranty without verifying the terms can lead to unexpected costs.

Documents used along the form

The NPMA-33 form, which is a Wood Destroying Insect Inspection Report, is often accompanied by several other important documents that provide additional context and information regarding pest inspections and property conditions. Understanding these forms can help ensure that all aspects of a property’s pest management are addressed comprehensively.

  • Home Inspection Report: This document provides a detailed assessment of the overall condition of a property, including structural integrity, safety issues, and maintenance needs. It often includes findings related to pest infestations and recommendations for repairs.
  • Pest Control Treatment Plan: This plan outlines the specific treatments that will be applied to address any pest issues identified in the inspection. It includes information on the types of chemicals used, application methods, and safety precautions.
  • Termite Warranty: A warranty document that guarantees protection against future termite infestations for a specified period. It often details the conditions under which the warranty is valid and any exclusions.
  • Disclosure Statement: This is a legal document that informs potential buyers of any known issues with the property, including past pest infestations or treatments. It is crucial for transparency in real estate transactions.
  • Repair Estimates: If damage from pests has been found, repair estimates provide a cost breakdown for the necessary repairs. These estimates are essential for budgeting and negotiation during property transactions.
  • Inspection Agreement: This document outlines the terms and conditions of the inspection service, including the scope of work and responsibilities of both the inspector and the property owner.
  • Follow-Up Inspection Report: If previous infestations or issues were found, a follow-up report may be issued to document the effectiveness of treatments and any ongoing concerns that need addressing.
  • Integrated Pest Management (IPM) Plan: This plan focuses on long-term prevention of pests through a combination of techniques, including habitat modification, biological control, and chemical methods, ensuring a comprehensive approach to pest management.
  • Property Transfer Disclosure Statement: Required in many states, this document provides buyers with information about the property’s condition, including any pest-related issues, ensuring that they are fully informed before completing the purchase.

Having these documents on hand can significantly enhance your understanding of a property’s pest management history and its current condition. It is important to review each document carefully and consult with professionals when necessary to ensure that you are making informed decisions regarding property investments and maintenance.

Similar forms

The NPMA-33 form is similar to the Wood Infestation Inspection Report (WIIR). Both documents serve to inform property owners about the condition of a structure regarding wood-destroying insects. The WIIR typically includes a detailed account of the inspector's findings, similar to Section II of the NPMA-33, where evidence of infestation is documented. Like the NPMA-33, the WIIR also emphasizes that it does not guarantee the absence of future infestations or structural integrity, thus providing a clear understanding of the inspection's limitations.

Another comparable document is the Termite Inspection Report. This report focuses specifically on termite infestations and includes findings from a visual inspection. Much like the NPMA-33, it details any visible evidence of termites, including descriptions of damage and recommendations for treatment. Both reports highlight that they are not warranties against future infestations, ensuring that property owners are aware of the ongoing risks associated with wood-destroying insects.

The Home Inspection Report is also similar in purpose and structure. This report provides a comprehensive overview of a property's condition, including pest inspections. While the NPMA-33 focuses solely on wood-destroying insects, the Home Inspection Report encompasses a broader range of issues. Both documents aim to inform buyers and sellers about potential problems, emphasizing the importance of addressing any findings with qualified professionals.

The Pest Control Service Agreement shares similarities with the NPMA-33 in that it outlines the terms of pest control services, including inspections for wood-destroying insects. While the NPMA-33 provides a one-time inspection report, the Service Agreement typically establishes an ongoing relationship between the pest control company and the property owner. Both documents stress the importance of addressing infestations promptly and include recommendations for treatment based on the findings of inspections.

Lastly, the Real Estate Disclosure Statement is another document that relates to the NPMA-33. This statement requires sellers to disclose known issues with a property, including past pest infestations. Similar to the NPMA-33, it aims to inform potential buyers about the condition of the property. Both documents foster transparency in real estate transactions, ensuring that buyers are aware of any existing or previous pest problems before making a purchase decision.

Dos and Don'ts

When filling out the NPMA-33 form, there are several important considerations to keep in mind. Here’s a list of things to do and avoid to ensure the form is completed accurately and effectively.

  • Do read the entire form carefully before starting. Understanding the requirements will help you fill it out correctly.
  • Do provide complete and accurate information in all sections. This includes the inspection date, company details, and inspector’s credentials.
  • Do clearly document any visible evidence of wood-destroying insects, including their locations.
  • Do specify any areas that were inaccessible during the inspection. This helps clarify the scope of the inspection.
  • Do include any recommendations for treatment if evidence of infestation is found.
  • Don’t leave any sections blank unless they are not applicable. Incomplete forms can lead to misunderstandings.
  • Don’t make assumptions about previous treatments. Always note any visible signs of past treatments and advise contacting the previous pest control company.
  • Don’t forget to include the signatures of the seller and buyer if applicable. This acknowledges receipt of the report.
  • Don’t use the report as a warranty. Clarify that it is not a guarantee against future infestations or structural integrity.
  • Don’t overlook the importance of consumer maintenance advice. Highlighting preventative measures can be beneficial for homeowners.

By following these guidelines, you can help ensure that the NPMA-33 form is filled out correctly and serves its intended purpose effectively.

Misconceptions

Understanding the NPMA-33 form can be challenging, and several misconceptions can lead to confusion. Below are four common misunderstandings about this important document.

  • The NPMA-33 form guarantees the absence of wood-destroying insects. Many people believe that a clean report means their property is completely free of pests. However, the form clearly states that it is not a guarantee against future infestations or hidden damage.
  • This inspection is a structural integrity report. Some individuals assume that the NPMA-33 includes an evaluation of the overall structural condition of the property. In reality, it focuses solely on the presence of wood-destroying insects and does not assess the structural integrity of the building.
  • All areas of the property are inspected thoroughly. It is a common misconception that every nook and cranny of the property is examined. The inspector only assesses readily accessible areas. If certain areas are obstructed or inaccessible, they will not be inspected, which could mean hidden issues remain undetected.
  • The NPMA-33 form provides a warranty for any treatment performed. Some may think that the form acts as a warranty for pest control treatments. However, it explicitly states that the inspecting company cannot guarantee any work done by other companies and does not provide warranties unless specifically stated.

Being aware of these misconceptions can help property owners make informed decisions regarding pest inspections and treatments. Understanding the limitations of the NPMA-33 form is crucial for ensuring proper maintenance and care of your property.

Key takeaways

When filling out and utilizing the NPMA-33 form, it is essential to keep several key points in mind to ensure clarity and understanding. Below are important takeaways regarding the form:

  • Purpose of the Form: The NPMA-33 form serves as a Wood Destroying Insect Inspection Report. It documents the findings of an inspection conducted on a property for wood-destroying insects.
  • Inspection Limitations: This report does not guarantee the absence of wood-destroying insects or structural integrity. It reflects the condition of the property only on the date of inspection.
  • Visual Inspection: The inspector conducts a visual examination of readily accessible areas. This includes attics and crawlspaces, but not areas requiring dismantling or removal of objects.
  • Evidence of Infestation: If evidence of wood-destroying insects is found, it is documented in detail. This includes descriptions of live insects, dead insects, and any visible damage.
  • Inaccessible Areas: Any areas that were obstructed or inaccessible during the inspection are noted. This may affect the thoroughness of the inspection.
  • Recommendations: If treatment is necessary, the inspector will recommend specific actions for control. If no treatment is needed, explanations will be provided.
  • Consumer Responsibilities: Homeowners should maintain their properties to prevent infestations. This includes addressing factors that promote wood-destroying insect activity.
  • Documentation: The report must be acknowledged by the seller and buyer. Both parties should retain copies for their records.
  • Validity Period: The report is valid for 90 days from the inspection date. After this period, it may not be used for securing a mortgage or property transfer.

Understanding these key points can help individuals navigate the inspection process and ensure that they are well-informed about the condition of the property in question.