Homepage > Blank Michigan Property Transfer Affidavit 2766 Template
Article Structure

The Michigan Property Transfer Affidavit 2766 form plays a crucial role in real estate transactions within the state. When a property changes hands, this form is typically required to ensure that the transfer is properly documented for tax purposes. It captures essential information about the property, including its address, the names of the buyer and seller, and the sale price. This affidavit helps local assessors determine the property's value, which can influence future tax assessments. Additionally, it aids in maintaining accurate public records, promoting transparency in property ownership. Completing this form accurately is vital to avoid potential complications during the transfer process. Failing to file it may lead to penalties or issues with property tax assessments down the line. Understanding the importance of the Michigan Property Transfer Affidavit 2766 is essential for anyone involved in buying or selling real estate in Michigan.

Form Sample

 

 

 

 

 

 

 

 

 

 

 

 

Reset Form

 

 

 

 

 

 

 

 

 

 

 

 

 

 

 

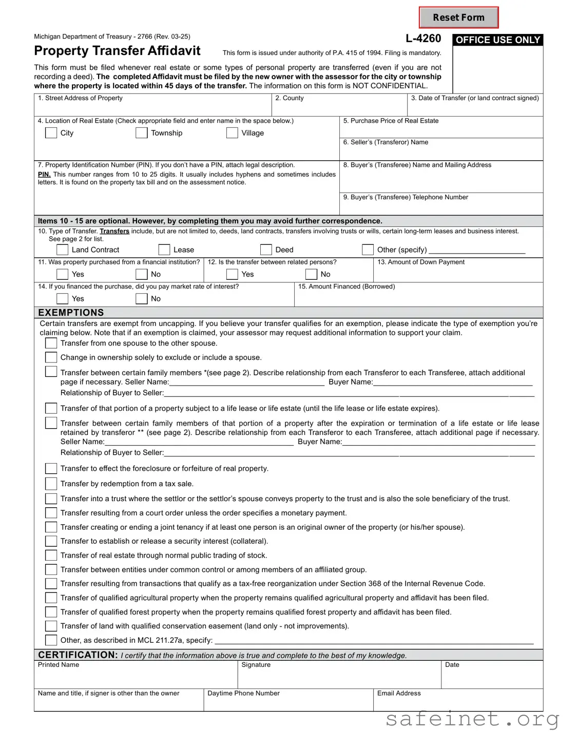
Michigan Department of Treasury - 2766 (Rev. 03-25)

 

 

 

 

 

L-4260

OFFICE USE ONLY

 

 

 

 

 

 

 

 

 

 

Property Transfer Affidavit

This form is issued under authority of P.A. 415 of 1994. Filing is mandatory.

 

 

 

 

This form must be filed whenever real estate or some types of personal property are transferred (even if you are not

 

 

recording a deed). The completed Affidavit must be filed by the new owner with the assessor for the city or township

 

 

where the property is located within 45 days of the transfer. The information on this form is NOT CONFIDENTIAL.

 

 

 

 

 

 

 

 

 

 

 

 

 

 

 

 

 

1. Street Address of Property

 

 

 

 

 

2. County

 

 

3. Date of Transfer (or land contract signed)

 

 

 

 

 

 

 

 

 

 

 

 

 

 

4. Location of Real Estate (Check appropriate field and enter name in the space

below.)

5.

Purchase Price of

Real Estate

 

 

 

 

City

 

Township

 

 

Village

 

 

 

 

 

 

 

 

 

 

 

 

 

 

 

 

 

 

 

 

 

 

 

 

 

 

6.

Seller’s (Transferor) Name

 

 

 

 

 

 

 

 

 

 

 

 

 

 

 

 

7. Property Identification Number (PIN). If you don’t have a PIN, attach legal description.

8.

Buyer’s (Transferee) Name and Mailing Address

PIN. This number ranges from 10 to 25 digits. It usually includes hyphens and sometimes includes

 

 

 

 

 

 

letters. It is found on the property tax bill and on the assessment notice.

 

 

 

 

 

 

 

 

 

 

 

 

 

 

 

 

 

 

 

 

 

 

 

 

 

 

 

 

 

 

9.

Buyer’s (Transferee) Telephone Number

 

 

 

 

 

 

 

 

 

 

 

 

 

 

 

Items 10 - 15 are optional. However, by completing them you may avoid further correspondence.

10.Type of Transfer. Transfers include, but are not limited to, deeds, land contracts, transfers involving trusts or wills, certain long-term leases and business interest.

See page 2 for list.

Land Contract

Lease

Deed

Other (specify) _______________________

11. Was property purchased from a financial institution?

12. Is the transfer between related persons?

13. Amount of Down Payment

 

 

Yes

 

No

 

 

Yes

 

 

No

 

 

 

 

 

 

 

 

 

 

 

 

 

14. If you financed the purchase, did you pay market rate

of interest?

15. Amount Financed (Borrowed)

 

 

Yes

 

No

 

 

 

 

 

 

 

 

 

 

 

 

 

 

 

 

 

EXEMPTIONS

Certain transfers are exempt from uncapping. If you believe your transfer qualifies for an exemption, please indicate the type of exemption you’re claiming below. Note that if an exemption is claimed, your assessor may request additional information to support your claim.

Transfer from one spouse to the other spouse.

Change in ownership solely to exclude or include a spouse.

Transfer between certain family members *(see page 2). Describe relationship from each Transferor to each Transferee, attach additional page if necessary. Seller Name:_____________________________________ Buyer Name:______________________________________

Relationship of Buyer to Seller:________________________________________________________________________________________

Transfer of that portion of a property subject to a life lease or life estate (until the life lease or life estate expires).

Transfer between certain family members of that portion of a property after the expiration or termination of a life estate or life lease retained by transferor ** (see page 2). Describe relationship from each Transferor to each Transferee, attach additional page if necessary. Seller Name:_____________________________________________ Buyer Name:______________________________________________

Relationship of Buyer to Seller:________________________________________________________________________________________

Transfer to effect the foreclosure or forfeiture of real property.

Transfer by redemption from a tax sale.

Transfer into a trust where the settlor or the settlor’s spouse conveys property to the trust and is also the sole beneficiary of the trust.

Transfer resulting from a court order unless the order specifies a monetary payment.

Transfer creating or ending a joint tenancy if at least one person is an original owner of the property (or his/her spouse).

Transfer to establish or release a security interest (collateral).

Transfer of real estate through normal public trading of stock.

Transfer between entities under common control or among members of an affiliated group.

Transfer resulting from transactions that qualify as a tax-free reorganization under Section 368 of the Internal Revenue Code.

Transfer of qualified agricultural property when the property remains qualified agricultural property and affidavit has been filed. Transfer of qualified forest property when the property remains qualified forest property and affidavit has been filed.

Transfer of land with qualified conservation easement (land only - not improvements).

Other, as described in MCL 211.27a, specify: ____________________________________________________________________________

CERTIFICATION: I certify that the information above is true and complete to the best of my knowledge.

Printed Name

Signature

Date

Name and title, if signer is other than the owner

Daytime Phone Number

Email Address

2766, Page 2

Instructions:

This form must be filed when there is a transfer of real property or one of the following types of personal property:

Buildings on leased land.

Leasehold improvements, as defined in MCL Section 211.8(h).

Leasehold estates, as defined in MCL Section 211.8(i) and (j).

Transfer of ownership means the conveyance of title to or a present interest in property, including the beneficial use of the property. For complete descriptions of qualifying transfers, please refer to MCL Section 211.27a(6)(a-j).

Excerpts from Michigan Compiled Laws (MCL), Chapter 211

**Section 211.27a(7)(d): Beginning December 31, 2014, a transfer of that portion of residential real property that had been subject to a life estate or life lease retained by the transferor resulting from expiration or termination of that life estate or life lease, if the transferee is the transferor’s or transferor’s spouse’s mother, father, brother, sister, son, daughter, adopted son, adopted daughter, grandson, or granddaughter and the residential real property is not used for any commercial purpose following the transfer. Upon request by the department of treasury or the assessor, the transferee shall furnish proof within 30 days that the transferee meets the requirements of this subdivision. If a transferee fails to comply with a request by the department of treasury or assessor under this subdivision, that transferee is subject to a fine of $200.00.

*Section 211.27a(7)(u): Beginning December 31, 2014, a transfer of residential real property if the transferee is the transferor’s or the transferor’s spouse’s mother, father, brother, sister, son, daughter, adopted son, adopted daughter, grandson, or granddaughter and the residential real property is not used for any commercial purpose following the conveyance. Upon request by the department of treasury or the assessor, the transferee shall furnish proof within 30 days that the transferee meets the requirements of this subparagraph. If a transferee fails to comply with a request by the department of treasury or assessor under this subparagraph, that transferee is subject to a fine of $200.00.

Section 211.27a(10): “... the buyer, grantee, or other transferee of the property shall notify the appropriate assessing office in the local unit of government in which the property is located of the transfer of ownership of the property within 45 days of the transfer of ownership, on a form prescribed by the state tax commission that states the parties to the transfer, the date of the transfer, the actual consideration for the transfer, and the property’s parcel identification number or legal description.”

Section 211.27(6): “Except as otherwise provided in subsection (7), the purchase price paid in a transfer of property is not the presumptive true cash value of the property transferred. In determining the true cash value of transferred property, an assessing officer shall assess that property using the same valuation method used to value all other property of that same classification in the assessing jurisdiction.”

Penalties:

Section 211.27b(1): “If the buyer, grantee, or other transferee in the immediately preceding transfer of ownership of property does not notify the appropriate assessing office as required by section 27a(10), the property’s taxable value shall be adjusted under section 27a(3) and, subject to subsection (9), all of the following must be levied:

(a)Any additional taxes that would have been levied if the transfer of ownership had been recorded as required under this act from the date of transfer.

(b)Interest and penalty from the date the tax would have been originally levied.

(c)For property classified under section 34c as either industrial real property or commercial real property, a penalty in the following amount:

(i)Except as otherwise provided in subparagraph (ii), if the sale price of the property transferred is $100,000,000.00 or less, $20.00 per day for each separate failure beginning after the 45 days have elapsed, up to a maximum of $1,000.00.

(ii)If the sale price of the property transferred is more than $100,000,000.00, $20,000.00 after the 45 days have elapsed.

(d)For real property other than real property classified under section 34c as industrial real property or commercial real property, a penalty of $5.00 per day for each separate failure beginning after the 45 days have elapsed, up to a maximum of one of the following, as applicable:

(i)For property owned and occupied as a principal residence, $200.00. As used in subparagraph, “principal residence” means that term as defined in section 7dd.

(ii)For all other property, $4000.00

Document Specifications

Fact Name Description
Purpose The Michigan Property Transfer Affidavit 2766 is used to report the transfer of property ownership to local tax authorities.
Governing Law This form is governed by the Michigan Compiled Laws, specifically MCL 211.27a.
Who Files Typically, the seller or the buyer of the property is responsible for filing this affidavit with the local assessor.
Deadline The affidavit must be filed within 45 days of the property transfer to ensure accurate tax assessment.
Importance Filing this form helps determine the property’s taxable value and ensures compliance with local tax regulations.

Steps to Filling Out Michigan Property Transfer Affidavit 2766

Filling out the Michigan Property Transfer Affidavit 2766 form is an important step in the property transfer process. After completing this form, you will be able to submit it to the appropriate authorities. Make sure to have all necessary information on hand to ensure a smooth process.

  1. Begin by downloading the Michigan Property Transfer Affidavit 2766 form from the Michigan Department of Treasury website or obtain a physical copy from your local assessor's office.
  2. At the top of the form, fill in the property address. Ensure that you include the complete address, including city and zip code.
  3. Next, provide the parcel number. This number can typically be found on your property tax statement or through your local assessor's office.
  4. Indicate the date of transfer. This is the date when the ownership of the property officially changes hands.
  5. In the section for grantor information, enter the names of the individuals or entities transferring the property. Include their addresses and any relevant contact information.
  6. Fill in the grantee information section with the names and addresses of the new property owners.
  7. Provide details about the type of transfer. Specify if it is a sale, gift, or another type of transfer. Be clear and precise.
  8. Complete the section regarding consideration. This refers to the amount of money or value exchanged for the property.
  9. Sign and date the form at the bottom. Make sure that all parties involved in the transfer have signed where required.
  10. Finally, submit the completed form to your local assessor’s office. Keep a copy for your records.

More About Michigan Property Transfer Affidavit 2766

What is the Michigan Property Transfer Affidavit 2766 form?

The Michigan Property Transfer Affidavit 2766 form is a document used to report the transfer of property ownership in Michigan. When a property changes hands, this form helps ensure that the local tax assessor is informed of the change. It includes essential details about the property, such as its location, the names of the buyers and sellers, and the sale price. Completing this form is crucial for updating tax records and ensuring that property taxes are assessed correctly.

Who is responsible for filing the Property Transfer Affidavit?

What information do I need to complete the form?

What happens if I don't file the Property Transfer Affidavit?

Common mistakes

  1. Incorrect Property Information: Many individuals mistakenly enter the wrong address or legal description of the property. It's crucial to ensure that the property details match exactly what is recorded with the county.

  2. Omitting Required Signatures: Some people forget to sign the affidavit. This step is essential, as the form will not be accepted without the necessary signatures from all parties involved in the transfer.

  3. Failing to Provide Accurate Sale Price: When reporting the sale price, inaccuracies can lead to issues. It's important to report the exact amount agreed upon in the sale, as this affects property tax assessments.

  4. Not Including All Necessary Parties: In some cases, individuals may overlook including all co-owners or other interested parties. Each person with an ownership interest should be listed to avoid complications later.

  5. Missing Deadlines: Submitting the affidavit after the deadline can result in penalties or delays in processing. It's important to be aware of the timeline for submission to ensure compliance with local regulations.

Documents used along the form

The Michigan Property Transfer Affidavit 2766 form is essential for documenting the transfer of property ownership in Michigan. When filing this affidavit, there are several other forms and documents that may also be required to ensure a smooth transaction. Below is a list of common forms that often accompany the Property Transfer Affidavit.

  • Deed: This legal document serves as proof of the transfer of ownership from the seller to the buyer. It includes details such as the names of the parties involved, a description of the property, and is typically signed and notarized.
  • Closing Statement: Also known as a settlement statement, this document outlines all the financial aspects of the property transaction. It details the purchase price, closing costs, and any adjustments that may need to be made before the sale is finalized.
  • Title Insurance Policy: This document protects the buyer from any potential disputes over property ownership or claims against the property. It ensures that the title is clear and that the buyer has legal ownership without any hidden issues.
  • Property Tax Exemption Application: If the buyer qualifies for certain tax exemptions, this application must be submitted to the local assessor's office. It can help reduce property taxes for eligible homeowners, such as those purchasing a primary residence.

Each of these documents plays a crucial role in the property transfer process. Ensuring that all necessary forms are completed accurately and submitted on time can help prevent delays and complications in the ownership transfer. Always consider consulting with a professional to navigate the requirements effectively.

Similar forms

The Michigan Property Transfer Affidavit 2766 form is similar to the IRS Form 706, which is used for estate tax purposes. Both documents require detailed information about property ownership and valuation. While the Property Transfer Affidavit focuses on the transfer of property and its implications for local taxes, Form 706 addresses federal estate taxes and the distribution of assets after death. Each document plays a crucial role in ensuring that property transfers comply with legal requirements, though they cater to different aspects of property ownership and taxation.

Another document that resembles the Michigan Property Transfer Affidavit is the Quit Claim Deed. This legal instrument allows a property owner to transfer their interest in a property to another party without guaranteeing that the title is clear. Like the Property Transfer Affidavit, a Quit Claim Deed must be filed with the appropriate local government office. Both documents serve to formalize the transfer of property, but the Quit Claim Deed focuses more on the actual transfer, while the Affidavit provides a declaration of the transfer's details for tax assessment purposes.

The Warranty Deed also shares similarities with the Michigan Property Transfer Affidavit. This document provides a guarantee that the seller holds clear title to the property and has the right to transfer it. While the Warranty Deed is primarily concerned with the assurance of ownership, the Property Transfer Affidavit is about reporting the transaction to local tax authorities. Both documents are essential in real estate transactions, ensuring that ownership is properly documented and that tax obligations are met.

The Affidavit of Value is another document that parallels the Michigan Property Transfer Affidavit. This form is often required when a property is sold or transferred and provides an estimate of the property's value. Like the Property Transfer Affidavit, the Affidavit of Value helps local authorities assess property taxes accurately. Both documents ensure that the financial aspects of a property transfer are transparent and documented, aiding in the assessment of taxes owed.

The Declaration of Homestead is also similar in purpose to the Michigan Property Transfer Affidavit. This document is filed to claim a property as a primary residence, which can affect tax rates and eligibility for certain exemptions. Both forms require property owners to provide specific information about their property, ensuring that local tax authorities have the necessary details to apply appropriate tax rates. The Declaration of Homestead can enhance the benefits of filing the Property Transfer Affidavit by potentially lowering tax burdens for homeowners.

In addition, the Transfer Tax Affidavit is closely related to the Michigan Property Transfer Affidavit. This document is required when real estate is sold or transferred, detailing the sale price and any exemptions that may apply. Like the Property Transfer Affidavit, the Transfer Tax Affidavit is used to calculate the transfer tax owed to the state. Both forms are vital for ensuring compliance with state tax laws, highlighting the financial implications of property transfers.

Lastly, the Statement of Information is another document that bears similarities to the Michigan Property Transfer Affidavit. This form is often used in conjunction with real estate transactions to provide additional information about the parties involved and the nature of the transaction. While the Property Transfer Affidavit focuses on the property itself, the Statement of Information provides context about the transaction, ensuring that all relevant details are available for tax assessment and legal purposes. Both documents work together to create a comprehensive record of property transfers.

Dos and Don'ts

When filling out the Michigan Property Transfer Affidavit 2766 form, it is important to follow certain guidelines to ensure accuracy and compliance. Here are eight things you should and shouldn't do:

  • Do read the instructions carefully before starting the form.
  • Don't leave any required fields blank; ensure all necessary information is provided.
  • Do use clear and legible handwriting or type the information if possible.
  • Don't use abbreviations unless specifically indicated in the instructions.
  • Do double-check all numbers, dates, and names for accuracy.
  • Don't submit the form without reviewing it for errors or omissions.
  • Do keep a copy of the completed form for your records.
  • Don't forget to sign and date the affidavit before submission.

Misconceptions

The Michigan Property Transfer Affidavit 2766 form is often misunderstood. Here are eight common misconceptions about this important document:

  • It is only for sales of property. Many believe the form is only required when a property is sold. However, it is also necessary for transfers that occur without a sale, such as gifts or inheritance.
  • Only the seller needs to complete it. Some think that only the seller is responsible for filling out the form. In reality, both the buyer and seller may need to provide information, depending on the circumstances of the transfer.
  • It is not required for all property transfers. Many assume that the affidavit is optional. In Michigan, it is mandatory for most property transfers to ensure proper assessment and tax records.
  • It can be submitted at any time. Some individuals believe they can submit the form whenever they choose. The affidavit must be filed within a specific timeframe after the transfer occurs, typically within 45 days.
  • It only affects property taxes. While it is primarily used for tax purposes, the information on the affidavit also impacts property assessments and can influence future property transactions.
  • Filing it is the only step needed for a property transfer. Many think that submitting the affidavit alone completes the transfer process. However, additional steps, such as recording the deed, are also necessary.
  • There are no penalties for not filing it. Some people believe that failing to file the form has no consequences. In fact, not submitting the affidavit can lead to fines or complications with property taxes.
  • It is a complicated form to fill out. While it may seem daunting, the affidavit is designed to be straightforward. Most individuals can complete it without legal assistance, provided they have the necessary information.

Understanding these misconceptions can help ensure compliance with Michigan property laws and streamline the transfer process.

Key takeaways

The Michigan Property Transfer Affidavit 2766 form is an important document for property transactions in Michigan. Here are some key takeaways to consider when filling out and using this form:

  • The form is required when there is a transfer of property ownership, such as a sale or inheritance.
  • Accurate completion of the form helps ensure that the property is assessed correctly for tax purposes.
  • Submit the affidavit to the local assessor's office within 45 days of the transfer to avoid penalties.
  • Be prepared to provide details about the property, including its address, the names of the buyers and sellers, and the sale price.
  • Failure to file the affidavit may result in additional taxes or penalties being assessed on the property.
  • Consulting with a real estate professional can provide guidance and help ensure the form is filled out correctly.