Homepage > Blank Job Briefing Template
Article Structure

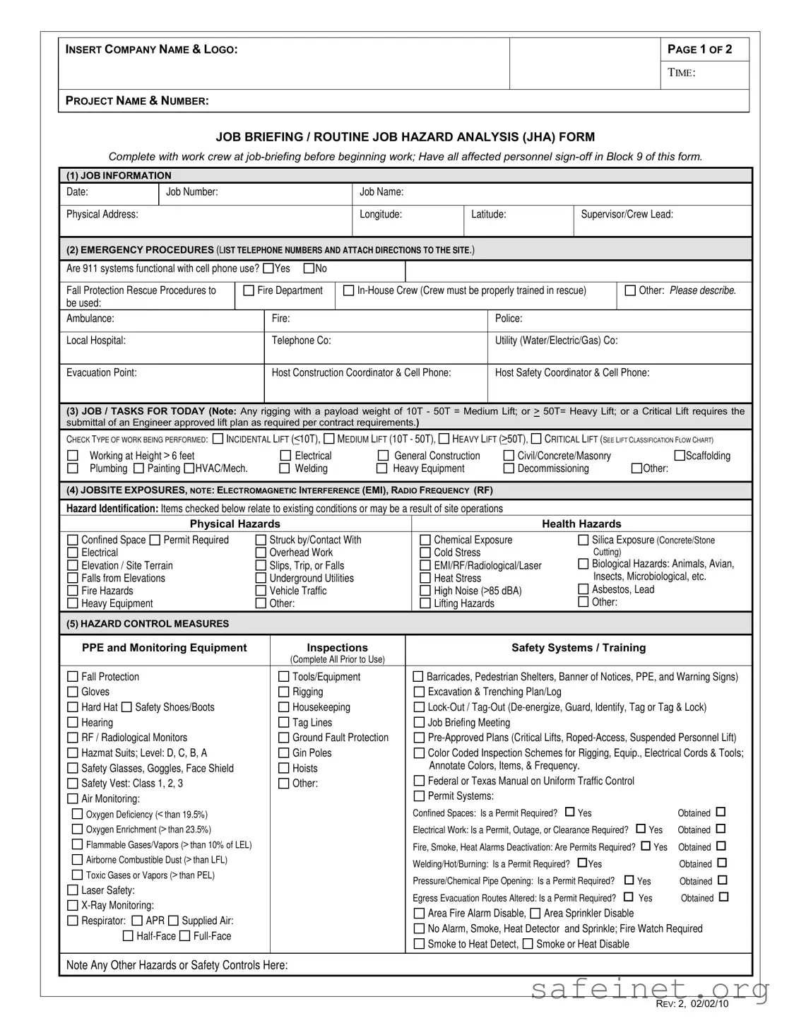
The Job Briefing form is a crucial tool designed to ensure safety and clarity before any work begins on a project. This form serves multiple purposes, starting with gathering essential job information such as the project name, job number, and physical address. It also identifies the crew members involved and the supervisor in charge. Emergency procedures are outlined, including critical contact numbers and evacuation points, ensuring that everyone knows what to do in case of an emergency. The form requires a detailed assessment of the tasks for the day, categorizing work into different types, such as incidental lifts or heavy equipment operations. It highlights potential job site exposures, from physical hazards to chemical risks, and emphasizes the importance of hazard control measures. Personal protective equipment (PPE) and monitoring equipment are also specified, ensuring that all safety protocols are in place. Furthermore, the form addresses specific requirements for civil work and fall protection measures, particularly when working at heights. Finally, it includes a section for reviews and signatures, confirming that all affected personnel have been briefed and understand the risks involved. This comprehensive approach not only fosters a culture of safety but also enhances communication among the team, making it an indispensable part of any job site preparation.

Form Sample

INSERT COMPANY NAME & LOGO:

PROJECT NAME & NUMBER:

PAGE 1 OF 2

TIME:

JOB BRIEFING / ROUTINE JOB HAZARD ANALYSIS (JHA) FORM

Complete with work crew at job-briefing before beginning work; Have all affected personnel sign-off in Block 9 of this form.

(1) JOB INFORMATION

Date:

Job Number:

Job Name:

 

 

 

Physical Address:

 

Longitude:

 

 

 

Latitude:

Supervisor/Crew Lead:

(2)EMERGENCY PROCEDURES (LIST TELEPHONE NUMBERS AND ATTACH DIRECTIONS TO THE SITE.)

Are 911 systems functional with cell phone use?

Yes

No

 

 

 

 

 

 

 

 

 

 

 

Fall Protection Rescue Procedures to

Fire Department

In-House Crew (Crew must be properly trained in rescue)

 

Other: PLEASE DESCRIBE.

be used:

 

 

 

 

 

 

 

Ambulance:

 

Fire:

 

 

Police:

 

 

 

 

 

 

 

Local Hospital:

 

Telephone Co:

 

Utility (Water/Electric/Gas) Co:

 

Evacuation Point:

Host Construction Coordinator & Cell Phone:

Host Safety Coordinator & Cell Phone:

(3)JOB / TASKS FOR TODAY (Note: Any rigging with a payload weight of 10T - 50T = Medium Lift; or > 50T= Heavy Lift; or a Critical Lift requires the submittal of an Engineer approved lift plan as required per contract requirements.)

CHECK TYPE OF WORK BEING PERFORMED:

INCIDENTAL LIFT (<10T),

MEDIUM LIFT (10T - 50T),

HEAVY LIFT (>50T),

CRITICAL LIFT (SEE LIFT CLASSIFICATION FLOW CHART)

Working at Height > 6 feet

Plumbing Painting HVAC/Mech.

Electrical Welding

General Construction Heavy Equipment

Civil/Concrete/Masonry Decommissioning

Scaffolding

Other:

(4) JOBSITE EXPOSURES, NOTE: ELECTROMAGNETIC INTERFERENCE (EMI), RADIO FREQUENCY (RF)

HAZARD IDENTIFICATION: Items checked below relate to existing conditions or may be a result of site operations

 

 

Physical Hazards

 

Health Hazards

 

 

 

 

 

 

 

 

Confined Space

Permit Required

Struck by/Contact With

Chemical Exposure

Silica Exposure (Concrete/Stone

 

Electrical

 

Overhead Work

Cold Stress

Cutting)

 

Elevation / Site Terrain

Slips, Trip, or Falls

EMI/RF/Radiological/Laser

Biological Hazards: Animals, Avian,

 

Falls from Elevations

Underground Utilities

Heat Stress

Insects, Microbiological, etc.

 

Fire Hazards

 

Vehicle Traffic

High Noise (>85 dBA)

Asbestos, Lead

 

Heavy Equipment

 

Other:

Lifting Hazards

Other:

 

 

 

 

 

 

 

(5) HAZARD CONTROL MEASURES

 

 

 

 

 

 

 

 

 

 

 

PPE and Monitoring Equipment

Inspections

Safety Systems / Training

 

 

 

 

 

(Complete All Prior to Use)

 

 

 

 

 

Fall Protection

 

Tools/Equipment

Barricades, Pedestrian Shelters, Banner of Notices, PPE, and Warning Signs)

Gloves

 

 

Rigging

Excavation & Trenching Plan/Log

 

 

 

Hard Hat

Safety Shoes/Boots

Housekeeping

Lock-Out / Tag-Out (De-energize, Guard, Identify, Tag or Tag & Lock)

 

Hearing

 

 

Tag Lines

Job Briefing Meeting

 

 

 

 

RF / Radiological Monitors

Ground Fault Protection

Pre-Approved Plans (Critical Lifts, Roped-Access, Suspended Personnel Lift)

Hazmat Suits; Level: D, C, B, A

Gin Poles

Color Coded Inspection Schemes for Rigging, Equip., Electrical Cords & Tools;

Safety Glasses, Goggles, Face Shield

Hoists

Annotate Colors, Items, & Frequency.

 

 

 

 

 

 

 

 

Safety Vest: Class 1, 2, 3

Other:

Federal or Texas Manual on Uniform Traffic Control

 

 

 

 

 

 

 

Air Monitoring:

 

 

Permit Systems:

 

 

 

 

 

 

 

 

 

 

 

Oxygen Deficiency (< than 19.5%)

 

Confined Spaces: Is a Permit Required? Yes

 

Obtained

Oxygen Enrichment (> than 23.5%)

 

Electrical Work: Is a Permit, Outage, or Clearance Required? Yes

Obtained

Flammable Gases/Vapors (> than 10% of LEL)

 

Fire, Smoke, Heat Alarms Deactivation: Are Permits Required? Yes

Obtained

Airborne Combustible Dust (> than LFL)

 

Welding/Hot/Burning: Is a Permit Required? Yes

 

Obtained

 

 

 

 

 

Toxic Gases or Vapors (> than PEL)

 

Pressure/Chemical Pipe Opening: Is a Permit Required?

Yes

Obtained

Laser Safety:

 

 

 

 

 

 

Egress Evacuation Routes Altered: Is a Permit Required?

Yes

Obtained

X-Ray Monitoring:

 

 

 

 

Area Fire Alarm Disable,

Area Sprinkler Disable

 

 

Respirator:

APR

Supplied Air:

 

 

 

 

No Alarm, Smoke, Heat Detector and Sprinkle; Fire Watch Required

 

 

Half-Face

Full-Face

 

 

 

 

Smoke to Heat Detect,

Smoke or Heat Disable

 

 

 

 

 

 

 

 

 

 

 

 

 

 

 

 

 

Note Any Other Hazards or Safety Controls Here:

REV: 2, 02/02/10

INSERT COMPANY NAME & LOGO:

PROJECT NAME & NUMBER:

PAGE 2 OF 2

TIME:

JOB BRIEFING / ROUTINE JOB HAZARD ANALYSIS (JHA) FORM

(6)COMPLETE FOR CIVIL WORK (PLEASE NOTE: ENGINEER APPROVED TRENCHING PLAN REQUIRED FOR TRENCHES > 5’)

NOT APPLICABLE

NOTE: Notify and confirm proper procedures, mitigation and/or protective steps taken with your company’s designated Safety Representative & Site Manager before

entering: any trench or any general excavation that is greater than 5’ deep; or any Confined Space.

1. Describe type and depth of excavations

Type A Soil/Rock

Type B Soil/Rock

Type C Soil/Rock:

Dig-Tess / One Call

2. Cave-in / Engulfment control measures to be used if excavation will be greater than 5 feet and personnel are entering the trench.

Shoring

Trench

Shield/Box

Ladder in Trench > 5 Feet & Every 25’ Sump Pump LOTO:

3.Describe elevation/site terrain/environmental concerns or hazards:

4.Describe hazards with site/vehicle access (High Traffic, Heavy Haul, Boom Cranes, and Storage of Materials/HazMat:

5.Describe the type of electrical or gas concerns or hazards (e.g. Electrical/Gas/Fiber Optic Lines):

Sloping

Benching

(7) FALL PROTECTION & USING SUSPENDED PERSONNEL PLATFORM (Complete for Working at Heights and Roped-Access)

NOT APPLICABLE

Type of Elevated Work & Height:

 

 

Type of Tower or Building:

 

 

 

Describe the fall protection system to be used when working aloft.

Lifeline

Personal Fall Arrest

Safety Monitor

Qualified Climber

Safety Net

Ladder Safety Device

Roped Access (Requires Roped Access JHA):

 

 

 

 

 

Fall protection to be used.

Full Body Harness

One Lanyard

Two Lanyards (100%)

Rope Grab

Cable Grab

Retractable Lifeline

Ascenders/Descenders

Anchorage Points, Belay, & Straps:

 

 

 

 

 

 

Ropes

Has each employee inspected his or her fall protection equipment?

 

Yes

No

 

 

 

Hoisting Equipment to be used: < 20’ Encroachment of Power Lines,

Yes

No; If yes, ID Voltage _______KV; De-energize/Test/Ground Lines

Yes

Suspended Personnel Platform/basket

Forklift Platform

Crane/Boom/Aerial Truck

Scissor/Snorkel Lift

Gin Pole

Roped Access

Suspended Personnel Platform Checklist and/or Critical Lift Plan Completed?

Yes

No

 

 

 

 

 

 

 

 

 

 

 

No

 

(8) REVIEWS AND SIGNATURES

 

 

 

 

 

 

 

 

 

 

 

 

 

 

 

 

 

 

 

GC Superintendent /Foreman

 

 

Lower-tier Subcontractor Supervisor

 

 

 

 

 

 

 

 

 

 

Name

Signature/Date

 

Name

Signature/Date

 

 

 

 

 

 

 

 

 

 

 

 

 

 

 

 

 

 

 

 

 

 

(9)PROJECT PERSONNEL ACKNOWLEDGEMENT (ALL AFFECTED PERSONNEL SIGN AFTER JOB BRIEFING)

Name:

Company:

CPR / First Aid

Name:

Company:

 

Yes

 

Yes

 

Yes

Yes

Yes

Yes

Yes

Yes

Yes

Yes

Yes

Yes

REV: 2, 02/02/10

Document Specifications

Fact Name Description
Purpose The Job Briefing form is used to assess job hazards and ensure safety protocols are discussed before work begins.
Completion Requirement All affected personnel must sign off on the form in Block 9 after the job briefing.
Date and Job Information Essential details such as date, job number, and job name must be filled out for accurate record-keeping.
Emergency Procedures Emergency contacts and procedures must be listed, including local emergency numbers and directions to the site.
Job Tasks Specific tasks for the day must be checked off, including types of lifts and other relevant activities.
Jobsite Exposures Potential hazards at the job site must be identified, including physical and health hazards.
Hazard Control Measures Safety measures, including personal protective equipment (PPE) and monitoring equipment, must be outlined.
Civil Work Requirements For civil work, an engineer-approved trenching plan is required for excavations greater than 5 feet.
Fall Protection Details regarding fall protection systems must be documented when working at heights or using suspended platforms.

Steps to Filling Out Job Briefing

Filling out the Job Briefing form is an essential step to ensure safety and preparedness before starting any work project. This form helps document critical information related to the job, including emergency procedures, job tasks, potential hazards, and safety measures. Following the steps outlined below will guide you through the process of completing the form accurately.

  1. Insert Company Name & Logo: At the top of the form, write the name of your company and attach the company logo.
  2. Project Name & Number: Specify the name and number associated with the project.
  3. Date: Fill in the date of the job briefing.
  4. Job Number: Enter the unique job number for tracking purposes.
  5. Job Name: Provide the name of the job being performed.
  6. Physical Address: Write the complete physical address of the job site.
  7. Longitude and Latitude: Include the geographic coordinates of the location.
  8. Supervisor/Crew Lead: Identify the supervisor or crew lead responsible for the job.
  9. Emergency Procedures: List relevant emergency contact numbers and attach directions to the job site.
  10. Job/Tasks for Today: Check the type of work being performed and specify any relevant details about the tasks.
  11. Jobsite Exposures: Identify potential hazards at the job site by checking the applicable boxes.
  12. Hazard Control Measures: Outline the safety measures and personal protective equipment (PPE) that will be used.
  13. Civil Work: If applicable, describe the type and depth of excavations and any related hazards.
  14. Fall Protection: For jobs involving heights, detail the fall protection systems in place.
  15. Reviews and Signatures: Obtain signatures from the General Contractor Superintendent or Foreman and any lower-tier subcontractor supervisors.
  16. Project Personnel Acknowledgment: Have all affected personnel sign off after the job briefing is completed.

More About Job Briefing

What is the purpose of the Job Briefing form?

The Job Briefing form serves as a crucial tool for ensuring safety and efficiency before starting any work. It allows the work crew to discuss the specific tasks at hand, identify potential hazards, and outline emergency procedures. By completing this form, all affected personnel can be informed and prepared, ultimately fostering a safer work environment. It is essential for promoting awareness among team members about the risks associated with their specific job roles.

Who needs to sign the Job Briefing form?

All affected personnel involved in the job must sign the Job Briefing form. This includes everyone who will be working on the project or may be impacted by the work being performed. By signing, each individual acknowledges that they have participated in the briefing and understand the hazards and procedures outlined in the form. This collective acknowledgment helps ensure that everyone is on the same page regarding safety measures and job expectations.

What information is required on the Job Briefing form?

The Job Briefing form requires several key pieces of information. This includes the date, job number, job name, physical address, and the names of the supervisor or crew lead. Additionally, it lists emergency procedures, job tasks for the day, potential jobsite exposures, and hazard control measures. The form also includes sections for civil work and fall protection measures, ensuring comprehensive coverage of all relevant aspects of the job.

How does the form address emergency procedures?

The Job Briefing form includes a dedicated section for emergency procedures, which is vital for any job site. This section requires the listing of emergency telephone numbers and directions to the site. It also prompts the crew to consider whether the 911 system is functional with cell phone use. By preparing this information in advance, the crew can act swiftly and effectively in the event of an emergency, minimizing potential harm and ensuring a quicker response.

What should be done if a hazard is identified on the Job Briefing form?

If a hazard is identified during the briefing, it is crucial to address it immediately. The form includes a section for hazard control measures, where the crew can outline the steps they will take to mitigate the identified risks. This may involve implementing personal protective equipment (PPE), adjusting work procedures, or notifying the designated safety representative. By taking proactive measures, the team can work towards minimizing risks and enhancing overall safety on the job site.

Is there a requirement for additional permits or plans on the Job Briefing form?

Yes, the Job Briefing form specifies that certain tasks may require additional permits or plans. For instance, if the job involves excavation deeper than five feet, an engineer-approved trenching plan is necessary. Similarly, permits may be required for electrical work, confined spaces, or when working at heights. It is essential for the crew to confirm that all necessary permits have been obtained before commencing work, as this is a critical aspect of maintaining safety and compliance on the job site.

Common mistakes

  1. Incomplete Information: Failing to fill out all required fields, such as the job number, date, or supervisor's name, can lead to confusion and miscommunication.

  2. Missing Signatures: Not obtaining signatures from all affected personnel in Block 9 may result in liability issues if an incident occurs.

  3. Ignoring Emergency Procedures: Neglecting to list emergency contact numbers or directions to the site can delay response times in critical situations.

  4. Incorrect Job Classification: Misclassifying the type of work being performed (e.g., heavy lift vs. medium lift) can lead to inadequate safety measures being implemented.

  5. Overlooking Jobsite Exposures: Failing to identify potential hazards, such as confined spaces or chemical exposures, can put workers at risk.

  6. Neglecting Hazard Control Measures: Not detailing the necessary personal protective equipment (PPE) or safety systems required for the job can compromise worker safety.

  7. Insufficient Review Process: Skipping the review and signature section by supervisors or subcontractors may result in unapproved plans being executed.

Documents used along the form

In the construction and project management fields, several forms and documents complement the Job Briefing form. Each of these documents serves a specific purpose, ensuring safety, compliance, and effective communication among team members. Below is a list of commonly used forms that work alongside the Job Briefing form.

  • Routine Job Hazard Analysis (JHA): This document identifies potential hazards associated with specific tasks. It outlines safety measures and controls to mitigate risks, ensuring that all workers are aware of their surroundings and the dangers they may face.
  • Incident Report Form: This form is used to document any accidents or near-misses that occur on the job site. It captures details about the incident, including time, location, and involved personnel, which is crucial for future prevention and safety improvements.
  • Safety Data Sheets (SDS): SDS provide detailed information about hazardous materials used on-site. They include handling instructions, potential hazards, and emergency measures, ensuring that workers are informed and prepared for any chemical exposure.
  • Permit to Work: This form is essential for high-risk activities, such as hot work or confined space entry. It ensures that all safety measures are in place and that personnel are trained and equipped before commencing work.
  • Toolbox Talks: These brief, informal meetings focus on specific safety topics relevant to the day's tasks. They encourage open discussion about hazards and promote a culture of safety among team members.
  • Emergency Response Plan: This document outlines the procedures to follow in case of an emergency, including evacuation routes and contact information for emergency services. It ensures that all personnel know how to react effectively in critical situations.
  • Inspection Checklists: These checklists are used to ensure that equipment, tools, and safety measures are in compliance with regulations and standards. Regular inspections help identify potential issues before they lead to accidents.

Utilizing these forms in conjunction with the Job Briefing form enhances workplace safety and promotes a proactive approach to risk management. Each document plays a vital role in fostering a safe and efficient work environment.

Similar forms

The Job Briefing form shares similarities with a Safety Plan, which outlines the protocols and procedures to ensure a safe working environment. Like the Job Briefing form, a Safety Plan requires input from all team members and is often reviewed before any work begins. Both documents emphasize identifying potential hazards and implementing control measures to mitigate risks, ensuring that everyone is aware of their responsibilities and the safety measures in place.

Another document comparable to the Job Briefing form is the Risk Assessment form. This document focuses on identifying and analyzing potential hazards associated with specific tasks. Similar to the Job Briefing form, it requires a thorough examination of the work environment and tasks to ensure that all risks are accounted for. Both forms aim to create a safer workplace by fostering a proactive approach to hazard identification and risk management.

The Job Hazard Analysis (JHA) form is closely related to the Job Briefing form, as both documents aim to identify potential hazards associated with specific job tasks. The JHA goes into greater detail about the specific hazards and necessary controls for each task. However, the Job Briefing form serves as a summary that can be used to communicate this information to the entire crew, making it accessible and understandable for all team members.

A Toolbox Talk is another document that aligns with the Job Briefing form. Toolbox Talks are informal safety meetings held on job sites to discuss specific safety issues or concerns. Like the Job Briefing form, these talks are designed to engage workers in safety discussions, ensuring that everyone is aware of current hazards and safety practices. Both documents emphasize the importance of communication and collaboration in maintaining a safe work environment.

The Incident Report form is similar to the Job Briefing form in that it documents safety-related events and helps identify areas for improvement. While the Job Briefing form is proactive, focusing on preventing incidents before they occur, the Incident Report form is reactive, analyzing what went wrong after an event. Both documents contribute to a culture of safety by encouraging continuous improvement and learning from past experiences.

The Permit to Work (PTW) system also shares characteristics with the Job Briefing form. A PTW is used to ensure that specific tasks, especially those involving high-risk activities, are completed safely. Both documents require thorough planning and communication among team members. They help ensure that everyone understands the potential hazards associated with the work and the necessary precautions to take.

Emergency Response Plans (ERPs) are akin to the Job Briefing form in that they outline procedures for responding to emergencies that may arise during work. Both documents emphasize the importance of preparation and communication. While the Job Briefing form focuses on daily tasks and hazards, the ERP provides guidance on how to react in case of an emergency, ensuring that all personnel are prepared to act swiftly and effectively.

The Equipment Inspection Checklist is another document that parallels the Job Briefing form. This checklist ensures that all tools and equipment are in safe working condition before use. Like the Job Briefing form, it requires team members to be vigilant and proactive in identifying potential issues that could lead to accidents. Both documents contribute to a safer work environment by ensuring that safety measures are in place before work begins.

Lastly, the Training Record form is similar to the Job Briefing form as it tracks the safety training received by employees. Both documents highlight the importance of education and awareness in maintaining a safe workplace. The Job Briefing form serves as a platform to reinforce training by discussing specific hazards and safety measures relevant to the tasks at hand, ensuring that all team members are adequately prepared.

Dos and Don'ts

When filling out the Job Briefing form, attention to detail is crucial. Here’s a helpful list of things to do and avoid, ensuring a smooth process for everyone involved.

  • Do: Include the company name and logo at the top of the form.
  • Do: Clearly specify the project name and number for easy reference.
  • Do: Fill in all job information accurately, including the date, job number, and physical address.
  • Do: Ensure all affected personnel sign off in Block 9 after the briefing.
  • Do: List emergency procedures and contact numbers clearly for quick access.
  • Don't: Leave any sections blank; incomplete information can lead to confusion.
  • Don't: Forget to confirm that all emergency systems, like 911, are functional.
  • Don't: Overlook the importance of identifying jobsite exposures and hazards.
  • Don't: Skip the hazard control measures; they are essential for safety.
  • Don't: Neglect to review the form with all crew members before starting work.

By following these guidelines, you can help ensure that the Job Briefing process is thorough and effective, promoting a safer work environment for everyone involved.

Misconceptions

Understanding the Job Briefing form is crucial for ensuring safety and compliance on the job site. However, several misconceptions often cloud its purpose and use. Here are seven common misunderstandings:

  • It’s just a formality. Many believe that completing the Job Briefing form is a mere box to check. In reality, it serves as a vital tool for identifying hazards and ensuring that everyone is aware of safety protocols before starting work.
  • Only supervisors need to fill it out. Some think that only the supervisor or crew lead is responsible for completing the form. However, input from all crew members is essential, as they can provide valuable insights into potential hazards and safety measures.
  • It’s only necessary for high-risk jobs. While the form is critical for high-risk tasks, it is equally important for all jobs, regardless of perceived danger. Hazards can arise in any work environment, making the briefing essential for everyone.
  • Signing means agreement with everything. A common misconception is that signing the form indicates full agreement with all aspects. In truth, signing signifies that personnel have been informed of the hazards and procedures, not necessarily that they agree with every detail.
  • It’s not necessary if everyone is experienced. Experience does not eliminate the need for a Job Briefing. Even seasoned workers can overlook specific hazards or changes in procedures. The briefing ensures everyone is on the same page.
  • It only covers physical hazards. Some may think the form addresses only physical dangers. In fact, it also includes health hazards, environmental risks, and emergency procedures, making it a comprehensive safety tool.
  • It’s a one-time requirement. Many believe that once the form is filled out, it’s no longer needed. However, it should be revisited and updated regularly, especially when conditions change or new personnel join the team.

Clearing up these misconceptions can foster a safer work environment. Understanding the true purpose of the Job Briefing form encourages a culture of safety and accountability among all team members.

Key takeaways

Filling out the Job Briefing form is an essential step in ensuring workplace safety and effective communication among team members. Here are some key takeaways to keep in mind:

  • Complete Before Work Begins: Always fill out the Job Briefing form with your work crew before starting any tasks. This ensures everyone is aware of the job details and potential hazards.
  • Sign-Off Required: It is crucial for all affected personnel to sign off in Block 9 of the form. This indicates that they have participated in the briefing and understand the job requirements and safety measures.
  • Emergency Procedures: Clearly list emergency contact numbers and procedures on the form. Make sure everyone knows how to reach emergency services and the location of evacuation points.
  • Identify Job Tasks: Specify the type of work being performed, including any heavy or critical lifts. This helps in assessing the necessary safety measures and equipment required for the job.
  • Hazard Awareness: Check for potential hazards related to the job site. Identifying physical and health hazards in advance allows for proper planning and risk mitigation.
  • Review and Acknowledge: After completing the form, ensure that all personnel review it together. This fosters a shared understanding of the job and reinforces the importance of safety protocols.

By following these guidelines, teams can promote a safer work environment and enhance communication, ultimately leading to successful project completion.