Homepage > Blank Illinois Final Waiver Of Lien Template
Article Structure

The Illinois Final Waiver of Lien form serves as a crucial document in the construction and real estate industries, ensuring that all parties involved in a project are protected from potential disputes regarding payments. This form is typically utilized by contractors and subcontractors to formally relinquish their right to file a mechanics' lien against a property, thereby providing peace of mind to property owners and lenders. It includes essential details such as the name of the contractor, the specific work performed, and the total amount of the contract, including any extras or change orders. By signing this document, the contractor acknowledges receipt of payment and confirms that all labor and materials have been provided as agreed. Additionally, the form requires a sworn affidavit, affirming that there are no outstanding claims against the property and that all parties who contributed to the work have been accounted for. This comprehensive approach not only protects the contractor's interests but also safeguards the property owner from unexpected liens, making the Illinois Final Waiver of Lien a vital instrument in the real estate transaction process.

Form Sample

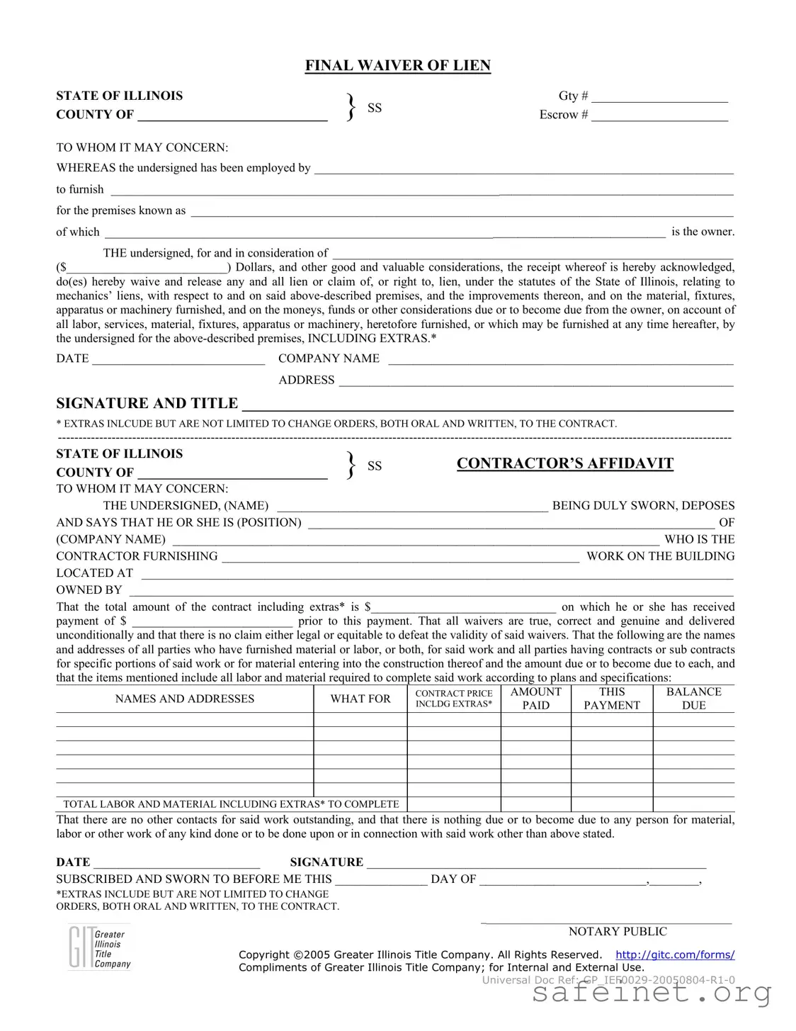
FINAL WAIVER OF LIEN

STATE OF ILLINOIS

} SS

Gty # _____________________

COUNTY OF _____________________________

Escrow # _____________________

TO WHOM IT MAY CONCERN:

WHEREAS the undersigned has been employed by ____________________________________________________________________

to furnish _____________________________________________________________________________________________________

for the premises known as ________________________________________________________________________________________

of which ___________________________________________________________________________________________ is the owner.

THE undersigned, for and in consideration of _________________________________________________________________

($__________________________) Dollars, and other good and valuable considerations, the receipt whereof is hereby acknowledged,

do(es) hereby waive and release any and all lien or claim of, or right to, lien, under the statutes of the State of Illinois, relating to mechanics’ liens, with respect to and on said above-described premises, and the improvements thereon, and on the material, fixtures, apparatus or machinery furnished, and on the moneys, funds or other considerations due or to become due from the owner, on account of all labor, services, material, fixtures, apparatus or machinery, heretofore furnished, or which may be furnished at any time hereafter, by the undersigned for the above-described premises, INCLUDING EXTRAS.*

DATE ____________________________ COMPANY NAME ________________________________________________________

ADDRESS ________________________________________________________________

SIGNATURE AND TITLE _______________________________________________________________

* EXTRAS INLCUDE BUT ARE NOT LIMITED TO CHANGE ORDERS, BOTH ORAL AND WRITTEN, TO THE CONTRACT.

-------------------------------------------------------------------------------------------------------------------------------------------------------------------

STATE OF ILLINOIS

} SS

CONTRACTOR’S AFFIDAVIT

COUNTY OF _____________________________

TO WHOM IT MAY CONCERN:

 

 

THE UNDERSIGNED, (NAME) ____________________________________________ BEING DULY SWORN, DEPOSES

AND SAYS THAT HE OR SHE IS (POSITION) __________________________________________________________________ OF

(COMPANY NAME) _______________________________________________________________________________ WHO IS THE

CONTRACTOR FURNISHING __________________________________________________________ WORK ON THE BUILDING

LOCATED AT ________________________________________________________________________________________________

OWNED BY __________________________________________________________________________________________________

That the total amount of the contract including extras* is $______________________________ on which he or she has received

payment of $ __________________________ prior to this payment. That all waivers are true, correct and genuine and delivered

unconditionally and that there is no claim either legal or equitable to defeat the validity of said waivers. That the following are the names and addresses of all parties who have furnished material or labor, or both, for said work and all parties having contracts or sub contracts for specific portions of said work or for material entering into the construction thereof and the amount due or to become due to each, and that the items mentioned include all labor and material required to complete said work according to plans and specifications:

NAMES AND ADDRESSES

WHAT FOR

CONTRACT PRICE INCLDG EXTRAS*

AMOUNT

PAID

THIS

PAYMENT

BALANCE

DUE

TOTAL LABOR AND MATERIAL INCLUDING EXTRAS* TO COMPLETE

That there are no other contacts for said work outstanding, and that there is nothing due or to become due to any person for material, labor or other work of any kind done or to be done upon or in connection with said work other than above stated.

DATE ___________________________ SIGNATURE _______________________________________________________

SUBSCRIBED AND SWORN TO BEFORE ME THIS _______________ DAY OF ___________________________,________,

*EXTRAS INCLUDE BUT ARE NOT LIMITED TO CHANGE

ORDERS, BOTH ORAL AND WRITTEN, TO THE CONTRACT.

________________________________________________

NOTARY PUBLIC

Copyright ©2005 Greater Illinois Title Company. All Rights Reserved. http://gitc.com/forms/

Compliments of Greater Illinois Title Company; for Internal and External Use.

Universal Doc Ref: GP_IEF0029-20050804-R1-0

Document Specifications

Fact Name Fact Description
Purpose The Illinois Final Waiver of Lien form is used to waive and release any lien claims against a property after payment has been made for labor or materials provided.
Governing Law This form is governed by the Illinois Mechanics Lien Act, which outlines the rights and responsibilities related to lien claims in construction and improvement projects.
Parties Involved The form requires information from the contractor, including their name, position, and the company they represent, as well as details about the property and payment received.
Extras Definition Extras refer to additional costs that may arise from change orders, which can be both oral and written, and are included in the waiver of lien.

Steps to Filling Out Illinois Final Waiver Of Lien

Filling out the Illinois Final Waiver of Lien form is an important step in ensuring that all parties involved in a construction project are clear about payments and claims. Once completed, this document will serve as a formal acknowledgment that a contractor or subcontractor has received payment and waives any future claims against the property for the work performed.

  1. Obtain the Form: Start by downloading or printing the Illinois Final Waiver of Lien form from a reliable source.
  2. Fill in the Date: At the top of the form, write the date you are completing the document.
  3. Enter the Company Information: In the designated space, fill in the name of the company that has been employed to furnish labor or materials.
  4. Describe the Work: Clearly state what work or materials have been provided. Be specific to avoid any ambiguity.
  5. Provide Property Details: Write the address of the premises where the work has been performed, including any relevant identifying information.
  6. Identify the Owner: Enter the name of the property owner in the appropriate section.
  7. State the Consideration: Indicate the total amount of payment received for the work completed, filling in both the dollar amount and the written amount.
  8. Sign the Form: The authorized representative of the company must sign the form and include their title.
  9. Complete the Affidavit Section: In the next section, provide the name and position of the person signing, along with the company name again.
  10. Fill in Contract Details: State the total contract amount, the amount received prior to this payment, and confirm that all waivers are true and correct.
  11. List All Parties: Include the names and addresses of all parties who have provided labor or materials, along with the corresponding amounts due.
  12. Finalize the Document: Sign the affidavit and have it notarized on the specified date.

More About Illinois Final Waiver Of Lien

What is the Illinois Final Waiver of Lien form?

The Illinois Final Waiver of Lien form is a legal document used in the construction industry. It serves as a formal declaration by a contractor or subcontractor that they have received payment for their work and materials provided for a specific project. By signing this form, the contractor waives any future claims or liens against the property for the work completed. This helps protect property owners from potential legal disputes regarding unpaid services or materials.

Who needs to use the Illinois Final Waiver of Lien form?

What information is required on the form?

The Illinois Final Waiver of Lien form requires several key pieces of information. You must include the name of the contractor or subcontractor, the project location, and details about the work performed. Additionally, you need to specify the total contract amount, the amount paid prior to this waiver, and any extras related to the contract. Signatures from the contractor and a notary public are also necessary to validate the document. This information ensures clarity and transparency between all parties involved.

What happens after the form is signed?

Once the Illinois Final Waiver of Lien form is signed and notarized, it should be delivered to the property owner or the relevant party who requested it. The contractor officially releases any claims to the property regarding the work performed. This means that the contractor cannot later assert a lien for unpaid services related to that project. It is crucial to keep a copy of the signed waiver for your records, as it serves as proof that you have been paid and have relinquished any rights to claim against the property.

Common mistakes

  1. Incomplete Information: Failing to fill in all required fields, such as the property address or the owner's name, can lead to delays or invalidation of the waiver.

  2. Incorrect Payment Amount: Entering the wrong amount in the payment section can create confusion. Ensure that the amount matches what has been agreed upon.

  3. Missing Signatures: Not signing the document or forgetting to include the title can render the waiver unenforceable.

  4. Neglecting to Include Extras: Failing to mention any change orders or extras can result in losing the right to claim payment for those items later.

  5. Not Notarizing the Document: A waiver that is not notarized may not be considered valid. Always ensure that a notary public is present during the signing.

  6. Incorrect Contractor Information: Providing incorrect details about the contractor, such as name or position, can lead to disputes regarding the waiver’s authenticity.

  7. Omitting Other Parties: Not listing all parties involved in the project can create legal issues. It's important to include everyone who has provided labor or materials.

  8. Failing to Review Prior Payments: Not accurately reporting prior payments received can lead to misunderstandings about the financial status of the project.

  9. Ignoring State Requirements: Each state may have specific requirements for lien waivers. Not adhering to Illinois laws can invalidate the waiver.

Documents used along the form

The Illinois Final Waiver of Lien form is a crucial document in the construction industry, particularly for contractors and subcontractors. It serves to release any claims against a property for work completed or materials supplied. However, several other forms and documents are often used alongside this waiver to ensure proper legal compliance and protection for all parties involved. Below is a list of such documents.

  • Contractor’s Affidavit: This document confirms that the contractor has fulfilled their obligations under the contract, detailing payments received and asserting that no other claims exist against the property.
  • Notice of Intent to Lien: A preliminary notice that informs property owners of a potential lien if payment is not made. This document is often sent before filing a lien to encourage timely payment.
  • Mechanics Lien: This legal claim is filed against a property to secure payment for labor or materials provided. It serves as a public record of the contractor's or subcontractor's right to payment.
  • Change Order: A document that outlines modifications to the original construction contract. It details changes in scope, cost, and timelines, and is essential for documenting agreed-upon adjustments.
  • Payment Application: This form is submitted by contractors to request payment for work completed. It includes details about the work performed and the amount due, often accompanied by supporting documentation.
  • Release of Lien: This document is used to formally release a lien that has been filed against a property. It is often required once payment has been received to clear any claims on the property.
  • Subcontractor Waiver of Lien: Similar to the Final Waiver of Lien, this document is specifically for subcontractors to waive their rights to file a lien against the property for unpaid work or materials.
  • General Conditions: This document outlines the standard provisions and requirements that govern the construction project, including roles, responsibilities, and procedures for handling disputes.
  • Certificate of Insurance: This form provides proof that the contractor has the necessary insurance coverage, protecting both the contractor and the property owner from potential liabilities.

Using these documents in conjunction with the Illinois Final Waiver of Lien form helps ensure that all parties are protected and that the project runs smoothly. Proper documentation can prevent disputes and facilitate timely payments, ultimately contributing to the successful completion of construction projects.

Similar forms

The Illinois Final Waiver of Lien form shares similarities with the Contractor's Affidavit, which is also utilized in construction projects. This document serves as a declaration by the contractor, affirming that all payments related to the contract have been received and that no outstanding claims exist against the property. Just like the Final Waiver of Lien, it ensures that all parties involved are aware of the financial status of the project, thereby protecting the property owner from potential liens. Both documents aim to confirm that the contractor has fulfilled their obligations and that any rights to claim a lien on the property have been relinquished.

Another document that resembles the Illinois Final Waiver of Lien is the Partial Waiver of Lien. This form is used when a contractor or subcontractor has received a portion of the payment for work completed. Similar to the Final Waiver, it releases the right to claim a lien but only for the amount that has been paid. This distinction allows for ongoing work and payments while providing assurance to property owners that they are not at risk of a lien for the completed portion of the project. The Partial Waiver maintains transparency between parties and helps manage financial expectations throughout the construction process.

The Release of Lien is yet another document akin to the Illinois Final Waiver of Lien. This form is typically issued after payment has been made, confirming that the contractor or supplier has received compensation for their services or materials. Like the Final Waiver, it releases any claims against the property for the work performed. The Release of Lien serves as a safeguard for property owners, ensuring that once payment is rendered, the contractor cannot later assert a lien for that same work. Both documents are essential in maintaining clear communication and trust among all parties involved in a construction project.

Additionally, the Subcontractor's Waiver of Lien is comparable to the Illinois Final Waiver of Lien. This document is specifically designed for subcontractors, allowing them to waive their right to place a lien on the property for the work they have completed. Much like the Final Waiver, it provides assurance to the property owner that all subcontractors have been paid for their contributions. By using this waiver, property owners can mitigate the risk of multiple liens arising from various subcontractors, ensuring a smoother project completion and reducing potential disputes.

Lastly, the Mechanic's Lien Release is another document that aligns with the Illinois Final Waiver of Lien. This release is typically filed with the county recorder's office after a lien has been placed and subsequently satisfied. It serves to formally remove the lien from the public record, indicating that the contractor has been paid and no longer has a claim against the property. Both the Mechanic's Lien Release and the Final Waiver of Lien are crucial in protecting property owners from future claims and ensuring that all parties have fulfilled their financial obligations. They facilitate a clear resolution to any financial disputes that may arise during or after a construction project.

Dos and Don'ts

When filling out the Illinois Final Waiver of Lien form, it is essential to approach the task with care and attention to detail. Below is a list of important do's and don'ts to help ensure the process goes smoothly.

  • Do provide accurate and complete information in all fields, including the contractor's name, address, and the total amount of the contract.
  • Do clearly state the description of the work performed and any materials supplied to avoid confusion later.
  • Do ensure that the waiver is signed by an authorized representative of the company, including their title.
  • Do keep a copy of the completed waiver for your records, as it may be needed for future reference.
  • Don't leave any sections blank. Each part of the form must be filled out to be valid.
  • Don't forget to include any extras, such as change orders, to ensure all work is accounted for in the waiver.

By following these guidelines, you can help protect your interests and ensure that the waiver is processed correctly. If you have any questions during the process, consider reaching out to a professional for assistance.

Misconceptions

Understanding the Illinois Final Waiver of Lien form can be crucial for anyone involved in construction or contracting. However, several misconceptions may cloud its true purpose and function. Here are five common misconceptions:

  • It guarantees payment. Many believe that signing a waiver guarantees that they will be paid for their work. In reality, it only confirms that the signer has received payment for the specified work up to that point.
  • It eliminates all rights to future claims. Some think that by signing the waiver, they forfeit any rights to claim payment for future work. However, the waiver only applies to the work completed up to the date of signing, not future services or materials.
  • It’s only necessary for large projects. Many assume that waivers are only needed for significant construction projects. In fact, they can be important for any construction or renovation work, regardless of size.
  • It’s a one-size-fits-all document. Some believe that the waiver is the same for every situation. Each project may have unique requirements, and it’s important to tailor the waiver to reflect the specifics of the job and the parties involved.
  • Signing it is always in the best interest of the contractor. Many think that signing the waiver is always beneficial. However, contractors should carefully consider the timing and context of signing, as it could affect their ability to claim payment later.

Being informed about these misconceptions can help individuals navigate the complexities of construction agreements more effectively. Understanding the true nature of the Illinois Final Waiver of Lien form is essential for protecting your rights and interests in any construction project.

Key takeaways

Here are key takeaways regarding the Illinois Final Waiver of Lien form:

  • Purpose: The form serves to waive any lien rights the contractor or supplier may have against a property once they have been paid for their services or materials.
  • Consideration: The waiver is executed in exchange for a specified amount of money, which must be clearly stated on the form.
  • Extras: The waiver includes any additional work or materials provided, often referred to as "extras," such as change orders.
  • Accurate Information: It is crucial to fill in all fields accurately, including the names of all parties involved and the contract details.
  • Signature Requirement: The form must be signed by the individual authorized to act on behalf of the contractor or supplier, including their title.
  • Notarization: The signature needs to be notarized, confirming the authenticity of the signer's identity and the voluntary nature of the waiver.
  • Finality: Once signed, the waiver is final. It releases any claims against the property, so ensure all payments are complete before executing the form.
  • Legal Compliance: This form must comply with Illinois statutes regarding mechanics’ liens, making it essential to understand your rights and obligations.