Homepage > Blank California Preliminary 20 Day Notice Template
Article Structure

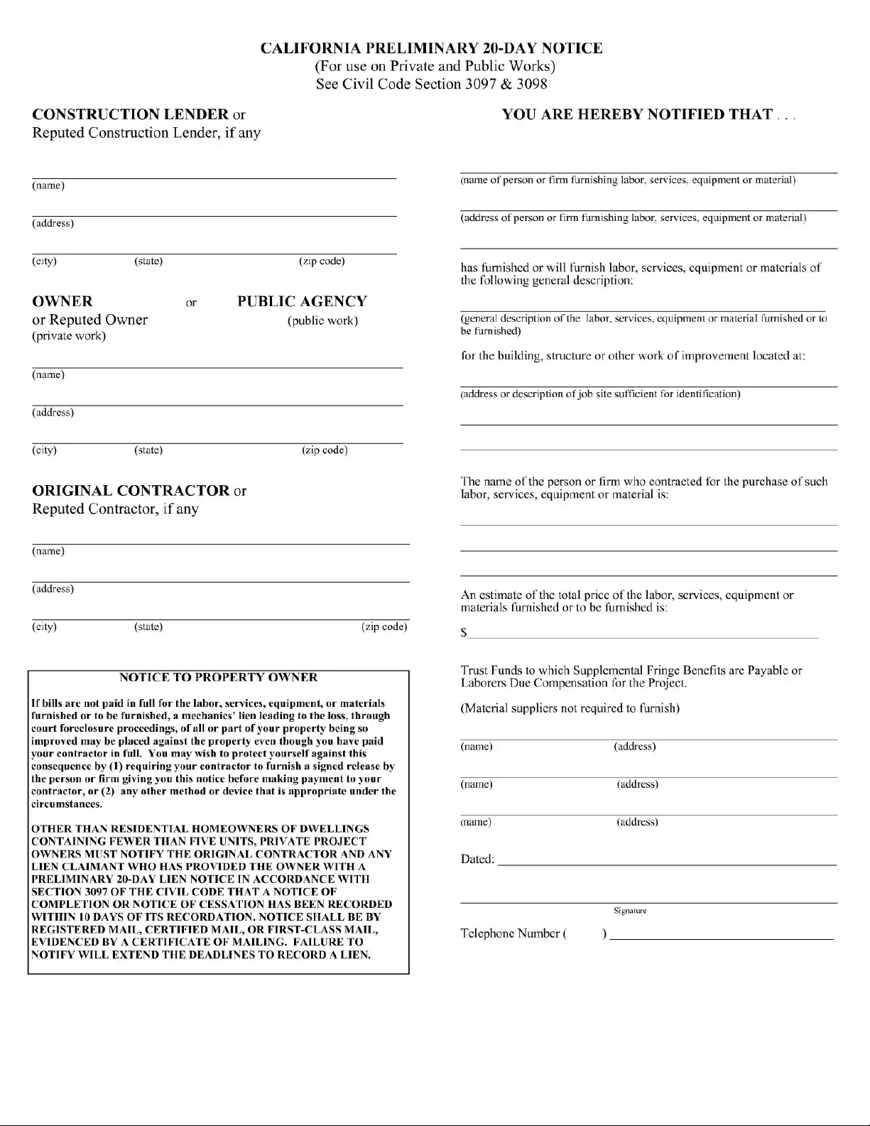
The California Preliminary 20-Day Notice form serves as a crucial tool for individuals and entities involved in construction projects, whether private or public. This form is designed to inform property owners, contractors, and other stakeholders about the labor, services, equipment, or materials that have been, or will be, provided for a specific project. It outlines essential details such as the names and addresses of the construction lender, owner, and original contractor, along with a general description of the work being performed. Importantly, the notice also serves as a warning to property owners about potential mechanics' liens that could be placed on their property if payments for the provided services are not made in full. To protect themselves, owners are advised to consider requiring signed releases from contractors before making payments. Additionally, for private project owners, there are specific notification requirements regarding the recording of a Notice of Completion or Notice of Cessation, emphasizing the importance of timely communication in the construction process. This form is not just a formality; it is a proactive measure that can help prevent disputes and financial complications down the road.

Form Sample

Document Specifications

Fact Name Description
Purpose The California Preliminary 20-Day Notice is designed to inform property owners about potential claims for unpaid labor, services, equipment, or materials provided for construction projects.
Governing Laws This notice is governed by California Civil Code Sections 3097 and 3098, which outline the requirements and implications of the notice.
Timeframe It must be served within 20 days of the commencement of work or the delivery of materials to ensure the right to file a mechanics' lien.
Notification Requirement Property owners must notify the original contractor and any lien claimant about the recording of a Notice of Completion or Notice of Cessation within 10 days of its recordation.
Liability Warning The notice warns that property owners may face a mechanics' lien against their property, even if they have paid their contractor in full, should bills remain unpaid.

Steps to Filling Out California Preliminary 20 Day Notice

Once you have the California Preliminary 20 Day Notice form ready, you’ll need to fill it out accurately. This notice is essential in protecting your rights when providing labor, services, or materials for a construction project. Completing this form correctly ensures that all parties involved are informed about the work being done and helps secure your right to payment.

  1. At the top of the form, enter the name and address of the Construction Lender or Reputed Construction Lender, if applicable.
  2. Next, fill in the OWNER section with the name, address, city, state, and zip code of the property owner or reputed owner.
  3. If the work is public, provide the name of the PUBLIC AGENCY involved.
  4. In the section for the person or firm furnishing labor, services, equipment, or materials, write their name and address.
  5. Describe the labor, services, equipment, or materials being furnished. Be clear and concise.
  6. Provide the address or description of the job site to ensure proper identification.
  7. Fill in the ORIGINAL CONTRACTOR section with the name and address of the original contractor, if applicable.
  8. Include the name of the person or firm who contracted for the purchase of the labor, services, equipment, or materials.
  9. Write the estimated total price of the labor, services, equipment, or materials being provided.
  10. For trust funds related to supplemental fringe benefits or laborers due compensation, provide the necessary names, if required.
  11. Sign and date the form, including your telephone number.
  12. Complete the PROOF OF SERVICE AFFIDAVIT section by checking the appropriate box for how you served the notice.
  13. Fill in the names and addresses of the parties served, along with the date of service.
  14. Finally, sign and date the affidavit, affirming that the information provided is true and correct.

More About California Preliminary 20 Day Notice

What is the purpose of the California Preliminary 20 Day Notice form?

The California Preliminary 20 Day Notice serves as a notification to property owners, contractors, and lenders that labor, services, equipment, or materials have been or will be provided for a construction project. It is a critical document that helps protect the rights of those who contribute to the project by ensuring they can claim payment if necessary.

Who needs to file a Preliminary 20 Day Notice?

What information is required to complete the form?

The form requires several key pieces of information, including the name and address of the person or firm providing the labor or materials, the name of the property owner or public agency, a description of the work being performed, and the address of the job site. Additionally, an estimate of the total price for the services or materials should be included.

What happens if a property owner does not receive a Preliminary 20 Day Notice?

If a property owner does not receive a Preliminary 20 Day Notice, they may not be aware of potential claims against their property. This lack of notification can lead to complications, including the risk of a mechanics' lien being placed on their property, even if they have paid their contractor in full.

How does the Preliminary 20 Day Notice protect contractors and suppliers?

This notice provides legal protection by informing property owners of the parties involved in the project. If payment issues arise, those who filed the notice have a stronger claim to pursue payment through a mechanics' lien, which can ultimately lead to the sale of the property to satisfy unpaid debts.

What is a mechanics' lien, and how does it relate to the Preliminary 20 Day Notice?

A mechanics' lien is a legal claim against a property for unpaid work or materials supplied. The Preliminary 20 Day Notice is a prerequisite for filing a mechanics' lien in California. By submitting this notice, contractors and suppliers establish their right to claim a lien if they do not receive payment.

What should property owners do upon receiving a Preliminary 20 Day Notice?

Upon receiving this notice, property owners should take it seriously. They may want to verify the claims made in the notice and ensure that all parties involved are being paid appropriately. To protect themselves, they can request a signed release from the contractor before making any payments.

Are there specific deadlines associated with the Preliminary 20 Day Notice?

What is the consequence of failing to notify the original contractor?

If a property owner fails to notify the original contractor and lien claimants, it can extend the deadlines for recording a lien. This may leave the property owner vulnerable to additional claims and potential legal complications.

How can I ensure that my Preliminary 20 Day Notice is properly served?

Common mistakes

  1. Incomplete Information: One common mistake is failing to fill out all required fields. Each section of the form must be completed, including names, addresses, and descriptions. Missing information can lead to delays or rejection.

  2. Incorrect Addresses: Providing incorrect addresses for the owner or contractor can cause significant issues. Ensure that all addresses are accurate and complete to avoid confusion.

  3. Failure to Notify: Private project owners must notify the original contractor and lien claimants about a notice of completion or cessation. Neglecting this step can extend the deadlines for recording a lien.

  4. Not Including a Total Price Estimate: The form requires an estimate of the total price for the labor, services, equipment, or materials. Omitting this information can create problems for all parties involved.

  5. Improper Service Method: It is essential to serve the notice correctly. Using the wrong method, such as failing to send it via registered or certified mail, can invalidate the notice.

  6. Missing Signature: A signature is necessary to validate the notice. Forgetting to sign the form can render it ineffective.

  7. Ignoring Deadlines: There are strict deadlines for submitting the notice. Failing to adhere to these timelines can result in losing the right to file a mechanics' lien.

Documents used along the form

The California Preliminary 20 Day Notice form is an essential document in the construction industry, particularly for those involved in private and public works projects. It serves as a notification to property owners, contractors, and lenders about the labor, services, equipment, or materials being provided. However, several other forms and documents often accompany this notice to ensure compliance and protect the rights of all parties involved. Below is a list of these related documents.

  • Mechanics' Lien: This legal claim can be filed against a property when payment for work performed or materials supplied has not been received. It allows contractors and suppliers to seek payment through foreclosure if necessary.
  • Notice of Completion: Once a construction project is finished, this document informs all parties involved that the work has been completed. It is crucial for starting the timeline for filing a mechanics' lien.
  • Notice of Cessation: This form is used when work on a project has stopped for a specific period. It notifies parties that the construction is no longer ongoing, which can affect lien rights.
  • Proof of Service Affidavit: This document provides evidence that the Preliminary 20 Day Notice was properly served to the necessary parties. It is important for establishing that all stakeholders have been informed.
  • Release of Lien: When a debt has been satisfied, this document formally removes the mechanics' lien from the property records, ensuring that the property is clear of any claims.
  • Contractor’s License Verification: This document confirms that a contractor is licensed and authorized to perform work in California, providing assurance to property owners about the legitimacy of the contractor.

Understanding these documents is vital for anyone involved in construction projects. They help protect the rights and interests of property owners, contractors, and suppliers alike. Being informed about these forms can prevent legal complications and ensure smoother project completion.

Similar forms

The California Preliminary 20-Day Notice form serves a crucial role in construction law by notifying property owners and contractors about potential liens. A similar document is the Notice of Completion. This notice is filed by the property owner or contractor once the construction project is completed. It provides a clear timeline for when the project was finished, which can affect the deadlines for filing liens. Both documents aim to protect the rights of parties involved in construction projects, ensuring that everyone is aware of their obligations and rights regarding payments and liens.

Another comparable document is the Notice of Cessation. This is used when a construction project has stopped for a certain period, typically for 30 days or more. Like the Preliminary 20-Day Notice, it serves to inform interested parties about the status of the project. It helps to clarify the timeline for filing liens and protects the rights of those who have provided labor or materials. Both notices are critical in managing the legal implications of construction delays or completions.

The Mechanic's Lien is also similar to the California Preliminary 20-Day Notice. This legal claim is filed against a property by a contractor or supplier who has not been paid for work performed. While the Preliminary Notice serves as a warning, the Mechanic's Lien is an action that can lead to foreclosure on the property. Both documents emphasize the importance of timely payments and provide a mechanism for those in the construction industry to secure their financial interests.

The Stop Notice is another document that aligns closely with the Preliminary 20-Day Notice. A Stop Notice can be served on a property owner or construction lender to halt payment to the contractor until the claimant is paid. Like the Preliminary Notice, it is a way to protect the rights of those who have provided labor or materials. Both notices require timely action to safeguard the interests of the parties involved.

The Release of Lien is also relevant in this context. This document is used to formally remove a lien that has been placed on a property once payment has been made. It is similar to the Preliminary 20-Day Notice in that it is a means of communication regarding financial obligations. Both documents play a vital role in ensuring that all parties are aware of their rights and responsibilities in relation to payments and liens.

The Notice of Non-Payment is another document that bears similarities to the Preliminary 20-Day Notice. This notice is sent to inform a property owner that payment has not been received for work performed. Like the Preliminary Notice, it serves as a warning and a reminder of the financial obligations involved in construction projects. Both documents highlight the necessity of clear communication among all parties involved to avoid disputes.

The Claim of Lien is also comparable to the California Preliminary 20-Day Notice. This document is filed by a contractor or supplier who has not been paid, similar to a Mechanic's Lien. It serves as a formal claim against the property and can lead to legal action if not resolved. Both documents underscore the importance of timely payments and the potential consequences of failing to fulfill financial obligations.

Lastly, the Preliminary Notice for Public Works is similar to the California Preliminary 20-Day Notice. This document is specifically designed for public construction projects and serves the same purpose of notifying interested parties about potential liens. Both notices are essential for protecting the rights of contractors and suppliers, ensuring that they are informed about their financial rights and obligations in relation to public works projects.

Dos and Don'ts

When filling out the California Preliminary 20-Day Notice form, it is essential to follow specific guidelines to ensure accuracy and compliance with legal requirements. Below are four important do's and don'ts to consider.

  • Do provide complete and accurate information for all required fields, including names, addresses, and descriptions of the work performed.
  • Do send the notice to all relevant parties, including the construction lender, owner, and original contractor, to ensure proper notification.
  • Don't neglect to include a general description of the labor, services, equipment, or materials furnished or to be furnished.
  • Don't forget to document the method of service, whether it is by personal delivery or mail, as this is critical for proof of service.

By adhering to these guidelines, you can help protect your rights and interests in the construction process.

Misconceptions

Understanding the California Preliminary 20 Day Notice form can be challenging. Here are seven common misconceptions about this important document:

  1. It's only for residential projects. Many believe that the Preliminary 20 Day Notice is only applicable to residential construction. In reality, it is used for both private and public works, making it essential for a variety of construction projects.
  2. Submitting the notice guarantees payment. Some people think that sending out this notice ensures they will be paid. While it does provide legal protections, it does not guarantee payment. It simply informs property owners and contractors about potential lien rights.
  3. Only contractors need to file it. Another misconception is that only contractors are responsible for filing the notice. In fact, subcontractors, suppliers, and other parties involved in the project can also issue this notice to protect their rights.
  4. It's not necessary if the contractor is reputable. Many assume that if they hire a reputable contractor, they do not need to file the notice. However, even trusted contractors can face financial issues. Filing the notice is a precaution that can safeguard against potential payment problems.
  5. Property owners are always aware of the notice. Some believe that property owners automatically know about the notice once it’s filed. In reality, it is the responsibility of the parties involved to ensure that the property owner is properly notified.
  6. The notice is only relevant for large projects. There is a common belief that this notice is only necessary for large-scale construction projects. However, it is relevant for projects of all sizes, as any work done can lead to lien rights.
  7. Filing the notice is a complicated process. Many think that completing the Preliminary 20 Day Notice is overly complex. In truth, the form is straightforward and can be filled out with basic information about the project and the parties involved.

By clarifying these misconceptions, individuals can better navigate the requirements and protections associated with the California Preliminary 20 Day Notice form.

Key takeaways

  • The California Preliminary 20-Day Notice is crucial for anyone involved in construction projects, whether private or public. It serves as a formal notification regarding the provision of labor, services, equipment, or materials.

  • This notice must be sent to the property owner, construction lender, and original contractor. Properly notifying all parties helps protect the rights of those providing services.

  • Timeliness is essential. The notice must be delivered within 20 days of starting work or providing materials to ensure that lien rights are preserved.

  • Property owners should take the notice seriously. If bills remain unpaid, a mechanics' lien can be placed on the property, potentially leading to foreclosure, even if the owner has paid the contractor.

  • To safeguard against potential liens, property owners can require contractors to provide a signed release from the party issuing the notice before making any payments.

  • For private project owners, it is mandatory to notify the original contractor and any lien claimants when a notice of completion or cessation is recorded. This notification must occur within 10 days.

  • Failure to provide the required notifications can extend the deadlines for recording a lien, which could complicate the situation for all parties involved.